Pe lângă compartimentare și gradul de încărcare cu mobilier, schema cromatică influențează decisiv percepția asupra mărimii unei case.
O locuință de dimensiuni reduse reprezintă, prin excelență, o provocare în amenajare. „Cum poți asigura un maximum de confort și funcționalitate, fără a face rabat de la criteriul estetic?” este dilema la care încearcă să găsească soluții designerii de azi. Proprietatea din imagini, prezentată pe Freshome.com, oferă o rezolvare cu siguranță creativă:
Citește și:
Culmea spațiilor mici: amenajarea unei garsoniere de doar 8 metri pătrați
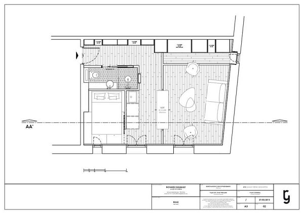
Situat în Paris, acest apartament dispune de o suprafață utilă de doar 30 de metri pătrați și a trecut recent printr-un proces de renovare pe baza unui concept propus de arhitectul Richard Guilbault. Dorința beneficiarilor proiectului (un cuplu tânăr) a fost aceea de a locui într-un spațiu luminos și aerisit, care să ofere posibilități multiple de depozitare și o eficiență sporită a zonelor private (baie și dormitor).
Citește și:
Apartament de 50 de metri pătrați, prin ochii unui designer francez
Deși inițial compusă din patru camere mici, întunecoase și dificil de amenajat (a căror veche împărțire a fost marcată, în mod creativ, pe podea), locuința a fost complet reconfigurată, urmând principiile stilului contemporan de design interior. Zona de zi a casei, compusă din living cu bucătărie deschisă, ocupă acum jumătate din suprafața locuibilă (în loc de doar o treime inițial). Zona de dormit este inteligent ascunsă în spatele bucătăriei (foto 2), de care poate fi separată complet prin intermediul unei uși glisante. Spațiul alocat dormitorului este redus la un minimum necesar pentru a adăposti un pat supraînălțat, dedesubtul căruia se află o ladă voluminoasă. Ocupând o suprafață de doar 2,5 metri pătrați, baia este complet echipată și confortabilă.
La capitolul depozitare, un rol major este atribuit dulapului ce se întinde pe un întreg perete, din hol până în living, ce „ascunde” un cumul de necesități ale vieții moderne (frigider, electrocasnice, debara, panou electric, dulap de haine etc.). Jocul de culori folosit la designul acestei multifuncționale piese de mobilier se încadrează perfect în schema cromatică de ansamblu, în care luminozitatea albului este echilibrată de nuanțe calde de lemn, tonuri deschise de gri și câteva accente puternice de culoare (galben intens sau albastru-azuriu în dormitor).
Sursă foto: Freshome.com















