Spațiu ultracentral pentru birouri

749 € / lună

Ultracentral, Arad

Nr. cam.:
3
Sup. utilă:
89 mp
Etaj:
1 / 2
An constr.:
1906 (Finalizată)
  • • Locație aproximativă

Descriere apartament

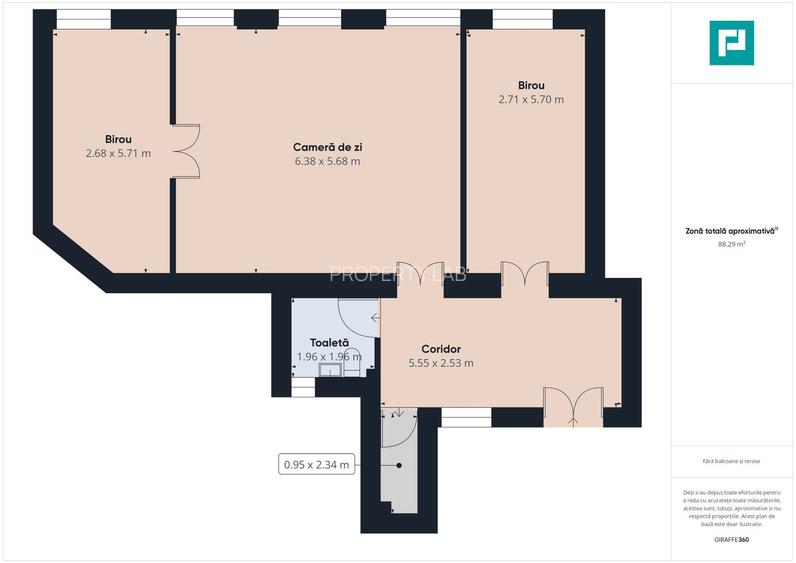
PropertyLab vă propune spre închiriere un spațiu ideal pentru birouri, situat la etajul 1, vizavi de Tribunalul Arad. Apartamentul cu 3 camere din Palatul Kovacs vă oferă o oportunitate rară de a lucra într-o clădire istorică! Detalii generale: Imobil compus din hol intrare/recepție, două camere amenajate ca birouri individuale, cameră de zi pentru întâlniri, spațiu sanitar și cameră tehnică Amenajare: Eleganță și rafinament cu mobilier din lemn masiv Potrivit pentru: Activitate de birouri Caracteristici principale: Spațiu semidecomandat, generos și luminozitate naturală Design clasic cu detalii contemporane Oferă o atmosferă de prestigiu și istorie Posibilități diverse de utilizare: locuință sau spațiu de lucru elegant Pentru mai multe informații și pentru a programa o vizionare, sunați acum! Raluca Marinescu Consultant imobiliar PropertyLAB Tel: email: @ CP2761069
Citește mai mult Citește mai puțin
Confort 1 Semidecomandat Mobilat Complet Curte comună Aer condiționat Calorifere Centrală proprie

Detalii apartament

ID anunț: X5I1101UK Copiat! 274196279 Copiat!
Actualizat în: 15 Ianuarie 2026
Suprafață construită: 103 mp
Nr. băi: 1
Structură rezistență: Cărămidă
Tip imobil: Casă/Vilă
Regim înălțime: P+2E

Utilități

Destinație
Birouri
Pereți
Vopsea lavabilă
Ușă intrare
Lemn
Uși interior
Lemn
Ferestre cu geam termopan
Lemn
Contorizare
Apometre Contor gaz
Electrocasnice
TV
Dotări imobil
Interfon
Utilități
Curent Apă Canalizare CATV Gaze Telefon
Acces internet
Cablu Wireless
Amenajare străzi
Iluminat stradal Mijloace de transport în comun Asfaltate

Disponibilitate proprietate:

Imediat

Puncte de interes

Mijloace transport
tram-station
Fortuna
Stații tramvai aprox. 902 m
tram-station
Fortuna
Stații tramvai aprox. 920 m
tram-station
Galleria
Stații tramvai aprox. 1007 m
bus-station
Autogara Transdara - Atlassib
Stații autobuz aprox. 1980 m
Școală
school
Scoala Gimnaziala nr. 11 Nicolae Balcescu
Școli aprox. 563 m
university
Universitatea Aurel Vlaicu Camine Studentesti
Universități aprox. 628 m
school
Scoala Gimnaziala nr. 21 Aurel Vlaicu
Școli aprox. 1035 m
kindergarten
Gradinita cu program prelungit nr. 10 Furnicuta
Gradinițe aprox. 1239 m
Recreere
park
Parc
Parcuri aprox. 551 m
cafe
Paris Cafe
Cafenea aprox. 594 m
supermarket
Penny Market
Supermarket aprox. 847 m
sports-ground
Teren de sport
Terenuri sport aprox. 1047 m

Detalii despre preț și costuri

Prețul pe piață

Preț cerut: 749 €

Preț min. zonă 300 €
Preț max. zonă 710 €

i

Proprietate cu prețul cerut în afara intervalului mai multe...

Posibile explicații pentru faptul că prețul proprietății este peste cel maxim: imobil nou cu suprafață mare, are dotări și finisaje de lux.
Bine de știut: prețul unei proprietăți este influențat și de alte caracteristici, cum ar fi: vechime, localizare, vecinătăți, suprafață, compartimentare, amenajări, dotări, etc.

Proprietăți similare

Apartament cu 3 camere decomandat, mobilat în Ultracentral
750 € / lună
Arad, Ultracentral
3 camere
145 mp
Parter / 1
Apartament cu 3 camere decomandat, mobilat în Ultracentral
750 € / lună
Arad, Ultracentral
3 camere
146 mp
Etaj 1 / 1
Apartament cu 3 camere decomandat, mobilat în Ultracentral
700 € / lună
Arad, Ultracentral
3 camere
88 mp
Etaj 2 / 2

Detalii de contact

PROPERTY LAB

Raluca Marinescu Real Estate Consultant Arad

PROPERTY LAB

Abonează-te la newsletter să fii primul care primește cele mai noi recomandări de proprietăți și sfaturi de la experți.

CONTACT

Creează alertă

Salvează căutarea ca să primești pe email ultimele anunțuri publicate

Apartamente cu 3 camere de închiriat în zona Ultracentral, Arad