Spatiu de Birouri Sau Comercial | Soseaua Chitilei | Parcare

1.100 € / lună

Chitila, București

Nr. cam.:
4
Sup. utilă:
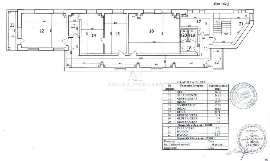
148,81 mp
Etaj:
1 / 2
An constr.:
2011 (Finalizată)
  • • Exclusivitate
  • • Locație exactă

Descriere apartament

Va propunem spre inchiriere un spatiu de birouri/comercial intr-o cladire de 2 etaje, localizata pe Sos. Chitilei, in apropiere de Mall Colosseum, care permite acces facil catre Centura Bucurestiului cat si zona de Nord a orasului. Cladirea pune la dispozitie locuri de parcare atat in curte cat si in fata curtii, cat si posibilitatea de a folosi spatii extra de depozitare in curte. Spatiul de la etajul 1 dispune de 148 mp utili la care se adauga 2 balcoane. In prezent este organizat in 4 incaperi spatioase, doua bai, doua balcoane si o bucatarie. Este disponibil de asemenea si spatiul de la etajul 2, compartimentarea aici fiind diferita. La parter functioneaza un depozit farmaceutic. Ambele spatii se pot inchiria si pentru cazare forta de munca, cost care poate fi discutat in functie de cerere. Va invitam sa vizionati si turul video al proprietatii. Pentru detalii si vizionari va stam la dispozitie.
Citește mai mult Citește mai puțin
Confort 1 Decomandat Nemobilat 1 Balcon / Terasă / Logie Calorifere Centrală proprie 3 Parcări Bine întreținut (Bună)

Detalii apartament

ID anunț: XDVL100KF Copiat! 274876424 Copiat!
Actualizat în: 09 Februarie 2026
Suprafață construită: 195 mp
Nr. băi: 1
Tip imobil: Casă/Vilă
Regim înălțime: P+2E
Nr. terase: 1

Utilități

Destinație
Birouri Comercial
Pereți
Faianță Vopsea lavabilă
Podele
Gresie Parchet
Izolații termice
Exterior
Ferestre cu geam termopan
PVC
Diverse
Telecomandă poartă acces auto
Alte spații utile
Terasă
Utilități
Curent Apă Canalizare CATV Gaze Telefon
Internet
Cablu
Amenajare străzi
Iluminat stradal Mijloace de transport în comun Asfaltate

Disponibilitate proprietate:

Imediat

Puncte de interes

Mijloace transport
bus-station
Halta Depoul Bucuresti
Stații autobuz aprox. 247 m
train-station
Halta CFR Depoul Bucuresti Triaj
Stații tren aprox. 266 m
tram-station
Statia Mezes linia 45
Stații tramvai aprox. 1635 m
metro-station
Străulești (M4)
Stații metrou aprox. 1924 m
Școală
school
Scoala Nr. 184
Școli aprox. 1352 m
school
Scoala Nr. 181
Școli aprox. 1650 m
school
Scoala Generala Nr. 181
Școli aprox. 1658 m
school
Scoala 181
Școli aprox. 1659 m
Recreere
sports-ground
Teren sportiv
Terenuri sport aprox. 522 m
supermarket
Carrefour Colosseum
Supermarket aprox. 804 m
park
Parc Maica Teofana
Parcuri aprox. 1119 m
restaurant
Micu Grill
Restaurant aprox. 1916 m

Detalii despre preț și costuri

Prețul pe piață

Preț cerut: 1.100 €

Preț min. zonă 630 €
Preț max. zonă 4.200 €

55% dintre proprietățile similare ca zonă și nr. camere au prețul cerut mai mare. mai multe...

Bine de știut: prețul unei proprietăți este influențat și de alte caracteristici, cum ar fi: vechime, localizare, vecinătăți, suprafață, compartimentare, amenajări, dotări, etc. mai puțin...

Proprietăți similare

Apartament cu 3 camere decomandat în Chitila
1.000 € / lună
București, Chitila
3 camere
148,81 mp
Etaj 2
Apartament cu 3 camere decomandat, mobilat în Floreasca
1.100 € + TVA / lună
București, Floreasca
3 camere
71,14 mp
Etaj 2
Apartament cu 2 camere în Herăstrău
1.150 € / lună
București, Herăstrău
2 camere
70 mp
Etaj 7

Detalii de contact

AGENȚIA IMOBILIARA

Miruna Matei

3.67(3 review-uri)

AGENȚIA IMOBILIARA
PRO

Abonează-te la newsletter să fii primul care primește cele mai noi recomandări de proprietăți și sfaturi de la experți.

CONTACT

Creează alertă

Salvează căutarea ca să primești pe email ultimele anunțuri publicate

Apartamente cu 4+ camere de închiriat în zona Chitila, Sector 1