1

Apartament 3 camere – One Verdi Park|Floreasca | Parcare inclusa

1.900 € / lună

Floreasca, București

Nr. cam.:
3
Sup. utilă:
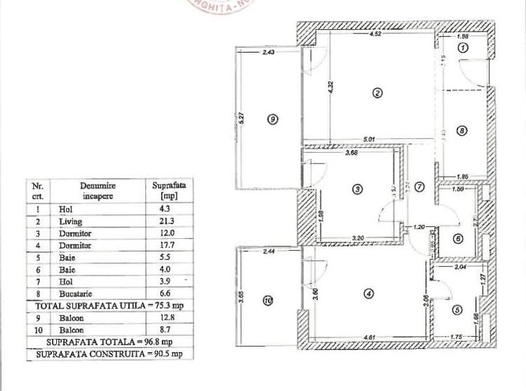
75 mp
Etaj:
4 / 10
An constr.:
2023 (Finalizată)
  • • Locație aproximativă
  • • Vizionare prin apel video

Descriere apartament

Apartament 3 camere de închiriat – One Verdi Park | Floreasca | Parcare inclusă • Apartament 3 camere complet mobilat și utilat la standard premium • Situat în ansamblul rezidențial One Verdi Park • Ideal pentru stil de viață modern și confortabil Detalii apartament • Compartimentare eficientă, suprafață generoasă, lumină naturală excelentă • Living spațios cu mobilier de designer și TV smart • Bucătărie open-space complet echipată: mașină de spălat vase, plită, cuptor, hotă, frigider • 2 dormitoare complet mobilate, spații ample de depozitare • 2 băi moderne: una cu cadă, una cu cabină de duș • Mașină de spălat rufe • Finisaje premium • Sistem de climatizare • Balcon generos • Loc de parcare subteran inclus • Indicativ apartament: B4.3 Despre ansamblu • One Verdi Park – proiect dezvoltat de One United Properties • Două turnuri rezidențiale moderne, amplasate pe malul lacului Tei • Design contemporan și standard ridicat de calitate • Acces rapid către Barbu Văcărescu, Floreasca și Pipera Facilități • Acces securizat 24 7 • Recepție și lobby modern • Parc privat și spații verzi • Restaurante și cafenele în proximitate • Centre comerciale în apropiere (Promenada Mall) • Școli și transport public în zonă Preț • 1900 € + TVA lună Loc de parcare inclus
Citește mai mult Citește mai puțin
Confort 1 Decomandat Mobilat Mobilat 2 Balcoane / Terase / Logii Aer condiționat Centrală imobil Încălzire prin pardoseală 1 Parcare

Detalii apartament

ID anunț: XG8G00032 Copiat! 275097012 Copiat!
Actualizat în: 24 Februarie 2026
Suprafață utilă totală: 75 mp
Suprafață construită: 96 mp
Nr. băi: 2
Structură rezistență: Altele
Tip imobil: Bloc de apartamente
Regim înălțime: P+10E

Utilități

Destinație
Rezidențial
Pereți
Faianță Vopsea lavabilă
Podele
Parchet Gresie
Ușă intrare
Metal
Uși interior
PVC
Izolații termice
Exterior
Ferestre cu geam termopan
PVC
Contorizare
Apometre Contor gaz
Bucătărie
Utilată Mobilată
Facilități imobil
Lift Videointerfon
Utilități
Apă Curent Gaze
Internet
Fibră optică
Amenajare străzi
Asfaltate

Certificat energetic:

Clasa energetică: A

Puncte de interes

Mijloace transport
tram-station
Giuseppe Verdi
Stații tramvai aprox. 45 m
bus-station
Statia Ancuta Baneasa, linia 135, N119
Stații autobuz aprox. 488 m
metro-station
Aurel Vlaicu (M2)
Stații metrou aprox. 1325 m
trolleybus-station
Statia Doamna Ghica, linia 66
Stații troleibuz aprox. 1980 m
Școală
school
LICEUL TEORETIC "C.A. ROSETTI"
Școli aprox. 373 m
school
Liceul C.A. Rosetti
Școli aprox. 373 m
kindergarten
Gradinita nr. 7
Gradinițe aprox. 465 m
university
Athenaeum University (en)
Universități aprox. 974 m
Recreere
park
Parcul Verdi
Parcuri aprox. 200 m
restaurant
Pescariu Sports & Spa - .pescariusports.ro (en)
Restaurant aprox. 243 m
sports-ground
Teren sportiv
Terenuri sport aprox. 261 m
supermarket
BILLA - B. Vacarescu
Supermarket aprox. 559 m

Detalii despre preț și costuri

Prețul pe piață

Preț cerut: 1.900 €

Preț min. zonă 750 €
Preț max. zonă 3.500 €

59% dintre proprietățile similare ca zonă și nr. camere au prețul cerut mai mare. mai multe...

Bine de știut: prețul unei proprietăți este influențat și de alte caracteristici, cum ar fi: vechime, localizare, vecinătăți, suprafață, compartimentare, amenajări, dotări, etc. mai puțin...

Proprietăți recomandate

Detalii de contact

EasyVision Imobiliare

Easy Vision Agentie Imobiliara

EasyVision Imobiliare

Abonează-te la newsletter să fii primul care primește cele mai noi recomandări de proprietăți și sfaturi de la experți.

CONTACT

Creează alertă

Salvează căutarea ca să primești pe email ultimele anunțuri publicate

Apartamente cu 3 camere de închiriat în zona Floreasca, Sector 1