***** Herastrau | Luxury one bedroom Apartment

1.600 € / lună

Herăstrău, București

Nr. cam.:
2
Sup. utilă:
70 mp
Etaj:
4 / 5
An constr.:
2020 (Finalizată)
  • • Locație aproximativă

Descriere apartament

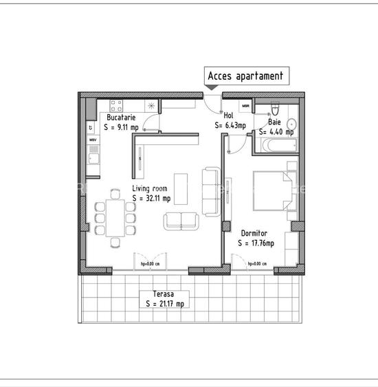
Va propunem pentru inchiriere un apartament exclusivist, o proprietate ce reprezinta prin forma si stilul arhitectural modernist, prin elementele de design surprinzatoare si personalitatea compozitiei, un apartament de top. Proprietatea desfasurata amplu pe o suprafata utila de 70 mp, situata la etajul 4, este compusa din 2 camere si face parte dintr-un building rezidential pe 5 etaje finalizat in 2020, amplasat langa Herastrau Parc. Absolut toate finisajele sunt din gama high-class, iar combinatia indrazneata a decoratiunilor si accesoriilor revigoreaza spatiile, completand notele vizuale artistice imprimate intregului ansamblu. Complexul are 86 de apartamente amplasate pe 5 niveluri, cu 2 lobby-uri amenajate cu materiale de lux. Compartimentarea interioara a apartamentului este realizata astfel: zona de living, bucatarie mobilata si utilata modern, hol amenajat cu dressing, dormitor si baie cu aerisire naturala. La toate acestea se adauga o terasa superba de 22.55 mp, pe toata lungimea apartamentului, pe care va puteti relaxa admirand o oaza de verdeata, părculețul nou nouț amenajat de Primărie. Finisajele si dotarile apartamentului sunt realizate cu materiale de calitate premium, iar designul este deosebit. Acest ansamblu elegant iti permite acces facil catre multiple puncte de interes: zone de birouri, centre comerciale, cluburi, restaurante, terenuri de tenis si sali de fitness. De asemenea, accesul catre restul orasului se poate face cu usurinta, atat cu masina cat si cu mijloace de transport in comun, statia de metrou Aurel Vlaicu fiind la doar cateva minute de mers pe jos. Apartamentul beneficiaza de un loc de parcare subteran individual. Va invitam cu drag la vizionare!
Citește mai mult Citește mai puțin
Confort lux Decomandat Mobilat Mobilat Lux Grădină Curte comună Aer condiționat Centrală proprie Încălzire prin pardoseală 1 Parcare

Detalii apartament

ID anunț: X2F71090I Copiat! 275126138 Copiat!
Actualizat în: 26 Februarie 2026
Suprafață construită: 85 mp
Nr. bucătării: 1
Nr. băi: 1
Structură rezistență: Beton
Tip imobil: Bloc de apartamente
Regim înălțime: S+P+5E
Nr. terase: 1

Utilități

Destinație
Rezidențial
Pereți
Faianță Vopsea lavabilă
Podele
Gresie Parchet
Ușă intrare
Metal
Uși interior
Lemn
Izolații termice
Exterior Interior
Ferestre cu geam termopan
Aluminiu
Contorizare
Apometre Contor căldură Contor gaz
Bucătărie
Mobilată Utilată
Electrocasnice
Hotă Mașină de spălat Mașină spălat vase TV
Diverse
Telecomandă poartă acces auto
Alte spații utile
Terasă
Facilități imobil
Lift Videointerfon
Utilități
Curent Apă Canalizare Gaze
Internet
Wireless
Servicii imobil
Pază
Amenajare străzi
Iluminat stradal Mijloace de transport în comun Asfaltate
Comision
standard

Disponibilitate proprietate:

15 august

Puncte de interes

Mijloace transport
tram-station
Maguricea
Stații tramvai aprox. 304 m
bus-station
Maguricea statie 605, 5
Stații autobuz aprox. 330 m
tram-station
Maguricea
Stații tramvai aprox. 357 m
metro-station
Metrorex. Stația Aurel Vlaicu (M2)(1987)
Stații metrou aprox. 393 m
Școală
kindergarten
Gradinita Miniterra
Gradinițe aprox. 102 m
school
Scoala Generala Nr. 12
Școli aprox. 189 m
kindergarten
Grădinița Pentru Hipoacuzici NR. 65
Gradinițe aprox. 293 m
university
Școala Superioară de Aviație Civilă - S.S.Av.C.
Universități aprox. 1914 m
Recreere
park
Parc
Parcuri aprox. 195 m
restaurant
Cleopatra
Restaurant aprox. 245 m
supermarket
Carrefour Market
Supermarket aprox. 334 m
sports-ground
Teren sportiv
Terenuri sport aprox. 794 m

Detalii despre preț și costuri

Prețul pe piață

Preț cerut: 1.600 €

Preț min. zonă 699 €
Preț max. zonă 1.300 €

i

Proprietate cu prețul cerut în afara intervalului mai multe...

Posibile explicații pentru faptul că prețul proprietății este peste cel maxim: imobil nou cu suprafață mare, are dotări și finisaje de lux.
Bine de știut: prețul unei proprietăți este influențat și de alte caracteristici, cum ar fi: vechime, localizare, vecinătăți, suprafață, compartimentare, amenajări, dotări, etc.

Proprietăți recomandate

Detalii de contact

IMOBILIARE HERASTRAU - Trusted Real Estate Advisor

Cosmin Badita Senior Real Estate Advisor

IMOBILIARE HERASTRAU - Trusted Real Estate Advisor
PRO

Abonează-te la newsletter să fii primul care primește cele mai noi recomandări de proprietăți și sfaturi de la experți.

CONTACT

Creează alertă

Salvează căutarea ca să primești pe email ultimele anunțuri publicate

Apartamente cu 2 camere de închiriat în zona Herăstrău, Sector 1