Parcului 20 - Penthouse Duplex | Terase cu vedere panoramica | Mobilat, Parcare

3.650 € / lună

Pajura, București

Nr. cam.:
4
Sup. utilă:
115 mp
Etaj:
12 / 12
An constr.:
2020
  • • Exclusivitate
  • • Locație exactă
  • • Proprietate nelocuită
  • • Vizionare prin apel video

Descriere apartament

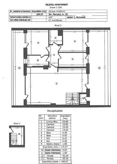
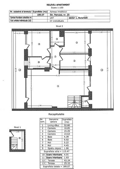
SI Development Group va prezinta, in exclusivitate, spre inchiriere, o proprietate care nu concureaza cu piata, ci o depaseste. Un apartament tip duplex, amplasat in Ansamblul Rezidential Parcului 20, in zona de nord a Bucurestiului, unde tehnologia, designul si confortul sunt duse la nivel de referinta. Aceasta proprietate nu este despre metri patrati sau simple finisaje. Este despre experienta de locuire, control, liniste si un stil de viata gandit pana la ultimul detaliu. ______________________ DESPRE APARTAMENT Apartamentul este dispus pe doua niveluri (tip duplex), cu o compartimentare inteligenta, care separa perfect zonele functionale de cele de relaxare. ______________________ MOBILIER, FINISAJE SI DOTARI PREMIUM Mobilierul este realizat integral pe comanda, din materiale premium precum Fenix si alama, fiind perfect integrat in conceptul minimalist al spatiului. -> Usi Filomuro, integrate perfect in pereti -> Obiecte sanitare si baterii Porcelanosa Grupo -> Corpuri de iluminat Buster & Punch -> Intrerupatoare cu touchscreen din sticla securizata -> Climatizare Daikin -> 3 Smart TV-uri ______________________ BUCATARIE SI ELECTROCASNICE Bucataria este complet echipata cu electrocasnice premium Miele: -> Masina de spalat rufe -> Masina de spalat vase -> Uscator de rufe -> Frigider incorporabil -> Frigider side by side -> Frigider dedicat pentru vinuri ______________________ EXPERIENTA AUDIO & CONFORT Experienta sonora este una exceptionala, prin sistemul HiFi Devialet, completat de un sistem surround Sonos, oferind o atmosfera rafinata in intreaga locuinta. Dormitorul matrimonial dispune de dressing generos si baie proprie, oferind intimitate si functionalitate la cel mai inalt nivel. Proprietatea beneficiaza de un sistem smart-home complet, ce controleaza iluminatul, perdelele, jaluzelele exterioare, incalzirea si climatizarea. Confortul este sustinut de recuperatoare de caldura si de incalzirea prin pardoseala REHAU, oferind un ambient constant si eficient energetic. ______________________ SUPRAFATA APARTAMENT: Suprafata utila apartament: 115,47 mp Suprafata terase: 67,76 mp Suprafata utila totala: 183,23 mp ______________________ TERASE SI ZONE EXTERIOARE -> Terasa cu vedere panoramica -> Gratar profesional Crossray ______________________ PARCARE -> 2 locuri de parcare subterane -> Statii de incarcare pentru masini electrice ______________________ DETALII FINANCIARE SI CONDITII DE INCHIRIERE -> Proprietatea se inchiriaza complet mobilata si utilata, cu exceptia anumitor obiecte din poze ( tablouri). -> Conditiile pot fi adaptate in functie de profilul chiriasului -> Comisionul agentiei imobiliare este de 50% din valoarea primei chirii, achitat de chirias. ______________________ ANSAMBLUL REZIDENTIAL -> Gradina privata de aproximativ 3.000 mp -> Parcare subterana moderna -> Statii de incarcare electrica -> Monitorizare video 24/7 -> Receptie pentru rezidenti si vizitatori Aceasta nu este o simpla inchiriere. Este o alegere de stil de viata. Pentru mai multe detalii sau vizionari va rugam sa ne contactati pe site-urile de specialitate, WhatsApp sau telefonic. .. .. .. Cuvinte cheie: penthouse penthouse duplex apartament premium apartament mobilat apartament utilat apartament cu terasa apartament cu terase terasa terase terase duble terase fata spate view view deschis view panoramic vedere panoramica loc de parcare locuri de parcare parcare subterana loc de parcare subteran parcare cu statie de incarcare loc de parcare cu statie de incarcare electrica statie incarcare masina electrica Parcului 20 Ansamblul Parcului 20 zona de nord Bucuresti nordul Capitalei Bucuresti sector 1 Parc Herastrau Herastrau Parcul Herastrau Piata Presei Libere Casa Presei Libere Expozitiei Bulevardul Expozitiei 1 Mai Domenii Aviatiei Arcul de Triumf Kiseleff rezidential premium ansamblu rezidential premium imobil nou proiect rezidential modern
Citește mai mult Citește mai puțin
Confort lux Semidecomandat Acceptă animale de companie Mobilat Mobilat 2 Balcoane / Terase / Logii Aer condiționat Centrală proprie Încălzire prin pardoseală 2 Parcări Bine întreținut (Bună)

Detalii apartament

ID anunț: XACM0025V Copiat! 275132987 Copiat!
Actualizat în: 27 Februarie 2026
Suprafață utilă totală: 189 mp
Nr. bucătării: 1
Nr. băi: 2
Structură rezistență: Beton
Tip imobil: Bloc de apartamente
Regim înălțime: P+12E

Utilități

Destinație
Rezidențial Birouri De vacanță
Pereți
Faianță Vopsea lavabilă
Podele
Gresie Parchet
Ușă intrare
Metal
Uși interior
Lemn
Izolații termice
Exterior
Contorizare
Contor gaz Apometre
Bucătărie
Mobilată Utilată
Electrocasnice
Hotă TV Mașină spălat vase Cuptor microunde Mașină de spălat Frigider Aragaz
Diverse
Scară interioară Senzor de fum Sistem de alarmă Telecomandă poartă acces auto
Alte spații utile
Debara Terasă
Facilități imobil
Lift Interfon
Utilități
Gaze Curent Apă Canalizare
Internet
Cablu Fibră optică Wireless
Servicii imobil
Administrare Pază Supraveghere video
Amenajare străzi
Asfaltate Iluminat stradal Mijloace de transport în comun
Comision
50% din valoarea primei chirii.

Certificat energetic:

Clasa energetică: A

Vecinătăți:

Parcul Herastrau
Metrou 1 Mai
Metrou Jiului
Arcul de Triumf
Kiseleff
Zona de Nord
Piata Victoriei
Baneasa
Aviatorilor
Bazilescu
Damaroaia
Gara de Nord

Alte detalii despre preț:

Proprietar persoana fizica, nu se adauga TVA.

Puncte de interes

Mijloace transport
bus-station
Dridu - coborare
Stații autobuz aprox. 449 m
tram-station
Statie Grivita Tv42
Stații tramvai aprox. 661 m
metro-station
Metrorex. Stația 1 Mai (M4)(2000)
Stații metrou aprox. 962 m
train-station
Halta CFR Bucuresti Basarab h
Stații tren aprox. 1977 m
Școală
kindergarten
Gradinita Ciupercuta
Gradinițe aprox. 414 m
school
Liceul Greco-Catolic Timotei Cipariu
Școli aprox. 446 m
kindergarten
Gradinita cu program prelungit Winnie
Gradinițe aprox. 608 m
university
Universitatea Romano-Americana
Universități aprox. 1084 m
Recreere
park
Loc de joaca
Parcuri aprox. 289 m
supermarket
Profi City Pajura
Supermarket aprox. 420 m
sports-ground
Teren sportiv
Terenuri sport aprox. 435 m
public-square
Piata Montreal
Piețe publice aprox. 1349 m

Detalii despre preț și costuri

Prețul pe piață

Preț cerut: 3.650 €

Preț min. zonă 630 €
Preț max. zonă 4.200 €

55% dintre proprietățile similare ca zonă și nr. camere au prețul cerut mai mare. mai multe...

Bine de știut: prețul unei proprietăți este influențat și de alte caracteristici, cum ar fi: vechime, localizare, vecinătăți, suprafață, compartimentare, amenajări, dotări, etc. mai puțin...

Proprietăți similare

Apartament cu 4 camere în Herăstrău
4.000 € / lună
București, Herăstrău
4 camere
185 mp
Etaj 4 / 6
Apartament cu 4 camere decomandat în Herăstrău
3.480 € / lună
București, Herăstrău
4 camere
180 mp
Etaj 5
Apartament cu 4 camere decomandat în Herăstrău
3.500 € / lună
București, Herăstrău
4 camere
192 mp
Etaj 6

Detalii de contact

SI Development Group

Claudiu B Consilier Vanzari

4.67(7 review-uri)

SI Development Group
PRO

Abonează-te la newsletter să fii primul care primește cele mai noi recomandări de proprietăți și sfaturi de la experți.

CONTACT

Creează alertă

Salvează căutarea ca să primești pe email ultimele anunțuri publicate

Apartamente cu 4+ camere de închiriat în zona Pajura, Sector 1