Pipera 1 • 118MP Penthouse 3 Camere + Terasa Proprie 127MP + Parcare • Open View

1.600 € / lună

Pipera, București

Nr. cam.:
3
Sup. utilă:
118 mp
Etaj:
5 / 5
An constr.:
2021 (Finalizată)
  • • Comision 0%
  • • Exclusivitate
  • • Locație exactă

Descriere apartament

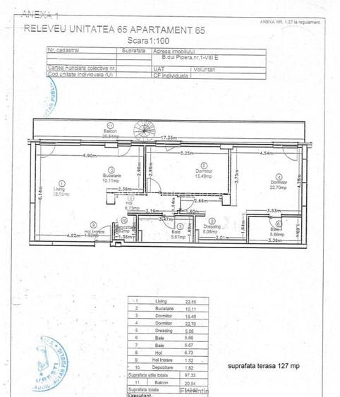
Elena Petrescu • Global Home Romania • Real Estate Broker • Imobiliare Penthouse 3 Camere • Terasa Proprie 127 MP • Etaj 6 2 Locuri Parcare Subterane • Pipera Nr. 1 - Bolat Residence Localizare Pipera Nr. 1, zona de Nord a Bucurestiului, in proximitatea imediata a Promenada Mall (≈10 minute), cu acces rapid catre Aviatiei, Barbu Vacarescu si principalele artere urbane. Amplasare ideala, ce imbina avantajele vietii urbane cu linistea unei zone rezidentiale selecte, in apropierea Lacului Pipera. Prezentare Proprietate Penthouse premium, situat la etajul 6, cu terasa proprie impresionanta de 127 mp, ideala pentru relaxare, socializare sau activitati outdoor private. Proprietatea este complet igienizata profesional dupa plecarea chiriasului anterior si este complet mobilata si echipata, cu mobilier si finisaje atent alese, pregatita pentru ocupare imediata. Suprafata Utila Totala: 245mp Terasa Proprie: 127MP Suprafata Utila: 98 mp Balcon: 20MP Compartimentare: 3 camere Bai: 2 grupuri sanitare Parcare: 2 locuri in subteran Acces terasa: individual, din balcon Compartimentare & Functionalitate Living generos, open-space, cu lumina naturala abundenta Dormitor matrimonial cu zone de dressing Camera secundara (nemobilata) – flexibilitate totala: rezidential sau office Spatii de depozitare eficient integrate Posibilitate de adaptare a mobilierului in functie de nevoile viitorului chirias (locuire sau activitate profesionala) Design & Concept Interior Interior realizat in colaborare cu specialisti in design interior, cu accent pe confort, functionalitate si estetica contemporana. Fiecare detaliu a fost atent ales pentru a oferi o experienta rezidentiala completa, intr-un cadru modern si elegant. Despre Ansamblul Rezidential – PIPERA 1 Unul dintre cele mai noi si exclusiviste proiecte rezidentiale din Pipera, ce ofera: Stil de viata select Finisaje de lux Compartimentari spatioase Dotari moderne Acces rapid catre zone comerciale, business si recreere Vecinatati: Avalon, Cortina North, H Pipera Lake, My Place, Ambiance – comunitate rezidentiala matura, bine dezvoltata, cu un echilibru ideal intre dinamism si intimitate. Detalii Finisaje Interioare Parchet 10 mm, trafic intens – camere si holuri Gresie si faianta Marazzi – bucatarie si bai Obiecte sanitare Sanswiss – ergonomice, calitate superioara, anti-calcar Tamplarie PVC Salamander, 5 camere, geam tripan low-E (izolatie fonica si termica) Usi interioare Pinum, furnir, foaie celulara – izolare fonica Usa intrare Pinum, metalica Concluzie Un penthouse deosebit, disponibil imediat, ideal atat pentru rezidenta premium, cat si pentru activitate profesionala tip home-office, cu terasa proprie rar intalnita, parcare subterana si pozitionare excelenta in Nordul Capitalei.___ Global Home Romania, este o firma in schimbare de jocuri pe piata imobiliara din Romania ce se afla intr-o expansiune rapida. Modelul personalizat avand la baza tehnologia digitala, inteligenta artificala si interactiune umana alaturi de colaboratorii firmei, inspira constant incredere. Avand o abordare de marketing profesionala si indrazneta a ridicat atentia asupra modului in care oamenii se gandesc la imobiliare in Romania. Global Home Romania, companie imobiliara infiintata in 2020 ce continua sa se dezvolte cu succes in domeniu, reusind sa atraga constant parteneri si colaboratori de incredere. Cu sediul in Bucuresti, Global Home Romania, a aparut ca o firma imobiliara de incredere ce isi propune constant sa livreze servicii de calitate. Misiunea Global Home Romania in piata imobiliara, este aceea de a stabili un raport solid bazat pe incredere si profesionalism intre reprezentantii nostri imobiliari bine informati impreuna cu toti clientii si colaboratorii companiei.
Citește mai mult Citește mai puțin
Confort 1 Decomandat Mobilat Complet Aer condiționat Calorifere Centrală proprie 2 Parcări

Detalii apartament

ID anunț: XBMO108RC Copiat! 274984610 Copiat!
Actualizat în: 16 Februarie 2026
Suprafață construită: 250 mp
Nr. bucătării: 1
Nr. băi: 2
Structură rezistență: Beton
Tip imobil: Bloc de apartamente
Regim înălțime: P+5E

Utilități

Destinație
Rezidențial
Jaluzele
Verticale
Pereți
Vopsea lavabilă Faianță
Podele
Parchet Gresie
Ușă intrare
Metal
Izolații termice
Exterior
Ferestre cu geam termopan
PVC
Contorizare
Apometre
Bucătărie
Mobilată Utilată
Electrocasnice
Mașină de spălat rufe Frigider Aragaz Mașină de spălat vase TV
Alte spații utile
Terasă WC Serviciu Debara
Dotări imobil
Interfon Lift Acoperiș
Utilități
Curent Apă Canalizare Gaze
Amenajare străzi
Asfaltate Betonate Iluminat stradal Mijloace de transport în comun

Alte detalii:

Cosmin Vasilache ^ Global Home Romania ^ Real Estate Broker ^ Real Estate
First Rent - Private Terrace Floor 6 - 136sqm
2 Parking Spaces - Underground Area

Penthouse with 3 rooms with a total area of ​​118 square meters, of which 98 square meters is usable, with 2 bathrooms and its own terrace in use on the 6th floor, with an area of ​​127 square meters, with individual access from the balcony and 2 parking spaces in the underground area.

Residential project - Pipera No. 1, located in the highly sought-after neighborhood near Promenada Mall (10 minutes), this remarkable penthouse perfectly combines the comfort of urban amenities with the tranquility of a residential retreat near Lake Pipera.

Pipera No. 1 boasts an enviable location, strategically positioned in the vicinity of multiple residential projects in the North of Bucharest, such as Avalon, Cortina North, H Pipera Lake, My Place and Ambiance, enjoying the dynamic energy of a thriving community in balance with quietness - the much-desired residential privacy.

The penthouse benefits from a useful compartmentalization, for sale a spacious living room - open space type as well as storage spaces alongside elegantly arranged dressing areas, during the viewing we will find one of the rooms unfurnished, the owner offers the possibility for the future tenant to decide on the furniture, both residential or office for people with professional activity at home.

Within the property, every detail has been meticulously cared for to provide a complete residential experience. Embracing a contemporary design philosophy, the interior has been meticulously crafted in collaboration with interior design specialists.

RESIDENTIAL DETAILS - PIPERA 1
Pipera 1 is the newest, modern and exclusive residential complex in Pipera that offers you a select lifestyle, luxury finishes, spacious compartments and state-of-the-art equipment.
Pipera 1 benefits from quick access to all the points of interest of an urban life, being close to the major commercial areas of the capital.

The PIPERA 1 Residential Complex is located in the NORTH area of ​​Bucharest, having quick access to the main arteries of the capital as well as the many commercial areas nearby.
The PIPERA 1 project is located on Bld Pipera No. 1, in a quiet area dominated by houses and villas near Promendata Mall - Aviation Zone

DETAILS INTERIOR FINISHES:
10 mm thick parquet, heavy traffic in rooms and hallways;
Marazzi tiles and tiles in the kitchen and bathrooms;
Sanswiss brand ergonomic sanitary systems of high quality that do not leave traces of limescale.
Salamander PVC carpentry with 5 rooms and tripane glass, low-e for good sound insulation and to maintain heat in winter and reflect the sun's rays in summer.
Pinum interior doors in veneer with cellular sheet for sound insulation.
Pinum Metalica reinforced door.

Disponibilitate proprietate:

imediat

Puncte de interes

Mijloace transport
bus-station
Capat C.F.R Constanta linii : 112,135,445
Stații autobuz aprox. 518 m
tram-station
Rocin
Stații tramvai aprox. 853 m
metro-station
Pipera (M2)
Stații metrou aprox. 1082 m
airport
Aeroportul Internațional Băneasa (Aurel Vlaicu) - LRBS (BBU)
Aeroporturi aprox. 1912 m
Școală
kindergarten
Gradinita Zece
Gradinițe aprox. 1342 m
school
Colegiul Tehnic Edmond Nicolau, fostul Electronica
Școli aprox. 1509 m
school
Scoala Nr.3 Voluntari
Școli aprox. 1569 m
kindergarten
Echilibria 1
Gradinițe aprox. 1899 m
Recreere
restaurant
Q's Inn
Restaurant aprox. 401 m
park
spatiu verde
Parcuri aprox. 480 m
supermarket
Kaufland
Supermarket aprox. 673 m
sports-ground
Teren sportiv
Terenuri sport aprox. 1353 m

Detalii despre preț și costuri

Prețul pe piață

Preț cerut: 1.600 €

Preț min. zonă 780 €
Preț max. zonă 1.890 €

57% dintre proprietățile similare ca zonă și nr. camere au prețul cerut mai mare. mai multe...

Bine de știut: prețul unei proprietăți este influențat și de alte caracteristici, cum ar fi: vechime, localizare, vecinătăți, suprafață, compartimentare, amenajări, dotări, etc. mai puțin...

Proprietăți similare

Apartament cu 3 camere decomandat în Pipera
1.650 € / lună
București, Pipera
3 camere
120 mp
Etaj 2
Apartament cu 3 camere decomandat, mobilat în Pipera
1.499 € / lună
București, Pipera
3 camere
79,6 mp
Etaj 3
Apartament cu 3 camere semidecomandat, mobilat în Pipera
1.500 € / lună
București, Pipera
3 camere
100 mp
Etaj 2

Detalii de contact

Abonează-te la newsletter să fii primul care primește cele mai noi recomandări de proprietăți și sfaturi de la experți.

CONTACT

Creează alertă

Salvează căutarea ca să primești pe email ultimele anunțuri publicate

Apartamente cu 3 camere de închiriat în zona Pipera, Sector 1