2

Ideal birou , 3 camere în zona Soseaua Nordului

2.000 € + TVA / lună

Șoseaua Nordului, București

Nr. cam.:
3
Sup. utilă:
153 mp
Etaj:
Demisol / 5
An constr.:
2011 (Finalizată)
  • • Locație aproximativă

Descriere apartament

Va propunem pentru inchiriere un apartament exclusivist , o proprietate ce reprezinta prin forma si stilul arhitectural modernist, prin elementele de design surprinzatoare si personalitatea compozitiei, una dintre cele mai interesante propuneri ale zonei. Proprietatea desfasurata amplu pe o suprafata utila de 153 mp, situata la parter, este compusa din 4 camere wide-open si face parte dintr-un building rezidential pe 3 etaje finalizat in 2007, amplasat langa parcului Herastrau. Tonurile pastelate de bej si alb utilizate in amenajarea resedintei, se regasesc intr-o complementaritate totala cu simplitatea opulentei volumetrice dezvoltate la interior. Punctele culminante ale resedintei sunt fara indoiala livingul amplu, ce functioneaza ca centru de echilibru pentru intreaga resedinta, inalt, spatios, caracterizat de spatii ample si suprafete continue, uniforme, in care regasim si zona de dinning impreuna cu bucataria, si terasa superba , o zona ce poate fi amenajata si mobilata exotic, un spatiu exceptional de relaxare si meditatie. Absolut toate finisajele sunt din gama high-class, iar combinatia indrazneata a decoratiunilor si accesoriilor revigoreaza spatiile, completand notele vizuale artistice imprimate intregului ansamblu.
Citește mai mult Citește mai puțin
Confort lux Decomandat Curte

Detalii apartament

ID anunț: X2F7108NA Copiat! 273452882 Copiat!
Actualizat în: 22 Decembrie 2025
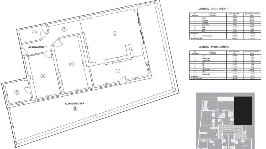
Suprafață utilă totală: 261.35 mp
Suprafață construită: 263 mp
Nr. bucătării: 1
Nr. băi: 2
Tip imobil: Bloc de apartamente
Regim înălțime: D+P+5E

Utilități

Utilități
Curent Apă Canalizare CATV Gaze Telefon
Acces internet
Cablu
Amenajare străzi
Iluminat stradal Mijloace de transport în comun Asfaltate
Comision
standard

Disponibilitate proprietate:

Imediat

Puncte de interes

Mijloace transport
bus-station
Carutasilor / Pasajul Aviatiei statie 301, 112
Stații autobuz aprox. 621 m
bus-station
statie Gara Baneasa 131, 205, 261, 335, N113, 304
Stații autobuz aprox. 808 m
tram-station
Maguricea
Stații tramvai aprox. 939 m
metro-station
Metrorex. Stația Aurel Vlaicu (M2)(1987)
Stații metrou aprox. 1186 m
Școală
kindergarten
Grădinița Mary Poppins
Gradinițe aprox. 417 m
kindergarten
Gradinita
Gradinițe aprox. 426 m
school
Scoala generala nr.12
Școli aprox. 696 m
university
Școala Superioară de Aviație Civilă - S.S.Av.C.
Universități aprox. 1570 m
Recreere
park
Parcul Herastrau
Parcuri aprox. 108 m
sports-ground
Teren sportiv
Terenuri sport aprox. 170 m
supermarket
ART Business Center 5
Supermarket aprox. 498 m
public-square
Piata Montreal
Piețe publice aprox. 1365 m

Detalii despre preț și costuri

Prețul pe piață

Preț cerut: 2.000 €

Preț min. zonă 1.000 €
Preț max. zonă 2.900 €

55% dintre proprietățile similare ca zonă și nr. camere au prețul cerut mai mare. mai multe...

Bine de știut: prețul unei proprietăți este influențat și de alte caracteristici, cum ar fi: vechime, localizare, vecinătăți, suprafață, compartimentare, amenajări, dotări, etc. mai puțin...

Proprietăți recomandate

Detalii de contact

IMOBILIARE HERASTRAU - Trusted Real Estate Advisor

Cosmin Badita Senior Real Estate Advisor

IMOBILIARE HERASTRAU - Trusted Real Estate Advisor
PRO

Abonează-te la newsletter să fii primul care primește cele mai noi recomandări de proprietăți și sfaturi de la experți.

CONTACT

Creează alertă

Salvează căutarea ca să primești pe email ultimele anunțuri publicate

Apartamente cu 3 camere de închiriat în zona Șoseaua Nordului, Sector 1