Apartament cu 2 camere terasa si loc de parcare in Selimbar din Sibiu

400 € / lună

Aeroport, Sibiu

Nr. cam.:
2
Sup. utilă:
60 mp
Etaj:
1 / 3
An constr.:
2021 (Finalizată)
  • • Locație aproximativă
  • • Vizionare prin apel video

Descriere apartament

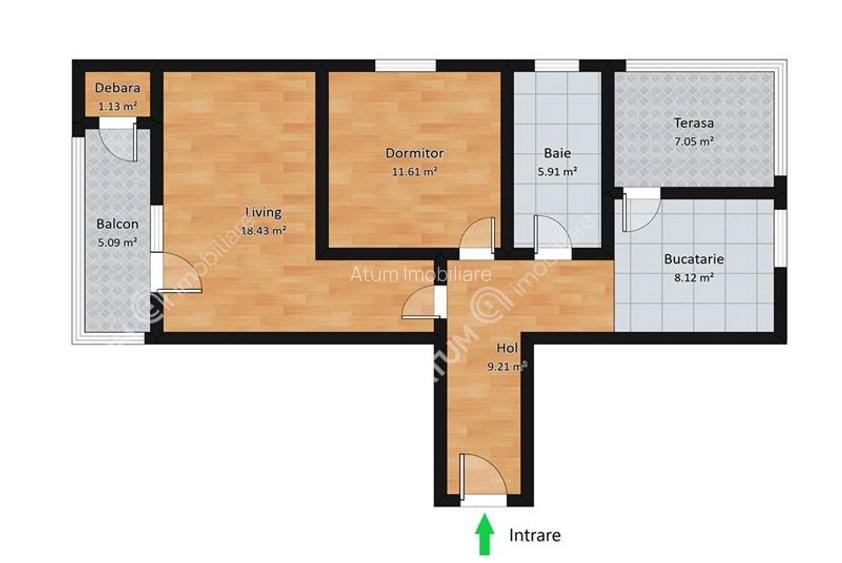
De inchiriat apartament cu 2 camere decomandate, balcon, terasa si loc propriu de parcare, situat la etajul 1 al unui imobil cu 3 etaje, in zona Selimbar, Sibiu. Locuinta are o suprafata utila de 60 mp, compartimentata astfel: camera de zi, dormitor, bucatarie, baie, hol si debara. Separat de suprafata utila, beneficiaza de un balcon de 5 mp cu acces din living si o terasa de 7 mp cu acces din bucatarie. Imobilul a fost construit in anul 2021, iar amenajarile interioare au fost finalizate in 2022. Ca dotari, beneficiaza de acoperis din tigla, izolatie termica exterioara de 10 cm si interfon la intrare. Apartamentul dispune de usa metalica la intrare, usi interioare din lemn, gresie, parchet laminat, faianta, centrala proprie in condensatie marca Bosch, incalzire in pardoseala cu distribuitori marca Sistema, tamplarie PVC cu 7 camere si 3 foi de sticla. Baia este dotata cu cabina de dus, geam pentru aerisire, bazin incastrat si obiecte sanitare. Debara prevazuta cu geam de aerisire si sursa de curent. Locuinta se inchiriaza complet mobilata si utilata, fiind dotata cu masina de spalat rufe, masina de spalat vase, cuptor electric, plita electrica, hota si frigider. Compartimentarea este atent gandita, oferind multiple spatii de depozitare. Parcarea autoturismului este asigurata prin locul propriu destinat viitorului chirias, amplasat in fata imobilului si amenajat corespunzator. Imobilul este situat in imediata apropiere a strazii Pictor Brana si a centrului comercial Shopping City Selimbar, avand acces facil la toate punctele de interes personal. Valoarea de inchiriere a apartamentului cu locul de parcare inclus este de 400 euro luna + garantie la incheierea contractului. ID intern: 3320.
Citește mai mult Citește mai puțin
Confort 1 Decomandat Mobilat Mobilat 1 Balcon / Terasă / Logie Centrală proprie Încălzire prin pardoseală 1 Parcare

Detalii apartament

ID anunț: XC7410258 Copiat! 275094538 Copiat!
Actualizat în: 27 Februarie 2026
Suprafață utilă totală: 60 mp
Suprafață construită: 72 mp
Nr. bucătării: 1
Nr. băi: 1
Structură rezistență: Beton
Tip imobil: Bloc de apartamente
Regim înălțime: P+3E

Utilități

Destinație
Rezidențial
Pereți
Faianță Vopsea lavabilă
Podele
Parchet Gresie
Ușă intrare
Metal
Izolații termice
Exterior
Ferestre cu geam termopan
PVC
Contorizare
Apometre Contor gaz
Bucătărie
Utilată Mobilată
Electrocasnice
Hotă Frigider Hotă Mașină de spălat
Alte spații utile
Terasă
Utilități
Apă Curent Gaze Canalizare Telefon CATV
Amenajare străzi
Asfaltate Iluminat stradal

Certificat energetic:

Clasa energetică: A

Vecinătăți:

Scoala/gradinita, Restaurant/pub, Mall, Parc, Benzinarie, Fastfood, Cinema, Supermarket, Banca, Zona comerciala, Autobuz

Puncte de interes

Mijloace transport
bus-station
Shopping City
Stații autobuz aprox. 469 m
bus-station
Mobexpert
Stații autobuz aprox. 647 m
bus-station
XXL
Stații autobuz aprox. 665 m
bus-station
Sibiu-Triaj (Sud)
Stații autobuz aprox. 926 m
Școală
school
Liceul Energetic
Școli aprox. 1204 m
school
Scoala Generala Nr. 24
Școli aprox. 1224 m
kindergarten
Gradinita Nr. 14
Gradinițe aprox. 1321 m
kindergarten
Gradinita Kristine
Gradinițe aprox. 1880 m
Recreere
sports-ground
Teren sportiv
Terenuri sport aprox. 423 m
cafe
Coffe House
Cafenea aprox. 557 m
supermarket
Shopping City Sibiu
Supermarket aprox. 562 m
park
Parcul Vasile Aaron
Parcuri aprox. 1192 m

Detalii despre preț și costuri

Prețul pe piață

Preț cerut: 400 €

Preț min. zonă 300 €
Preț max. zonă 600 €

59% dintre proprietățile similare ca zonă și nr. camere au prețul cerut mai mare. mai multe...

Bine de știut: prețul unei proprietăți este influențat și de alte caracteristici, cum ar fi: vechime, localizare, vecinătăți, suprafață, compartimentare, amenajări, dotări, etc. mai puțin...

Proprietăți recomandate

Detalii de contact

Atum Imobiliare

Alexandru Luca Consultant imobiliar

5.00(4 review-uri)

Atum Imobiliare
PRO

Abonează-te la newsletter să fii primul care primește cele mai noi recomandări de proprietăți și sfaturi de la experți.

CONTACT

Creează alertă

Salvează căutarea ca să primești pe email ultimele anunțuri publicate

Apartamente cu 2 camere de închiriat în zona Aeroport, Sibiu