Ap 3 cam conf 1 Scolilor 71 mp parter cu balcon

79.990 €

Școlilor, Brăila

Nr. cam.:
3
Sup. utilă:
71 mp
Etaj:
Parter / 4
An constr.:
1980 (Finalizată)
  • • Locație aproximativă
  • • Vizionare prin apel video

Descriere apartament

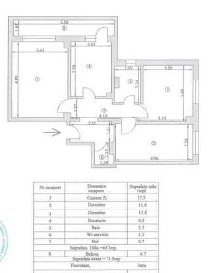
Apartament 3 camere confort 1 decomandat, Parter inalt 4, suprafata 70 mp, *Faianta, gresie, *Termopan, *Jaluzele exterioare, *Parchet lemn masiv, *Centrala termica, *Balcon, *Boxa Cristian Imobiliare - din 1993 Primii in Braila CRS6758 &12
Citește mai mult Citește mai puțin
Confort 1 Decomandat 1 Balcon / Terasă / Logie Centrală proprie Necesită renovare

Detalii apartament

ID anunț: XF6K100P4 Copiat! 275049598 Copiat!
Actualizat în: 20 Februarie 2026
Suprafață utilă totală: 71 mp
Suprafață construită: 71 mp
Nr. bucătării: 1
Nr. băi: 1
Structură rezistență: Altele
Tip imobil: Bloc de apartamente
Regim înălțime: P+4E

Utilități

Destinație
Rezidențial
Podele
Parchet
Ușă intrare
Metal
Uși interior
Lemn
Izolații termice
Exterior
Ferestre cu geam termopan
PVC
Contorizare
Apometre Contor gaz
Facilități imobil
Interfon
Utilități
Apă Curent Gaze
Amenajare străzi
Asfaltate

Puncte de interes

Mijloace transport
tram-station
Bariera Calarasilor
Stații tramvai aprox. 1113 m
bus-station
Gara Braila
Stații autobuz aprox. 1644 m
Școală
school
Gradinita Nr. 10
Școli aprox. 193 m
school
Palatul Copiilor si Elevilor
Școli aprox. 557 m
kindergarten
Gradinita Nr.36
Gradinițe aprox. 705 m
university
Facultatea de Inginerie
Universități aprox. 887 m
Recreere
restaurant
Pizzeria After dark
Restaurant aprox. 296 m
supermarket
Mini Market
Supermarket aprox. 378 m
cafe
Old City Cafe
Cafenea aprox. 529 m
park
Parc
Parcuri aprox. 575 m

Detalii despre preț și costuri

Prețul pe piață

Preț cerut: 79.990 €

Preț min. zonă 41.000 €
Preț max. zonă 125.000 €

60% dintre proprietățile similare ca zonă și nr. camere au prețul cerut mai mic. mai multe...

Bine de știut: prețul unei proprietăți este influențat și de alte caracteristici, cum ar fi: vechime, localizare, vecinătăți, suprafață, compartimentare, amenajări, dotări, etc. mai puțin...

Costuri cu achiziția

Fără credit
5.170 RON
Credit ipotecar
6.556 RON
Noua casă
548 RON+ taxe notariale

i

Costuri adiționale mai puțin știute la achiziție: taxe notariale, comisioane etc.

Proprietăți similare

Apartament cu 2 camere nedecomandat în Școlilor
74.900 €
Brăila, Școlilor
2 camere
47 mp
Etaj 3
Apartament cu 3 camere decomandat în Școlilor
78.000 €
Brăila, Școlilor
3 camere
64,3 mp
Parter
Apartament cu 3 camere decomandat, mobilat în Școlilor
79.500 €
Brăila, Școlilor
3 camere
75 mp
Etaj 3 / 4

Detalii de contact

CRISTIAN IMOBILIARE

Cristian Imobiliare Agentie Imobiliara

CRISTIAN IMOBILIARE

Abonează-te la newsletter să fii primul care primește cele mai noi recomandări de proprietăți și sfaturi de la experți.

CONTACT

Creează alertă

Salvează căutarea ca să primești pe email ultimele anunțuri publicate

Apartamente cu 3 camere de vânzare în zona Școlilor, Brăila