Apartament premium 2 camere- Cosmopolit Rise

192.990 €

Astra, Brașov

Nr. cam.:
2
Sup. utilă:
52 mp
Etaj:
3 / 10
An constr.:
2025 (Finalizată)
  • • Locație aproximativă

Descriere apartament

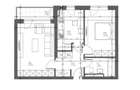
Va propun spre vanzare un apartament elegant, situat in proiectul rezidential Cosmopolit RISE. Orientare Sud – lumina naturala pe tot parcursul zilei. Suprafata utila 52 mp iar totala cu terasa de 55.5mp. Vedere spectaculoasa. Detalii apartament: • Bucatarie mobilata complet, (electrocasnice incluse) • Mobilier de hol • Baie complet echipata si utilata • Sistem de incalzire in pardoseala • Parchet stratificat • Loc de parcare subteran inclus in pret • Finisaje moderne, specifice Complexului • Termoizolatie exterioara cu vata minerala bazaltica • Tamplarie PVC cu 3 foi de sticla • Apartament disponibil imediat Daca apreciati aceasta oferta sau pentru alte informatii sunati la numarul de contact din anunt! Ne dorim sa iti oferim cea mai placuta experienta pentru descoperirea proprietatii ideale! Clarificari aditionale: Informatiile tehnice au caracter orientativ, ele fiind preluate de la proprietari.
Citește mai mult Citește mai puțin
Confort 1 Decomandat Mobilat Parțial mobilat Aer condiționat Calorifere Centrală proprie Încălzire prin pardoseală 1 Parcare 1 Parcare / Garaj / Parcare subterană

Detalii apartament

ID anunț: XG231005D Copiat! 273909160 Copiat!
Actualizat în: 25 Februarie 2026
Suprafață construită: 55 mp
Nr. bucătării: 1
Nr. băi: 1
Structură rezistență: Beton
Tip imobil: Bloc de apartamente
Regim înălțime: P+10E

Utilități

Destinație
Rezidențial
Jaluzele
Verticale
Pereți
Vopsea lavabilă Var Faianță
Podele
Parchet Gresie
Rulouri/Obloane
Aluminiu
Ușă intrare
Metal
Uși interior
Celulare
Izolații termice
Exterior Interior
Ferestre cu geam termopan
PVC
Contorizare
Apometre Contor căldură Contor gaz
Bucătărie
Mobilată Utilată
Electrocasnice
Mașină de spălat Frigider Aragaz Mașină spălat vase TV Cafetieră Cuptor microunde Hotă
Facilități imobil
Interfon Videointerfon Lift
Utilități
Curent Apă Gaze CATV Telefon
Amenajare străzi
Asfaltate Betonate Iluminat stradal
Comision
%

Certificat energetic:

Clasa energetică: A

Vecinătăți:

Profi, Lidl, Kaufland

Disponibilitate proprietate:

imediat

Puncte de interes

Mijloace transport
bus-station
Muncii
Stații autobuz aprox. 119 m
bus-station
Muncii
Stații autobuz aprox. 198 m
bus-station
Statia Muncii, linia 3,10,30,31,32,33
Stații autobuz aprox. 208 m
bus-station
Muncii
Stații autobuz aprox. 286 m
Școală
kindergarten
Gradinita cu program normal nr. 16 (fosta nr. 71)
Gradinițe aprox. 208 m
school
Scoala Generala nr 20
Școli aprox. 342 m
kindergarten
Gradinita cu program normal nr. 16A (fosta nr. 16)
Gradinițe aprox. 515 m
university
Universitatea Transilvania. Corp "R"
Universități aprox. 1079 m
Recreere
park
La cariera
Parcuri aprox. 122 m
supermarket
Profi
Supermarket aprox. 339 m
sports-ground
Teren sportiv
Terenuri sport aprox. 517 m
mall
Magazinul Star
Mall aprox. 1072 m

Detalii despre preț și costuri

Prețul pe piață

Preț cerut: 192.990 €

Preț min. zonă 70.000 €
Preț max. zonă 155.000 €

i

Proprietate cu prețul cerut în afara intervalului mai multe...

Posibile explicații pentru faptul că prețul proprietății este peste cel maxim: imobil nou cu suprafață mare, are dotări și finisaje de lux.
Bine de știut: prețul unei proprietăți este influențat și de alte caracteristici, cum ar fi: vechime, localizare, vecinătăți, suprafață, compartimentare, amenajări, dotări, etc.

Costuri cu achiziția

Fără credit
9.528 RON
Credit ipotecar
11.460 RON
Noua casă
1.123 RON+ taxe notariale

i

Costuri adiționale mai puțin știute la achiziție: taxe notariale, comisioane etc.

Proprietăți recomandate

Detalii de contact

APEXO

Bianca Lungu Agent Imobiliar

4.70(4 review-uri)

APEXO
PRO

Abonează-te la newsletter să fii primul care primește cele mai noi recomandări de proprietăți și sfaturi de la experți.

CONTACT

Creează alertă

Salvează căutarea ca să primești pe email ultimele anunțuri publicate

Apartamente noi cu 2 camere de vânzare în zona Astra, Brașov