Film&3D! Proprietate regim special, 3bai, balcon, mobilat, accesorizat, Central,

180.000 €

Central, Brașov

Nr. cam.:
3
Sup. utilă:
85 mp
Etaj:
1 / 4
An constr.:
1968 (Finalizată)
  • • Locație aproximativă
  • • Vizionare prin apel video

Descriere apartament

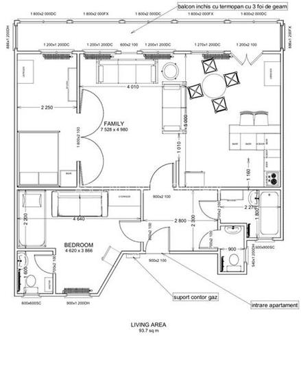
Comision cumparator: 2% + tva, din valoarea de tranzactionare ASCENDENT IMOBILIARE va propunem spre vanzare o rezidenta cu trei camere mobilat si accesorizata, situat in Brasov, in zona Teatrul Dramatic, una dintre zonarile apreciate ale ariei centrale. Va invitam sa experimentati o vizionare initiala, din locatia unde va aflati, chiar acum, prin accesarea turului virtual: Tur virtual tridimensional: https: show ?m=ezreyxdN6Yh Film Prezentare: https: shorts Oi87R0qgXUY Proprietatea impresioneaza prin spatiu personalizat, compartimentare familiala si luminozitate naturala abundenta. Zona de zi este ampla si primitoare, iar cele doua dormitoare ofera particularitate. Apartamentul dispune de doua grupuri sanitare si o baie, un avantaj apreciat, precum si de un balcon generos, inchis cu geamuri termopan, perfect pentru relaxare in orice sezon si pentru un plus de izolare fonica. Imobilul este renovat, cu instalatie electrica, sanitara si termica noua, centrala proprie si finisaje atent alese, astfel incat viitorul proprietar sa se poata muta imediat, fara investitii suplimentare. Mobilierul si dotarile sunt armonios integrate, creand un ambient cald, echilibrat si elegant. Desi pozitionat ultracentral, apartamentul ofera liniste si intimitate, fiind ideal atat pentru rezidenta proprie, cat si pentru investitie sigura pe termen lung. Cladirea este certificata clasa energetica B, cu un consum anual specific de energie de 212 kWh mp an si indice de emisii CO2 de 48 kgCO2 mp an. Consilier specializat pe aleasa oferta: domnul Marius Pop Telefon WhatsApp: Detalii, tur virtual, fotografii suplimentare si alte variante similare exclusive:
Citește mai mult Citește mai puțin
Confort 1 Semidecomandat Nemobilat 1 Balcon / Terasă / Logie Centrală proprie Beci

Detalii apartament

ID anunț: X50610RKB Copiat! 275083142 Copiat!
Actualizat în: 24 Februarie 2026
Suprafață utilă totală: 85 mp
Suprafață construită: 100 mp
Nr. bucătării: 1
Nr. băi: 3
Structură rezistență: Cărămidă
Tip imobil: Casă/Vilă
Regim înălțime: P+4E

Utilități

Destinație
Rezidențial
Jaluzele
Orizontale
Pereți
Faianță Vopsea lavabilă
Podele
Parchet Gresie
Ușă intrare
Lemn
Izolații termice
Exterior
Ferestre cu geam termopan
PVC
Bucătărie
Utilată Mobilată
Diverse
Senzor de fum
Alte spații utile
WC Serviciu
Facilități imobil
Videointerfon Interfon
Utilități
Apă Curent Gaze Canalizare Telefon CATV
Internet
Cablu
Amenajare străzi
Asfaltate
Comision
2%

Vecinătăți:

Scoala/gradinita, Centru universitar, Restaurant/pub, Mall, Parc, Central, Hotel, Piata, Intersectie circulata, Trafic Pietonal, Fastfood, Supermarket, Banca, Zona comerciala, Autobuz

Puncte de interes

Mijloace transport
bus-station
Sanitas
Stații autobuz aprox. 29 m
bus-station
Statia "sanitas", linia 1,4,34,37,2,31,17,36,6,52,50,50barat,16,51
Stații autobuz aprox. 37 m
train-station
Gara Brasov Călători CFR
Stații tren aprox. 1649 m
train-station
Statia CFR Brasov
Stații tren aprox. 1671 m
Școală
university
Facultatea de Matematica si Informatica. Corp "P"
Universități aprox. 49 m
university
Corp P
Universități aprox. 49 m
school
Scoala Generala Nr. 5
Școli aprox. 90 m
kindergarten
Gradinita 13
Gradinițe aprox. 154 m
Recreere
sports-ground
Teren sportiv
Terenuri sport aprox. 63 m
supermarket
API Biomania
Supermarket aprox. 160 m
park
Parc
Parcuri aprox. 165 m
mall
Magazinul Star
Mall aprox. 684 m

Detalii despre preț și costuri

Prețul pe piață

Preț cerut: 180.000 €

Preț min. zonă 114.500 €
Preț max. zonă 350.000 €

69% dintre proprietățile similare ca zonă și nr. camere au prețul cerut mai mare. mai multe...

Bine de știut: prețul unei proprietăți este influențat și de alte caracteristici, cum ar fi: vechime, localizare, vecinătăți, suprafață, compartimentare, amenajări, dotări, etc. mai puțin...

Costuri cu achiziția

Fără credit
27.425 RON
Credit ipotecar
29.302 RON
Noua casă
1.057 RON+ taxe notariale

i

Costuri adiționale mai puțin știute la achiziție: taxe notariale, comisioane etc.

Proprietăți similare

Apartament cu 3 camere decomandat, mobilat în Central
189.800 €
Brașov, Central
3 camere
85 mp
Etaj 2
Apartament cu 3 camere decomandat în Central
169.000 €
Brașov, Central
3 camere
83 mp
Etaj 3
Apartament cu 2 camere semidecomandat, mobilat în Central
190.000 €
Brașov, Central
2 camere
58,3 mp
Etaj 1 / 6

Detalii de contact

ASCENDENT IMOBILIARE

Marius Pop Sales Associate

5.00(3 review-uri)

ASCENDENT IMOBILIARE
PRO

Abonează-te la newsletter să fii primul care primește cele mai noi recomandări de proprietăți și sfaturi de la experți.

CONTACT

Creează alertă

Salvează căutarea ca să primești pe email ultimele anunțuri publicate

Apartamente cu 3 camere de vânzare în zona Central, Brașov