10

Apartament 3 camere, 63 mp, Craiter, etaj 4/4, vedere pe 2 părți

94.000 €

Craiter, Brașov

Nr. cam.:
3
Sup. utilă:
63,1 mp
Etaj:
4 / 4
An constr.:
1984
  • • Locație aproximativă

Descriere apartament

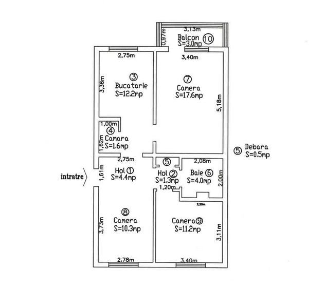
De vânzare apartament cu 3 camere situat în zona Craiter, la etajul 4 din 4, într-un bloc solid și bine poziționat. Suprafața utilă este de 63 mp, iar compartimentarea este practică: living, două dormitoare, bucătărie separată, două băi și un balcon. Locuința are vedere pe două părți, ceea ce asigură lumină naturală din plin pe tot parcursul zilei, creând un ambient cald și plăcut. Apartamentul necesită renovare, însă oferă un potențial excelent pentru a fi amenajat după propriul gust. Se află într-o zonă liniștită, cu acces rapid la mijloace de transport, magazine, școli și alte puncte de interes. Este ideal atât pentru locuință personală, cât și ca investiție. Prețul este negociabil. Pentru mai multe detalii sau pentru a programa o vizionare, nu ezitați să mă contactați. Comision 2%.
Citește mai mult Citește mai puțin
Confort 1 Decomandat Mobilat Parțial mobilat 1 Balcon / Terasă / Logie Calorifere Centrală proprie Bine întreținut (Bună)

Detalii apartament

ID anunț: X11K10Q2C Copiat! 271227108 Copiat!
Actualizat în: 02 Februarie 2026
Suprafață construită: 66.1 mp
Nr. bucătării: 1
Nr. băi: 2
Structură rezistență: Cărămidă
Tip imobil: Bloc de apartamente
Regim înălțime: P+4E

Utilități

Podele
Parchet
Ușă intrare
Metal
Uși interior
Lemn
Contorizare
Apometre Contor gaz
Electrocasnice
Aragaz Frigider Hotă
Facilități imobil
Interfon
Utilități
Curent Apă Canalizare CATV Gaze Telefon
Internet
Cablu
Amenajare străzi
Iluminat stradal Mijloace de transport în comun Asfaltate
Comision
standard

Disponibilitate proprietate:

Imediat

Puncte de interes

Mijloace transport
bus-station
Statia "Fundatura Harmanului", linia 45
Stații autobuz aprox. 75 m
bus-station
Statia Metabras, linia autobuz 45
Stații autobuz aprox. 395 m
train-station
Brasov Triaj
Stații tren aprox. 1018 m
train-station
Statia CFR Brasov
Stații tren aprox. 1838 m
Școală
school
Scoala numarul 17
Școli aprox. 507 m
kindergarten
Gradinita cu program normal nr. 17 SG (fosta nr. 14)
Gradinițe aprox. 584 m
school
Grupul Scolar Industrial de Transporturi Cai Ferate
Școli aprox. 1100 m
university
Facultatea de Constructii
Universități aprox. 1350 m
Recreere
supermarket
Lidl
Supermarket aprox. 471 m
park
Backyard (en)
Parcuri aprox. 807 m
sports-ground
Teren sportiv
Terenuri sport aprox. 1288 m
public-square
Square & Monument (en)
Piețe publice aprox. 1887 m

Detalii despre preț și costuri

Prețul pe piață

Preț cerut: 94.000 €

Preț min. zonă 89.900 €
Preț max. zonă 235.000 €

89% dintre proprietățile similare ca zonă și nr. camere au prețul cerut mai mare. mai multe...

Bine de știut: prețul unei proprietăți este influențat și de alte caracteristici, cum ar fi: vechime, localizare, vecinătăți, suprafață, compartimentare, amenajări, dotări, etc. mai puțin...

Costuri cu achiziția

Fără credit
5.827 RON
Credit ipotecar
7.324 RON
Noua casă
619 RON+ taxe notariale

i

Costuri adiționale mai puțin știute la achiziție: taxe notariale, comisioane etc.

Proprietăți recomandate

Detalii de contact

Mi Casa

Daniel ROTARU Consultant imobiliar

5.00(4 review-uri)

Mi Casa
PRO

Abonează-te la newsletter să fii primul care primește cele mai noi recomandări de proprietăți și sfaturi de la experți.

CONTACT

Creează alertă

Salvează căutarea ca să primești pe email ultimele anunțuri publicate

Apartamente cu 3 camere de vânzare în zona Craiter, Brașov