1

Apartament cu 4 camere in strada Lacurilor -cartier Noua, 2 bai, etaj 2, balcon!

125.000 €

Noua, Brașov

Nr. cam.:
4
Sup. utilă:
77 mp
Etaj:
2 / 4
An constr.:
1978 (Finalizată)
  • • Locație exactă

Descriere apartament

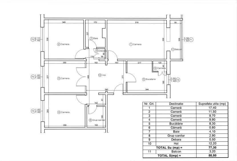
Agentia Imobiliara COV-ALIN, propune la vanzare apartament cu 4 camere situat in strada Lacurilor in cartierul Noua, confort 1 decomandat, etaj 2, suprafata utila 77,30 mp, balcon 3,20 mp, suprafata construita 80,50 mp. Apartamentul are centrala termica proprie, geamuri termopan, parchet, balcon inchis in termopan si este izolat la exterior. Liber la vanzare! Agentia percepe comision 2%+TVA de la cumparator. COD anunt 1452.
Citește mai mult Citește mai puțin
Decomandat 1 Balcon / Terasă / Logie Calorifere Centrală proprie Bine întreținut (Bună)

Detalii apartament

ID anunț: X09I000V6 Copiat! 275128444 Copiat!
Actualizat în: 26 Februarie 2026
Nr. bucătării: 1
Nr. băi: 2
Structură rezistență: Beton
Tip imobil: Bloc de apartamente
Regim înălțime: P+4E

Utilități

Destinație
Rezidențial
Pereți
Faianță Vopsea lavabilă
Podele
Gresie Parchet
Ușă intrare
Metal
Izolații termice
Exterior
Ferestre cu geam termopan
PVC
Contorizare
Contor gaz
Alte spații utile
Debara
Facilități imobil
Interfon
Utilități
Gaze Curent Canalizare Apă
Amenajare străzi
Asfaltate Mijloace de transport în comun Iluminat stradal
Comision
2%+TVA

Certificat energetic:

Clasa energetică: B

Puncte de interes

Mijloace transport
bus-station
Statia Poiana Darste, linia 17,21,35
Stații autobuz aprox. 37 m
bus-station
Aurora
Stații autobuz aprox. 318 m
bus-station
Statia Strand Noua, linia 17,21,35
Stații autobuz aprox. 353 m
train-station
Brasov Darste
Stații tren aprox. 710 m
Școală
kindergarten
Gradinita cu program normal nr. 21 SG (fosta nr. 68)
Gradinițe aprox. 152 m
kindergarten
Gradinita Cetatea Prichindeilor
Gradinițe aprox. 469 m
school
Scoala generala Nr 29
Școli aprox. 486 m
school
Scoala generala nr 21
Școli aprox. 627 m
Recreere
sports-ground
Teren sportiv
Terenuri sport aprox. 165 m
park
loc de joaca
Parcuri aprox. 334 m
bar
la piru
Bar aprox. 338 m
supermarket
Metro
Supermarket aprox. 960 m

Detalii despre preț și costuri

Prețul pe piață

Preț cerut: 125.000 €

Preț min. zonă 121.500 €
Preț max. zonă 335.000 €

82% dintre proprietățile similare ca zonă și nr. camere au prețul cerut mai mare. mai multe...

Bine de știut: prețul unei proprietăți este influențat și de alte caracteristici, cum ar fi: vechime, localizare, vecinătăți, suprafață, compartimentare, amenajări, dotări, etc. mai puțin...

Costuri cu achiziția

Fără credit
7.193 RON
Credit ipotecar
8.836 RON
Noua casă
777 RON+ taxe notariale

i

Costuri adiționale mai puțin știute la achiziție: taxe notariale, comisioane etc.

Proprietăți recomandate

Detalii de contact

COV ALIN

Covaliu Alin Administrator

COV ALIN
PRO

Abonează-te la newsletter să fii primul care primește cele mai noi recomandări de proprietăți și sfaturi de la experți.

CONTACT

Creează alertă

Salvează căutarea ca să primești pe email ultimele anunțuri publicate

Apartamente cu 4+ camere de vânzare în zona Noua, Brașov