5

Apartment cu 2 camere de vanzare

135.000 €

Tractorul, Brașov

Nr. cam.:
2
Sup. utilă:
54 mp
Etaj:
6
An constr.:
2020
  • • Locație Verificată
  • • Locație exactă

Descriere apartament

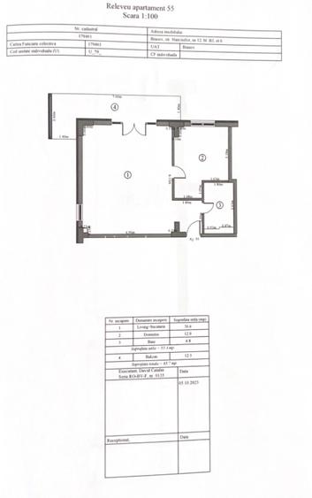
Agenția Rentaway Brasov vă propune spre vânzare un apartament decomandat situat la etajul 6 într-un bloc cu 8 etaje. Cu o suprafață totală de 67 mp și utilă de 54 mp utili, această proprietate oferă confort, compartimentare inteligentă și lumină naturală. Proprietatea se vinde complet mobilată și utilată și momentan se închiriază în regim hotelier. Acest fapt oferă și o oportunitate de achiziție a unui afaceri la cheie întrucât apartamentul aduce un venit destul de consistent si este administrat de o firmă specializată ce este dispusă să extindă colaborarea cu noul proprietar. Compartimentare eficientă: - Baie – 4.8 mp, confortabilă și modernă - Cameră de zi și bucătărie – 36.6 mp, luminoasă și aerisită - Dormitor – 12 mp, spațiu ideal pentru relaxare - Terasă – 12.3 mp, pentru relaxare și Există și disponibilitatea achiziției unui loc de parcare pentru suma de 10000 euro. Pentru mai multe detalii și programări la vizionare vă rugăm să ne contactați la numărul de telefon sau pe whatsapp. Preț :135000 Euro ! Comision agenție 2%! Tel:
Citește mai mult Citește mai puțin
Confort lux Semidecomandat

Detalii apartament

ID anunț: XV10004U7 Copiat! 274118824 Copiat!
Actualizat în: 19 Februarie 2026
Nr. băi: 1
Tip imobil: Bloc de apartamente
Regim înălțime: P+8E

Utilități

Comision
2%

Puncte de interes

Mijloace transport
bus-station
Statia "Baza MTTC", linia 1,10,21,23barat
Stații autobuz aprox. 540 m
bus-station
Statia "RAT Brasov", linia 23barat,10,1,21
Stații autobuz aprox. 556 m
bus-station
Statia Metabras, linia autobuz 45
Stații autobuz aprox. 709 m
train-station
Brasov Triaj
Stații tren aprox. 1262 m
Școală
school
Scoala Generala Nr. 31
Școli aprox. 738 m
kindergarten
Gradinita cu program normal nr. 30 (fosta nr. 27)
Gradinițe aprox. 787 m
school
Grupul Scolar Industrial de Transporturi Cai Ferate
Școli aprox. 892 m
university
Facultatea de Constructii
Universități aprox. 1804 m
Recreere
supermarket
Liliput
Supermarket aprox. 784 m
park
Parc
Parcuri aprox. 934 m
restaurant
Cantina CET
Restaurant aprox. 1524 m
sports-ground
Teren sportiv
Terenuri sport aprox. 1973 m

Detalii despre preț și costuri

Prețul pe piață

Preț cerut: 135.000 €

Preț min. zonă 85.000 €
Preț max. zonă 181.999 €

54% dintre proprietățile similare ca zonă și nr. camere au prețul cerut mai mic. mai multe...

Bine de știut: prețul unei proprietăți este influențat și de alte caracteristici, cum ar fi: vechime, localizare, vecinătăți, suprafață, compartimentare, amenajări, dotări, etc. mai puțin...

Costuri cu achiziția

Fără credit
21.294 RON
Credit ipotecar
22.980 RON
Noua casă
828 RON+ taxe notariale

i

Costuri adiționale mai puțin știute la achiziție: taxe notariale, comisioane etc.

Proprietăți recomandate

Detalii de contact

Liviu lonescu

Liviu lonescu

Abonează-te la newsletter să fii primul care primește cele mai noi recomandări de proprietăți și sfaturi de la experți.

CONTACT

Creează alertă

Salvează căutarea ca să primești pe email ultimele anunțuri publicate

Apartamente cu 2 camere de vânzare în zona Tractorul, Brașov