Apartament 3 camere mobilat complet, bloc nou, Buna Ziua !

268.000 €

Bună Ziua, Cluj-Napoca

Nr. cam.:
3
Sup. utilă:
75 mp
Etaj:
Parter / 8
An constr.:
2017 (Finalizată)
  • • Locație aproximativă

Descriere apartament

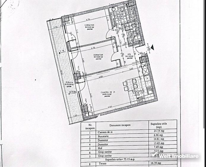
Welt Imobiliare are placerea de a va prezenta un apartament compus din 3 camere. Apartamentul se afla in cartierul Buna Ziua, mai exact in apropierea liceului Elf ceea ce il pozitioneaza intr-o locatie excelenta . Suprafata sa utila este de 75mp,mai exact 3 camere dintre care 2 dormitoare, 2 bai, living open space cu bucatarie si o terasa de 15mp. Apartamentul se vinde complet utilat si mobilat oferindu-le noilor proprietari tot ce au nevoie pentru a se muta direct. Este pozitionat la parterul unui bloc compus din P+8. In acest pret este inclus si un loc subteran de parcare. Pentru mai multe detalii nu ezitati sa ne contactati, multumim !
Citește mai mult Citește mai puțin
Decomandat Mobilat Mobilat 1 Balcon / Terasă / Logie Aer condiționat Calorifere Centrală proprie 1 Parcare 1 Parcare / Garaj / Parcare subterană

Detalii apartament

ID anunț: X1KA10CQ2 Copiat! 254191915 Copiat!
Actualizat în: 19 Februarie 2026
Nr. bucătării: 1
Nr. băi: 2
Structură rezistență: Cărămidă
Tip imobil: Bloc de apartamente
Regim înălțime: P+8E

Utilități

Destinație
Rezidențial
Pereți
Vopsea lavabilă
Podele
Parchet
Ușă intrare
Metal
Uși interior
Lemn
Izolații termice
Exterior
Contorizare
Apometre Contor căldură Contor gaz
Bucătărie
Mobilată
Electrocasnice
Mașină de spălat Frigider Aragaz TV Hotă
Alte spații utile
Terasă
Facilități imobil
Interfon Lift
Utilități
Curent Apă Canalizare Gaze Telefon
Amenajare străzi
Asfaltate Iluminat stradal Mijloace de transport în comun
Comision
2%+TVA

Vecinătăți:

Grand Hotel Italia, LIDL, Bonjour Residence

Disponibilitate proprietate:

imediat

Puncte de interes

Mijloace transport
bus-station
Dacia Service
Stații autobuz aprox. 522 m
bus-station
Statia Dacia Service, Linia 40
Stații autobuz aprox. 533 m
bus-station
Alsifcom
Stații autobuz aprox. 535 m
bus-station
Statia Alsifcom, Linia 40
Stații autobuz aprox. 541 m
Școală
school
Liceul de Informatica Tiberiu Popoviciu
Școli aprox. 1384 m
school
Liceul de Informatica "Tiberiu Popoviciu"
Școli aprox. 1408 m
university
Facultatea Arte Plastice, Sectia Foto-Video
Universități aprox. 1564 m
kindergarten
Helen
Gradinițe aprox. 1742 m
Recreere
park
Parc
Parcuri aprox. 673 m
sports-ground
Teren sportiv
Terenuri sport aprox. 750 m
restaurant
Greenbox Pizza
Restaurant aprox. 777 m
supermarket
Baumax
Supermarket aprox. 799 m

Detalii despre preț și costuri

Prețul pe piață

Preț cerut: 268.000 €

Preț min. zonă 140.000 €
Preț max. zonă 360.000 €

69% dintre proprietățile similare ca zonă și nr. camere au prețul cerut mai mic. mai multe...

Bine de știut: prețul unei proprietăți este influențat și de alte caracteristici, cum ar fi: vechime, localizare, vecinătăți, suprafață, compartimentare, amenajări, dotări, etc. mai puțin...

Costuri cu achiziția

Fără credit
12.100 RON
Credit ipotecar
14.350 RON
Noua casă
1.505 RON+ taxe notariale

i

Costuri adiționale mai puțin știute la achiziție: taxe notariale, comisioane etc.

Proprietăți recomandate

Detalii de contact

WELT IMOBILIARE

Welt Imobiliare

4.52(21 review-uri)

WELT IMOBILIARE
PRO

Abonează-te la newsletter să fii primul care primește cele mai noi recomandări de proprietăți și sfaturi de la experți.

CONTACT

Creează alertă

Salvează căutarea ca să primești pe email ultimele anunțuri publicate

Apartamente cu 3 camere de vânzare în zona Bună Ziua, Cluj-Napoca