13

Apartament 2 camere in Tomis Plus incalzire in pardoseala-loc de parcare inclus

95.000 € + TVA

Tomis Plus, Constanța

Nr. cam.:
2
Sup. utilă:
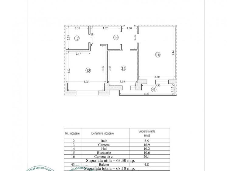
63,3 mp
Etaj:
Parter / 3
An constr.:
2024 (Finalizată)
  • • Comision 0%
  • • Locație aproximativă

Descriere apartament

Apartament de vanzare – 2 camere decomandate + balcon, parter, loc parcare in curte inclus --- POZELE LA GATA, SUNT CU SCOP DE PREZENTARE --- IMOBILUL SE PREDA LA ALB --- LA CHEIE SE PREDA DOAR LA CEREREA CLIENTULUI --- Tip oferta: Vanzare direct Etaj: Parter Suprafata utila: 63,30 mp Balcon: 4,8 mp Loc de parcare: Inclus, situat in curtea imobilului Stadiu livrare: La alb (cu optiune „la cheie”) Incalzire: In pardoseala Aer conditionat: Inclus in pret Structura: Zidarie din BCA Izolatie: Termoizolatie exterioara cu polistiren de 10 cm Acte: Cadastru si intabulare finalizate Pret: La alb – [95.000 euro + TVA] Pret la cheie: Disponibil la cerere Detalii suplimentare: Va prezentam un apartament modern si spatios cu 2 camere, situat la parter, ideal pentru un trai confortabil si eficient. Cu o suprafata utila de 65.80 mp si un balcon de 5.30 mp, proprietatea ofera o compartimentare optima si materiale de calitate. Construit pe structura din BCA, cu izolatie exterioara din polistiren de 10 cm, apartamentul beneficiaza de incalzire in pardoseala si aer conditionat inclus, asigurand un climat interior placut indiferent de anotimp. Locuinta se preda la alb, cu toate instalatiile trase pe pozitii, pereti finisati cu glet si vopsea lavabila, tamplarie PVC cu geam termopan, pregatita pentru personalizarea finisajelor interioare dupa gustul noului proprietar. Locul de parcare, situat in curtea imobilului, este inclus in pret, oferind confort si siguranta. Pentru doritori, exista si posibilitatea achizitiei la cheie, cu finisaje de calitate superioara – disponibila la un pret adaptat preferintelor alese. Avantaje: Cadastru si intabulare – acte pregatite pentru vanzare Constructie din BCA + izolatie 10 cm – eficienta energetica Incalzire in pardoseala + aer conditionat inclus Parcare in curte – inclusa in pret Variante de livrare: la alb sau la cheie Pozitionare ideala – acces facil pentru toate categoriile de varsta Pentru mai multe informatii, vizionari sau consultanta privind optiunea „la cheie”, va invitam sa ne contactati. Apartamentul este pregatit sa devina acasa, exact asa cum vi-l doriti.
Citește mai mult Citește mai puțin
Confort lux Decomandat Nemobilat 1 Balcon / Terasă / Logie Aer condiționat Încălzire prin pardoseală Necesită renovare Zonă de litoral

Detalii apartament

ID anunț: X4K0102A1 Copiat! 263160604 Copiat!
Actualizat în: 05 Februarie 2026
Nr. bucătării: 1
Nr. băi: 2
Structură rezistență: BCA
Tip imobil: Bloc de apartamente
Regim înălțime: D+P+3E

Utilități

Destinație
Rezidențial
Contorizare
Apometre Contor căldură Contor gaz
Facilități imobil
Interfon Lift Acoperiș
Utilități
Curent Apă Canalizare Gaze CATV
Rulouri/Obloane
Aluminiu
Izolații termice
Exterior
Amenajare străzi
Asfaltate Iluminat stradal Mijloace de transport în comun

Vecinătăți:

Kaufland, Mega Image, Profi, Minifarm, Statie Taxi, Cabinet Medical, Body Time, Sala de sport Coafor, Carmamngerie

Disponibilitate proprietate:

imediat

Puncte de interes

Mijloace transport
bus-station
Targ legume fructe [3B]
Stații autobuz aprox. 1586 m
bus-station
Statia Carrefour, autobuzele 100C, 43C
Stații autobuz aprox. 1754 m
bus-station
Carrefour [43C 100C]
Stații autobuz aprox. 1812 m
Recreere
supermarket
Carrefour
Supermarket aprox. 1570 m
supermarket
JYSK
Supermarket aprox. 1597 m
supermarket
Centrul Comercial Tom
Supermarket aprox. 1620 m

Detalii despre preț și costuri

Prețul pe piață

Preț cerut: 95.000 €

Preț min. zonă 71.000 €
Preț max. zonă 149.000 €

92% dintre proprietățile similare ca zonă și nr. camere au prețul cerut mai mare. mai multe...

Bine de știut: prețul unei proprietăți este influențat și de alte caracteristici, cum ar fi: vechime, localizare, vecinătăți, suprafață, compartimentare, amenajări, dotări, etc. mai puțin...

Costuri cu achiziția

Fără credit
6.814 RON
Credit ipotecar
8.415 RON
Noua casă
726 RON+ taxe notariale

i

Costuri adiționale mai puțin știute la achiziție: taxe notariale, comisioane etc.

Proprietăți recomandate

Detalii de contact

Tomis Top Estate

Irina Verban Real Estate Agent

Tomis Top Estate
PRO

Abonează-te la newsletter să fii primul care primește cele mai noi recomandări de proprietăți și sfaturi de la experți.

CONTACT

Creează alertă

Salvează căutarea ca să primești pe email ultimele anunțuri publicate

Apartamente noi cu 2 camere de vânzare în zona Tomis Plus, Constanța