Apartament 2 camere | Bloc nou | Terasa mare | 2 parcari Floresti – Tineretului

105.000 €

Florești, Județul Cluj

Nr. cam.:
2
Sup. utilă:
64 mp
Etaj:
2 / 2
An constr.:
2026 (Finalizată)
  • • Locație aproximativă

Descriere apartament

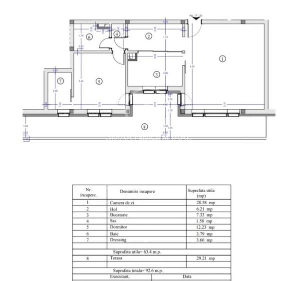
Va propunem spre vânzare un apartament situat într-un imobil nou, finalizat în 2026, cu regim redus de înaltime (P+2E), compus din doar 12 apartamente, oferind intimitate, liniste si confort.   Locatie: Floresti, str. Tineretului Priveliste panoramica asupra zonei Etaj retras, cu terasa generoasa Detalii proprietate: Compartimentare eficienta Finisat modern Terasa mare, ideala pentru relaxare Imobil cu numar redus de locuinte Dotari: Încalzire în pardoseala Centrala termica proprie Geamuri termopan tripan Confort termic ridicat Cladire noua, standarde moderne de executie Parcari: Locurile de parcare sunt situate în curtea imobilului, cu acces securizat prin bariera. Pretul afisat este fara TVA pretul final cu TVA inclus este 127.500 euro. Pentru persoane juridice platitoare de TVA se aplica taxare inversa Pret parcare: 5.000 euro + TVA / loc Se pot achizitiona doua locuri sau un singur loc de parcare, în functie de necesitate. Ideal pentru locuire proprie sau investitie într-un imobil nou, aerisit si bine pozitionat. Comision 2% din pretul de vanzare
Citește mai mult Citește mai puțin
Confort 1 Semidecomandat Nemobilat Centrală proprie Încălzire prin pardoseală 2 Parcări 2 Parcări / Garaje / Parcări subterane

Detalii apartament

ID anunț: X8BO102VD Copiat! 275149571 Copiat!
Actualizat în: 28 Februarie 2026
Suprafață construită: 72 mp
Nr. băi: 1
Structură rezistență: Cărămidă
Tip imobil: Bloc de apartamente
Regim înălțime: P+2E

Utilități

Destinație
Rezidențial
Pereți
Vopsea lavabilă Faianță
Podele
Parchet Gresie
Uși interior
Celulare
Izolații termice
Bloc izolat termic
Ferestre cu geam termopan
PVC
Contorizare
Apometre Contor gaz
Alte spații utile
Terasă
Facilități imobil
Interfon
Utilități
Curent Apă Canalizare Gaze CATV
Amenajare străzi
Asfaltate
Comision
2%

Disponibilitate proprietate:

imediat

Puncte de interes

Mijloace transport
bus-station
Iuliu Hossu
Stații autobuz aprox. 319 m
bus-station
M-Complex Floresti
Stații autobuz aprox. 444 m
bus-station
Primaria Floresti N
Stații autobuz aprox. 553 m
bus-station
Primaria Floresti S
Stații autobuz aprox. 555 m
Recreere
supermarket
Diana
Supermarket aprox. 171 m
pub
Silviu
Pub aprox. 303 m
park
Parc
Parcuri aprox. 826 m
sports-ground
Teren Fotbal Sintetic
Terenuri sport aprox. 1298 m

Detalii despre preț și costuri

Prețul pe piață

Preț cerut: 105.000 €

Preț min. zonă 75.000 €
Preț max. zonă 147.500 €

85% dintre proprietățile similare ca zonă și nr. camere au prețul cerut mai mare. mai multe...

Bine de știut: prețul unei proprietăți este influențat și de alte caracteristici, cum ar fi: vechime, localizare, vecinătăți, suprafață, compartimentare, amenajări, dotări, etc. mai puțin...

Costuri cu achiziția

Fără credit
17.045 RON
Credit ipotecar
18.603 RON
Noua casă
675 RON+ taxe notariale

i

Costuri adiționale mai puțin știute la achiziție: taxe notariale, comisioane etc.

Proprietăți similare

Apartament cu 2 camere semidecomandat, mobilat în Florești
112.500 €
Județul Cluj, Florești
2 camere
45 mp
Etaj 1 / 4
Apartament cu 2 camere decomandat, mobilat în Florești
113.000 €
Județul Cluj, Florești
2 camere
55,6 mp
Parter
Apartament cu 2 camere semidecomandat în Florești
99.500 €
Județul Cluj, Florești
2 camere
55 mp
Etaj 2

Detalii de contact

SMART IMOBILIARE

Vlad Munteanu Specialist Imobiliar

SMART IMOBILIARE

Abonează-te la newsletter să fii primul care primește cele mai noi recomandări de proprietăți și sfaturi de la experți.

CONTACT

Creează alertă

Salvează căutarea ca să primești pe email ultimele anunțuri publicate

Apartamente noi cu 2 camere de vânzare în Florești, Județul Cluj