3

Apartament cu 3 camere/70mp/parcare/zona Somesului.

144.000 €

Florești, Județul Cluj

Nr. cam.:
3
Sup. utilă:
70,3 mp
Etaj:
1 / 4
An constr.:
2020 (Finalizată)
  • • Locație aproximativă

Descriere apartament

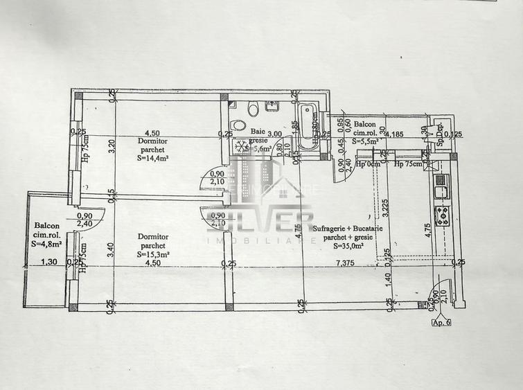
Apartament in zona linistita si aerisita! Silver Imobiliare ofera spre vanzare apartament cu 3 camere situat in Floresti, zona strazii Somesului la etaj 1 intr-un imobil calitativ dispus pe 4 niveluri cu acces facil spre Cluj-Napoca. Apartamentul este orientat sud-este, are suprafata utila de 70.3mp+2 balcoane (1 balcon prevazut cu camara) cu suprafata totala de 11.55 mp+camara, fiind compartimentat astfel: - camera de zi spatioasa impreuna cu bucataria; - 2 dormitoare; - baie prevazuta cu geam; - balcon de 5.5 mp+camara de 1,25 mp cu acces din camera de zi; - balcon de 4.8 mp inchis cu tamplarie din Pvc cu acces din dormitorul principal La nivel de finisaje apartamentul se prezinta in stare foarte buna, avand pereti zugraviti cu vopsea lavabila, pardosea cu gresie si parchet laminat, usi interioare tip Porta Doors, geamuri termoizolante din Pvc, usa acces metalica cu 6 puncte de inchidere/antiefractie, iar confortul termic este cu centrala termica proprie in condensare marca BOSCH ( in garantie) si calorifere. Apartamentul se vinde complet mobilat si utilat cu mici exceptii+1 PARCARE exterioara inclusa in pretul listat. Pentru alte detalii sau programarea unei vizionari, apelati cu incredere!
Citește mai mult Citește mai puțin
Confort 1 Semidecomandat Mobilat Mobilat 2 Balcoane / Terase / Logii Calorifere Centrală proprie 1 Parcare

Detalii apartament

ID anunț: XF6T1006N Copiat! 275071695 Copiat!
Actualizat în: 24 Februarie 2026
Suprafață construită: 85 mp
Nr. bucătării: 1
Nr. băi: 1
Structură rezistență: Cărămidă
Tip imobil: Bloc de apartamente
Regim înălțime: D+P+4E

Utilități

Pereți
Vopsea lavabilă
Podele
Gresie Parchet
Ușă intrare
Metal
Izolații termice
Exterior
Ferestre cu geam termopan
PVC
Contorizare
Apometre Contor gaz
Bucătărie
Mobilată Utilată
Electrocasnice
Aragaz Frigider Hotă Mașină de spălat TV
Diverse
Telecomandă poartă acces auto
Alte spații utile
Debara
Facilități imobil
Interfon
Utilități
Curent Apă Canalizare CATV Gaze Telefon
Internet
Cablu
Amenajare străzi
Iluminat stradal Mijloace de transport în comun Asfaltate
Comision
standard

Certificat energetic:

Clasa energetică: B
Consumul total specific de energie primară: 128 kWh
Indicele de emisii echivalent CO2: 26.15

Vecinătăți:

Stadion Floresti, Muzeul Apei, Magazine.

Disponibilitate proprietate:

Imediat

Puncte de interes

Mijloace transport
bus-station
Somesului
Stații autobuz aprox. 695 m
bus-station
M-Poligonului E
Stații autobuz aprox. 709 m
bus-station
Poligonului E
Stații autobuz aprox. 709 m
bus-station
Poligonului V
Stații autobuz aprox. 728 m
Recreere
restaurant
Sara Grand Resort**** (en)
Restaurant aprox. 322 m
supermarket
Diana
Supermarket aprox. 694 m
park
Parc
Parcuri aprox. 1011 m
sports-ground
Teren Fotbal Sintetic
Terenuri sport aprox. 1818 m

Detalii despre preț și costuri

Prețul pe piață

Preț cerut: 144.000 €

Preț min. zonă 85.000 €
Preț max. zonă 195.000 €

54% dintre proprietățile similare ca zonă și nr. camere au prețul cerut mai mic. mai multe...

Bine de știut: prețul unei proprietăți este influențat și de alte caracteristici, cum ar fi: vechime, localizare, vecinătăți, suprafață, compartimentare, amenajări, dotări, etc. mai puțin...

Costuri cu achiziția

Fără credit
7.846 RON
Credit ipotecar
9.570 RON
Noua casă
874 RON+ taxe notariale

i

Costuri adiționale mai puțin știute la achiziție: taxe notariale, comisioane etc.

Proprietăți recomandate

Detalii de contact

SILVER IMOBILIARE

Dorel Lacatus Senior Broker

SILVER IMOBILIARE
PRO

Abonează-te la newsletter să fii primul care primește cele mai noi recomandări de proprietăți și sfaturi de la experți.

CONTACT

Creează alertă

Salvează căutarea ca să primești pe email ultimele anunțuri publicate

Apartamente cu 3 camere de vânzare în Florești, Județul Cluj