1

Bloc finalizat. Bucatarie inchisa. Loc de parcare. Spatiu depozitare

99.900 €

Giroc, Județul Timiș

Nr. cam.:
2
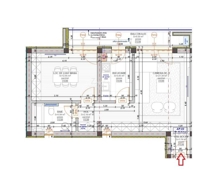
Sup. utilă:
48,63 mp
Etaj:
1 / 3
An constr.:
2025 (Finalizată)
  • • Locație aproximativă

Descriere apartament

ZayHome va propune spre vanzare un bloc nou finalizat format din apartament cu 2 camere in Giroc, in apropiere de hotelul IQ. Apartamentele se vor preda finisate la "cheie" si racordate la toate utilitatile (apa, gaz, canal, curent). Toate apartamentele beneficiaza 1 loc de parcare inclus in pret. Modele de apartamente cu 2 camere: - 42.61 mp utili + balcon 3.7 mp, disponibil la Etaj 2 si Etaj 3 - Pret: 84.000 Euro - 48.63 mp utili + balcon 8.59 mp, disponibil la Etaj 3 - Pret: 95.500 Euro Dotari: - Geamuri heliomate - Usa intrare din lemn masiv - Parchet laminat de 10 cm - Tamplarie Barrier - Inaltimea camerelor generoasa de 3m - Centrala proprie cu incalzirea prin pardoseala - Prize anti electrocutare - Finisaje din gama superioara - Pod izolat cu spuma - Videointerfon - Supraveghere video - Loc de parcare Lasa procesul de achizitie al imobilului mult visat in seama noastra, vei avea mai putine griji si vei beneficia de consultanta imobiliara, financiar-bancara si juridica pe tot parcusul acestuia. Te asteptam cu drag la o vizionare!
Citește mai mult Citește mai puțin
Confort 1 1 Balcon / Terasă / Logie Aer condiționat Centrală proprie Încălzire prin pardoseală 1 Parcare

Detalii apartament

ID anunț: XC6P100UU Copiat! 274067468 Copiat!
Actualizat în: 23 Ianuarie 2026
Suprafață construită: 58.8 mp
Nr. bucătării: 1
Nr. băi: 1
Tip imobil: Bloc de apartamente
Regim înălțime: P+3E

Utilități

Destinație
Rezidențial
Pereți
Faianță Vopsea lavabilă
Podele
Gresie Parchet
Ușă intrare
Metal
Izolații termice
Exterior
Ferestre cu geam termopan
PVC
Contorizare
Apometre Contor gaz
Facilități imobil
Videointerfon
Utilități
Curent Apă Canalizare CATV Gaze Telefon
Internet
Cablu
Amenajare străzi
Iluminat stradal Mijloace de transport în comun Asfaltate

Vecinătăți:

Shopping :
- Carrefour, Penny, Lidl, Profi, Prospero
- Pepco, Kik, Sinsay
Educatie :
- Neghinita Kindergarten Club, Gradinita P.P Nr.11, Gradinita P.P Nr.1
- Scoala Generala Nr. 14
- Grup Scolar de Chimie si Protectia Mediului Azur, Liceul Teoretic Iris
Autobuze : Linia E3
Tranvaie: Linia 7, Linia 9

Disponibilitate proprietate:

August 2025

Puncte de interes

Mijloace transport
bus-station
Giroceana
Stații autobuz aprox. 270 m
train-station
Halta Giroc hc
Stații tren aprox. 403 m
bus-station
Giroceana
Stații autobuz aprox. 404 m
tram-station
Statie P. Pavlov Tv7
Stații tramvai aprox. 1731 m
Școală
university
CENTRU REGIONALDE PREGATIRE PROFESIONALA PENTRU MAGISTRATI, GIROC, tIMISOARA
Universități aprox. 737 m
school
Scoala Generala si Gradinita Giroc (en)
Școli aprox. 1487 m
university
Institutul de Cercetari pentru Energii Regenerabile
Universități aprox. 1612 m
kindergarten
Gradinita Program Prelungit Nr. 1
Gradinițe aprox. 1662 m
Recreere
supermarket
Carrefour Market
Supermarket aprox. 619 m
restaurant
DAF Junior
Restaurant aprox. 725 m
park
Parc
Parcuri aprox. 774 m
sports-ground
Teren sportiv
Terenuri sport aprox. 1973 m

Detalii despre preț și costuri

Prețul pe piață

Preț cerut: 99.900 €

Preț min. zonă 69.900 €
Preț max. zonă 115.000 €

86% dintre proprietățile similare ca zonă și nr. camere au prețul cerut mai mic. mai multe...

Bine de știut: prețul unei proprietăți este influențat și de alte caracteristici, cum ar fi: vechime, localizare, vecinătăți, suprafață, compartimentare, amenajări, dotări, etc. mai puțin...

Costuri cu achiziția

Fără credit
6.105 RON
Credit ipotecar
7.642 RON
Noua casă
649 RON+ taxe notariale

i

Costuri adiționale mai puțin știute la achiziție: taxe notariale, comisioane etc.

Proprietăți recomandate

Detalii de contact

Abonează-te la newsletter să fii primul care primește cele mai noi recomandări de proprietăți și sfaturi de la experți.

CONTACT

Creează alertă

Salvează căutarea ca să primești pe email ultimele anunțuri publicate

Apartamente noi cu 2 camere de vânzare în Giroc, Județul Timiș