1

Apartament nou, 2 camere, bucatarie inchisa, Calea Urseni, Giroc

85.000 €

Giroc, Județul Timiș

Nr. cam.:
2
Sup. utilă:
53 mp
Etaj:
Parter / 3
An constr.:
2025 (Finalizată)
  • • Locație aproximativă

Descriere apartament

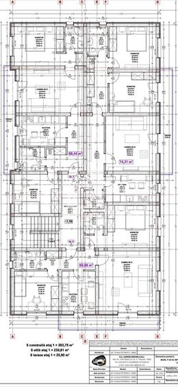
Apostu Estate va ofera spre vanzare un apartament cu 2 camere, decomandat, cu bucatarie inchisa, situat in Giroc, zona Calea Urseni, la aproximativ 1km distanta fata de Zone 2 si Mega Image. Imobil realizat din caramida Porotherm de 30 cm pe exterior, 25 cm zidurile pe interior si 11.5 zidurile de compartimentare la bai. Izolatie de 10 cm EPS 80. Acoperis din tigla. Loc de parcare propriu inscris in cartea funciara. Trei apartamente pe etaj. Regim de inaltime: P + 2 + M. Acoperis din tigla. Tamplarie PVC, geamuri tripan. Confortul termic se realizeaza cu ajutorul centralei proprii pe gaz, incalzire in pardoseala. Apartamentul dispune de 53 mpu, plus un balcon de aproximativ 5 - 6 mp. Compartimentate astfel: - hol de acces generos - bucatarie inchisa, 8 mp - living, 18.5 mp - dormitor, 14 mp - baie cu dus, rigola si toaleta suspendata cu rezervor incorporat, 5mp - balcon deschis Disponibile: Etaj 2 - 87.500 euro si 88.000 euro Etaj 3 - 86.000 euro si 85.000 euro Parter -85.000 euro Agentia imobiliara Apostu Estate va ofera consultanta bancara gratuita prin intermediul colaboratorilor nostri pentru alegerea celui mai potrivit tip de credit, astfel incat tu sa devi noul proprietar al acestui apartament. Va asteptam cu drag la o vizionare!
Citește mai mult Citește mai puțin
Confort 1 Decomandat Nemobilat 1 Balcon Centrală proprie

Detalii apartament

ID anunț: XBAF10OKP Copiat! 274323312 Copiat!
Actualizat în: 04 Februarie 2026
Suprafață construită: 61 mp
Nr. bucătării: 1
Nr. băi: 2
Tip imobil: Bloc de apartamente
Regim înălțime: P+3E

Utilități

Pereți
Faianță Vopsea lavabilă
Podele
Parchet
Ușă intrare
Metal
Izolații termice
Exterior
Ferestre cu geam termopan
PVC
Contorizare
Contor gaz
Dotări imobil
Acoperiș Interfon
Utilități
Curent Apă Canalizare Gaze

Vecinătăți:

Mega Image
Profi
Zone Caffe 2

Disponibilitate proprietate:

Imediat

Puncte de interes

Mijloace transport
bus-station
Semenic
Stații autobuz aprox. 1556 m
train-station
Halta Semenic Hm (en)
Stații tren aprox. 1635 m
tram-station
Statie Ciarda Rosie Tv4
Stații tramvai aprox. 1783 m
tram-station
Statie I.O.T. Tv4
Stații tramvai aprox. 1952 m
Școală
school
Scoala Generala 20
Școli aprox. 1438 m
kindergarten
Gradinita Program Normal Nr. 6
Gradinițe aprox. 1449 m
school
Scoala Gimnaziala nr. 20
Școli aprox. 1449 m
school
Colegiul Tehnic Electrotimis
Școli aprox. 1911 m
Recreere
park
Parcul Ciarda Rosie
Parcuri aprox. 1226 m
park
Parc
Parcuri aprox. 1233 m
sports-ground
Arena Ciarda Rosie
Terenuri sport aprox. 1839 m
sports-ground
Teren sportiv
Terenuri sport aprox. 1843 m

Detalii despre preț și costuri

Prețul pe piață

Preț cerut: 85.000 €

Preț min. zonă 69.900 €
Preț max. zonă 115.000 €

78% dintre proprietățile similare ca zonă și nr. camere au prețul cerut mai mare. mai multe...

Bine de știut: prețul unei proprietăți este influențat și de alte caracteristici, cum ar fi: vechime, localizare, vecinătăți, suprafață, compartimentare, amenajări, dotări, etc. mai puțin...

Costuri cu achiziția

Fără credit
5.404 RON
Credit ipotecar
6.830 RON
Noua casă
573 RON+ taxe notariale

i

Costuri adiționale mai puțin știute la achiziție: taxe notariale, comisioane etc.

Proprietăți recomandate

Detalii de contact

APOSTU ESTATE

Andra Bazavan Senior Broker

APOSTU ESTATE
PRO

Abonează-te la newsletter să fii primul care primește cele mai noi recomandări de proprietăți și sfaturi de la experți.

CONTACT

Creează alertă

Salvează căutarea ca să primești pe email ultimele anunțuri publicate

Apartamente noi cu 2 camere de vânzare în Giroc, Județul Timiș