1

Apartament 2 camere, decomandat, Bucium, intabulat, 0% comision

77.300 €

Bucium, Iași

Nr. cam.:
2
Sup. utilă:
55 mp
Etaj:
1 / 4
An constr.:
2025 (Finalizată)
  • • Locație aproximativă

Descriere apartament

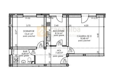
Se oferă spre vânzare apartament cu 2 camere, decomandat, având suprafața de 47.8 mp util + 7,5 mp balcon, situat la etajul 1, într-un imobil construit cu structură de rezistență din cadre de beton armat. Blocul este realizat cu pereți exteriori din cărămidă de 25 cm, izolați cu termoizolație de fațadă din polistiren EPS 80 – 10 cm. Compartimentările dintre apartamente sunt din cărămidă de 25 cm, iar cele interioare din cărămidă de 15 cm, oferind o bună izolare fonică și termică. Apartamentul este finisat cu: Parchet Egger Pro, trafic intens, rezistent la UV Gresie și faianță rectificată, import, calitatea 1 Baie complet utilată cu obiecte sanitare Cersanit Tâmplărie PVC Salamander (profil Brugmann 73, geam tripan, feronerie Roto NX) Imobilul beneficiază de supraveghere video. La demisol sunt disponibile 7 boxe, care pot fi achiziționate separat. Loc de parcare intabulat separat, preț 5.000 euro. Blocul este situat la aproximativ 1,5 km de Șoseaua Bucium și de mijloacele de transport în comun. Apartamentul este intabulat, cu mutare imediată și eligibil pentru achiziție prin credit bancar.
Citește mai mult Citește mai puțin
Confort 1 Decomandat Nemobilat 2 Balcoane Calorifere Centrală proprie

Detalii apartament

ID anunț: X5AK10JBS Copiat! 274627291 Copiat!
Actualizat în: 15 Februarie 2026
Suprafață construită: 55 mp
Nr. bucătării: 1
Nr. băi: 1
Structură rezistență: Cărămidă
Tip imobil: Bloc de apartamente
Regim înălțime: D+P+4E+M

Utilități

Pereți
Faianță Var
Podele
Gresie Parchet
Ușă intrare
Metal
Izolații termice
Exterior
Contorizare
Apometre Contor gaz
Dotări imobil
Interfon Videointerfon
Utilități
Curent Apă Canalizare CATV Gaze Telefon
Acces internet
Cablu Wireless
Servicii imobil
Supraveghere video
Amenajare străzi
Iluminat stradal Mijloace de transport în comun Asfaltate

Disponibilitate proprietate:

Imediat

Puncte de interes

Mijloace transport
bus-station
Statia "han Trei Sarmale", linia 30,30b,46
Stații autobuz aprox. 60 m
bus-station
Han Trei Sarmale
Stații autobuz aprox. 68 m
bus-station
Han Trei Sarmale
Stații autobuz aprox. 194 m
train-station
Gara Iasi-Socola
Stații tren aprox. 1869 m
Școală
kindergarten
Scoala Veronica Micle
Gradinițe aprox. 342 m
school
Scoala Generala nr. 2 Veronica Micle
Școli aprox. 540 m
kindergarten
Gradinita PP Surorile Providentei
Gradinițe aprox. 644 m
school
Scoala Primara Visan
Școli aprox. 1939 m
Recreere
restaurant
Hanul Trei Sarmale
Restaurant aprox. 82 m
pub
La Matale
Pub aprox. 233 m
sports-ground
Teren sportiv
Terenuri sport aprox. 307 m
park
Plopii fără soț
Parcuri aprox. 836 m

Detalii despre preț și costuri

Prețul pe piață

Preț cerut: 77.300 €

Preț min. zonă 63.500 €
Preț max. zonă 130.000 €

88% dintre proprietățile similare ca zonă și nr. camere au prețul cerut mai mare. mai multe...

Bine de știut: prețul unei proprietăți este influențat și de alte caracteristici, cum ar fi: vechime, localizare, vecinătăți, suprafață, compartimentare, amenajări, dotări, etc. mai puțin...

Costuri cu achiziția

Fără credit
5.041 RON
Credit ipotecar
6.406 RON
Noua casă
534 RON+ taxe notariale

i

Costuri adiționale mai puțin știute la achiziție: taxe notariale, comisioane etc.

Proprietăți recomandate

Detalii de contact

STIL IMOBIL

Marius Vlasin Senior Broker

STIL IMOBIL

Abonează-te la newsletter să fii primul care primește cele mai noi recomandări de proprietăți și sfaturi de la experți.

CONTACT

Creează alertă

Salvează căutarea ca să primești pe email ultimele anunțuri publicate

Apartamente noi cu 2 camere de vânzare în zona Bucium, Iași