Apartament de 2 camere decomandat, etajul 1/8, zona Copou

125.000 €

Copou, Iași

Nr. cam.:
2
Sup. utilă:
50 mp
Etaj:
1 / 8
An constr.:
1962 (Finalizată)
  • • Locație exactă

Descriere apartament

Agentia Elit Casa va propune spre vanzare un apartament cu 2 camere, decomandat, in zona Copou, situat la etajul 1/8 cu o suprafata totala 50 mp. Apartamentul dispune de centrala proprie, geam la baie, ușă metalică, izolatie, tamplărie PVC, gresie, faianță, parchet. Imobilul este situat intr-o zona linistita si cu acces facil la mijloacele de transport in comun, in vecinatatea centrelor comerciale, farmaciilor, scolilor si al oricarui punct de interes.
Citește mai mult Citește mai puțin
Confort 1 Decomandat Mobilat Parțial mobilat Calorifere Centrală proprie Bine întreținut (Bună)

Detalii apartament

ID anunț: XA6H004PP Copiat! 268413236 Copiat!
Actualizat în: 19 Februarie 2026
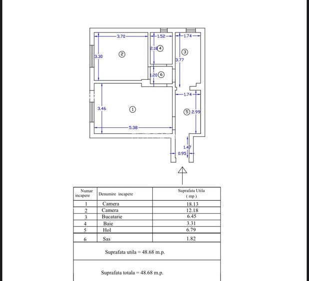
Suprafață utilă totală: 50 mp
Suprafață construită: 50 mp
Nr. bucătării: 1
Nr. băi: 1
Structură rezistență: Beton
Tip imobil: Bloc de apartamente
Regim înălțime: P+8E

Utilități

Destinație
Rezidențial
Pereți
Faianță Vopsea lavabilă
Podele
Gresie Parchet
Ușă intrare
Metal
Uși interior
Lemn
Izolații termice
Exterior
Ferestre cu geam termopan
PVC
Contorizare
Contor căldură Contor gaz Apometre
Bucătărie
Parțial mobilată Parțial utilată
Facilități imobil
Lift Interfon
Utilități
Curent Apă Canalizare Gaze
Amenajare străzi
Asfaltate Iluminat stradal Mijloace de transport în comun
Comision
3%

Certificat energetic:

Clasa energetică: B

Puncte de interes

Mijloace transport
bus-station
Universitate
Stații autobuz aprox. 144 m
bus-station
Statia "Universitate", liniile de autobuz 41,41b,426b,28
Stații autobuz aprox. 157 m
tram-station
Statia "Universitate", linia 1,8,13
Stații tramvai aprox. 184 m
train-station
Gara Iasi NORD
Stații tren aprox. 1145 m
Școală
university
Univ Al. I. Cuza - Corp I
Universități aprox. 63 m
university
Centrul de Studii Canadiene
Universități aprox. 143 m
kindergarten
Gradinita Junior
Gradinițe aprox. 276 m
school
Gradinita Junior
Școli aprox. 277 m
Recreere
park
Parcul Titu Maiorescu
Parcuri aprox. 174 m
sports-ground
Teren handbal Liceul Negruzzi
Terenuri sport aprox. 289 m
supermarket
Supermagazin Copou
Supermarket aprox. 367 m
mall
Galeriile Ștefan cel Mare
Mall aprox. 1697 m

Detalii despre preț și costuri

Prețul pe piață

Preț cerut: 125.000 €

Preț min. zonă 95.000 €
Preț max. zonă 183.000 €

58% dintre proprietățile similare ca zonă și nr. camere au prețul cerut mai mic. mai multe...

Bine de știut: prețul unei proprietăți este influențat și de alte caracteristici, cum ar fi: vechime, localizare, vecinătăți, suprafață, compartimentare, amenajări, dotări, etc. mai puțin...

Costuri cu achiziția

Fără credit
26.303 RON
Credit ipotecar
27.946 RON
Noua casă
777 RON+ taxe notariale

i

Costuri adiționale mai puțin știute la achiziție: taxe notariale, comisioane etc.

Proprietăți recomandate

Detalii de contact

ELIT CASA

IGNAT DANIEL Consilier Imobiliar

4.47(5 review-uri)

ELIT CASA
PRO

Abonează-te la newsletter să fii primul care primește cele mai noi recomandări de proprietăți și sfaturi de la experți.

CONTACT

Creează alertă

Salvează căutarea ca să primești pe email ultimele anunțuri publicate

Apartamente cu 2 camere de vânzare în zona Copou, Iași