Apartament 2 camere decomandat, renovat- Nicolina, Rond Vechi

95.000 €

Nicolina, Iași

Nr. cam.:
2
Sup. utilă:
54 mp
Etaj:
4 / 4
An constr.:
1981 (Finalizată)
  • • Locație aproximativă
  • • Vizionare prin apel video

Descriere apartament

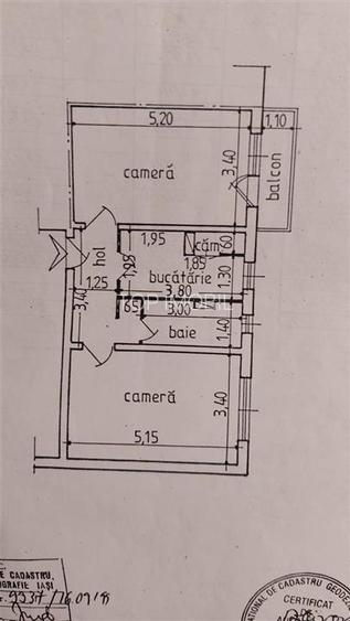
Va propunem spre vanzare un apartament cu 2 camere modelul decomandat, cu suprafata de 54mp, geam la baie, situat la etajul 4 din 4, intr-un bloc construit in anul 1983 fara risc seismic!. Apartamentul a fost renovat in 2025, are hidroizolatia refacuta si dispune de:centrala termica proprie, instalatie electrica schimbata pe cupru, instalatii sanitare schimbate, usi noi, gresie, faianta, parchet, tamplarie termopan, izolatie exterioara. Zona excelenta la bulevard! Imobilul este situat intr-o zona linistita si cu acces facil la mijloacele de transport in comun, centrelor comerciale, farmaciilor, scolilor si al oricarui punct de interes. Pret: 95.000 euro Pentru mai multe detalii va rog sunati la nr. de tel. :
Citește mai mult Citește mai puțin
Confort 1 Decomandat 1 Balcon / Terasă / Logie Centrală proprie

Detalii apartament

ID anunț: XCGV1034J Copiat! 275033179 Copiat!
Actualizat în: 19 Februarie 2026
Suprafață utilă totală: 54 mp
Suprafață construită: 54 mp
Nr. băi: 1
Structură rezistență: Altele
Tip imobil: Bloc de apartamente
Regim înălțime: P+4E

Utilități

Destinație
Rezidențial
Izolații termice
Exterior

Puncte de interes

Mijloace transport
bus-station
statia "CUG 1 (Selgros)", linia 41,41b
Stații autobuz aprox. 26 m
bus-station
statia "CUG 1 (Selgros)", linia 41,41b,44
Stații autobuz aprox. 38 m
tram-station
statia "Bazar", linia 11
Stații tramvai aprox. 1593 m
train-station
Gara Nicolina Iasi
Stații tren aprox. 1693 m
Școală
kindergarten
Gradinita cu program normal nr.26
Gradinițe aprox. 91 m
kindergarten
Gradinita cu program prelungit Nr. 1
Gradinițe aprox. 120 m
school
Scoala Soferi Fix Auto
Școli aprox. 308 m
school
Scoala Generala nr. 42
Școli aprox. 414 m
Recreere
park
Parc
Parcuri aprox. 168 m
supermarket
Selgros
Supermarket aprox. 248 m
restaurant
Pizza Nico
Restaurant aprox. 420 m
sports-ground
Teren sportiv
Terenuri sport aprox. 1417 m

Detalii despre preț și costuri

Prețul pe piață

Preț cerut: 95.000 €

Preț min. zonă 63.500 €
Preț max. zonă 125.999 €

57% dintre proprietățile similare ca zonă și nr. camere au prețul cerut mai mare. mai multe...

Bine de știut: prețul unei proprietăți este influențat și de alte caracteristici, cum ar fi: vechime, localizare, vecinătăți, suprafață, compartimentare, amenajări, dotări, etc. mai puțin...

Costuri cu achiziția

Fără credit
5.875 RON
Credit ipotecar
7.380 RON
Noua casă
624 RON+ taxe notariale

i

Costuri adiționale mai puțin știute la achiziție: taxe notariale, comisioane etc.

Proprietăți similare

Apartament cu 2 camere în Nicolina
85.580 € + TVA
Iași, Nicolina
2 camere
536 mp
Etaj 3 / 11
Apartament cu 2 camere decomandat în Nicolina
95.000 €
Iași, Nicolina
2 camere
51 mp
Parter
Apartament cu 2 camere decomandat, mobilat în Nicolina
95.999 €
Iași, Nicolina
2 camere
54 mp
Etaj 4 / 4

Detalii de contact

TOP IMOBIL

Ana Maria Ghibanu Consultant Imobiliar

TOP IMOBIL
PRO

Abonează-te la newsletter să fii primul care primește cele mai noi recomandări de proprietăți și sfaturi de la experți.

CONTACT

Creează alertă

Salvează căutarea ca să primești pe email ultimele anunțuri publicate

Apartamente cu 2 camere de vânzare în zona Nicolina, Iași