Apartament cu bucatarie inchisa, luminosa bloc finalizat Mamaia Nord, piscina

73.000 € + TVA

Mamaia-Sat, Județul Constanța

Nr. cam.:
2
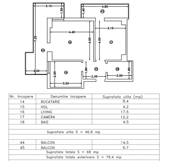
Sup. utilă:
47 mp
Etaj:
3
An constr.:
2025
  • • Comision 0%
  • • Exclusivitate
  • • Locație exactă

Descriere apartament

Apartamentul tau la MARE! Apartament decomandat de vanzare cu bucatarie inchisa, terasa de 21 mp cu loc de servit masa, in ansamblul Xenero Residence Mamaia! Ansamblu cu facilitati de resort, pe malul lacului Siutghiol, intr-o zona linistita. Una dintre cele mai mari parcari subterane din Mamaia Nord, parcare supraterana, piscina, spatiu comercial, alei pietonale, finisaje premium. Descopera cel mai nou concept de locuinta rezidentiala si de vacanta in cadrul aceluias complex, finalizat si ocrotit de linistea si calmitatea Lacului Siutghiol. La acest pret apartamentul se vinde finisat complet la CHEIE. Pozele atasate sunt cu titlu de prezentare. Loc de parcare in parcarea subterana 12000 euro Pret: 80000 euro TVA inclus 9%
Citește mai mult Citește mai puțin
Confort lux Decomandat 1 Balcon Grădină Piscină Calorifere Centrală proprie 1 Parcare

Detalii apartament

ID anunț: X4K0102K5 Copiat! 272043443 Copiat!
Actualizat în: 09 Februarie 2026
Suprafață construită: 73 mp
Nr. bucătării: 1
Nr. băi: 1
Structură rezistență: Beton
Tip imobil: Bloc de apartamente
Regim înălțime: D+P+6E

Utilități

Destinație
Rezidențial
Pereți
Vopsea lavabilă
Podele
Parchet Gresie
Ușă intrare
Metal
Uși interior
Lemn
Ferestre cu geam termopan
PVC
Contorizare
Apometre Contor gaz
Dotări imobil
Interfon Lift Spații agrement
Utilități
Curent Apă Canalizare Gaze CATV
Amenajare străzi
Asfaltate Pietruite

Disponibilitate proprietate:

imediat

Puncte de interes

Recreere
restaurant
Scoica land
Restaurant aprox. 709 m
park
Parc
Parcuri aprox. 918 m
park
Picnic Barbecue (en)
Parcuri aprox. 1065 m
bar
PSY beach
Bar aprox. 1612 m

Detalii despre preț și costuri

Prețul pe piață

Preț cerut: 73.000 €

Preț min. zonă 67.500 €
Preț max. zonă 180.000 €

81% dintre proprietățile similare ca zonă și nr. camere au prețul cerut mai mare. mai multe...

Bine de știut: prețul unei proprietăți este influențat și de alte caracteristici, cum ar fi: vechime, localizare, vecinătăți, suprafață, compartimentare, amenajări, dotări, etc. mai puțin...

Costuri cu achiziția

Fără credit
5.560 RON
Credit ipotecar
7.012 RON
Noua casă
590 RON+ taxe notariale

i

Costuri adiționale mai puțin știute la achiziție: taxe notariale, comisioane etc.

Proprietăți recomandate

Detalii de contact

Abonează-te la newsletter să fii primul care primește cele mai noi recomandări de proprietăți și sfaturi de la experți.

CONTACT

Creează alertă

Salvează căutarea ca să primești pe email ultimele anunțuri publicate

Apartamente noi cu 2 camere de vânzare în Mamaia-Sat, Județul Constanța