2

Ap 3 camere , doctor Florian Mandache

90.000 €

Oltenița, Județul Călărași

Nr. cam.:
3
Sup. utilă:
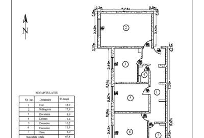
73 mp
Etaj:
Parter / 4
Tip prop.:
Bloc de apartamente
  • • Comision 0%
  • • Locație exactă

Descriere apartament

Vând apartament cu 3 camere, situat în zona de sud, aproape de București, în Oltenița, pe strada Florian Mandache, într-o zonă liniștită și bine conectată. Apartamentul este luminos, bine întreținut și foarte bine compartimentat, oferind confort și spațiu pentru o familie sau pentru investiție. Living generos și primitor Două dormitoare spațioase Bucătărie separată Baie modernă Suprafață utilă: 73mp Locuința beneficiază de acces rapid către București, fiind situată aproape de mijloace de transport, magazine, școli și alte facilități importante. Zonă civilizată și liniștită Vecini ok Ideal pentru mutare imediată Potrivit atât pentru locuit, cât și pentru investiție Apartamentul se vinde complet liber de sarcini, cu acte la zi. Preț: 90.000euro discutabil Pentru mai multe detalii și programarea unei vizionări, mă puteți contacta telefonic. Maria Magdalena
Citește mai mult Citește mai puțin
Confort 1 Decomandat

Detalii apartament

ID anunț: XV100099N Copiat! 275001625 Copiat!
Actualizat în: 18 Februarie 2026
Nr. băi: 1
An construcție: Între 1978 și 1990
Regim înălțime: P+4E

Utilități

Comision
0%

Puncte de interes

Recreere
sports-ground
Teren sportiv
Terenuri sport aprox. 212 m
sports-ground
Teren sportiv
Terenuri sport aprox. 229 m
park
Parc
Parcuri aprox. 351 m
park
Parc
Parcuri aprox. 408 m

Detalii despre preț și costuri

Prețul pe piață

Preț cerut: 90.000 €

Preț min. zonă 47.000 €
Preț max. zonă 80.000 €

i

Proprietate cu prețul cerut în afara intervalului mai multe...

Posibile explicații pentru faptul că prețul proprietății este peste cel maxim: imobil nou cu suprafață mare, are dotări și finisaje de lux.
Bine de știut: prețul unei proprietăți este influențat și de alte caracteristici, cum ar fi: vechime, localizare, vecinătăți, suprafață, compartimentare, amenajări, dotări, etc.

Costuri cu achiziția

Fără credit
5.641 RON
Credit ipotecar
7.106 RON
Noua casă
599 RON+ taxe notariale

i

Costuri adiționale mai puțin știute la achiziție: taxe notariale, comisioane etc.

Proprietăți recomandate

Detalii de contact

Constanta proprietar

Maria Magdalena

Proprietar

Abonează-te la newsletter să fii primul care primește cele mai noi recomandări de proprietăți și sfaturi de la experți.

CONTACT

Creează alertă

Salvează căutarea ca să primești pe email ultimele anunțuri publicate

Apartamente cu 3 camere de vânzare în Oltenița, Județul Călărași