2

Apartament 2 camere in Ansamblul 81 Residence (Biruintei 81) TVA Inclus

83.000 €

Popești-Leordeni, Județul Ilfov

Nr. cam.:
2
Sup. utilă:
46 mp
Etaj:
7 / 7
An constr.:
2025
  • • Comision 0%
  • • Locație exactă

Descriere apartament

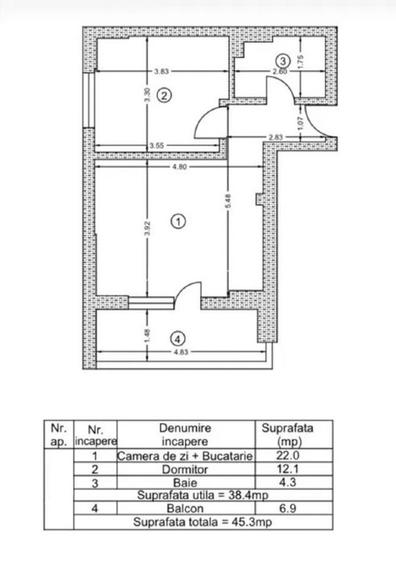
DIRECT PROPRIETAR Ofer spre vanzare un apartament cu 2 camere la ansambului 81 Residence, in zona Berceni. Situat intr-un bloc nou, apartamentul ofera tot confortul si lumina naturala datorită ferestrelor mari și orientării spre sud. Cu un balcon generos de 7 mp2 cu vedere laterala catre piscina. Detalii despre apartament: - Suprafata utila totala: 45,3 mp2 - Balcon: 7 mp2 - Orientare: Sud (lumina toata ziua) - Finisat complet (finisaje premium si baie completa) - Incalzire prin pardoseala - AC instalat - Centrala proprie Ansamblul va dispune de: - 2 Piscine - Spații comerciale - Parc in complex - Spații verzi și de relaxare - Centru educațional - Facilitati sport și wellness Zona si facilitati de transport: Situat in zona Popesti-Leordeni/Berceni, o zonă noua, înconjurată doar de locatii rezidențiale noi, la doar 5 minute de mers pe jos de stația de metrou Berceni, aproape de puncte de interes importante, precum scoli, Universitatea Spiru Haret si centre comerciale: - Metrou Berceni: 500 m - Mall Sun Plaza: 3 statii de metrou - Piata Unirii: 7 statii de metrou (20 minute) - Mall Grand Arena: 4 km - Metrou linia albastră cu acces direct către Piata Unirii și Pipera Pretul este cu TVA inclus. Pentru informatii suplimentare, va rog sa ma contactati prin telefon sau whatsapp. Multumesc.
Citește mai mult Citește mai puțin
Confort lux Decomandat Aer condiționat Centrală proprie

Detalii apartament

ID anunț: XV10004GT Copiat! 273994313 Copiat!
Actualizat în: 19 Februarie 2026
Nr. băi: 1
Tip imobil: Bloc de apartamente
Regim înălțime: P+7E
Lift: Da

Utilități

Comision
0%

Puncte de interes

Mijloace transport
bus-station
Statia IMGB Poarta 2, linia 125, metrou M2
Stații autobuz aprox. 289 m
metro-station
Berceni (M2)
Stații metrou aprox. 296 m
bus-station
Statia IMGB Poarta 1 linia 125
Stații autobuz aprox. 746 m
metro-station
Dimitrie Leonida (M2)
Stații metrou aprox. 897 m
Școală
school
Colegiul Tehnic Miron Nicolescu
Școli aprox. 1264 m
school
Grupul Industrial "Dacia"
Școli aprox. 1970 m
Recreere
supermarket
Nonni
Supermarket aprox. 203 m
park
Parc
Parcuri aprox. 489 m
restaurant
Pizza Italia
Restaurant aprox. 659 m
sports-ground
Teren sportiv
Terenuri sport aprox. 1591 m

Detalii despre preț și costuri

Prețul pe piață

Preț cerut: 83.000 €

Preț min. zonă 61.500 €
Preț max. zonă 120.000 €

68% dintre proprietățile similare ca zonă și nr. camere au prețul cerut mai mic. mai multe...

Bine de știut: prețul unei proprietăți este influențat și de alte caracteristici, cum ar fi: vechime, localizare, vecinătăți, suprafață, compartimentare, amenajări, dotări, etc. mai puțin...

Costuri cu achiziția

Fără credit
5.309 RON
Credit ipotecar
6.719 RON
Noua casă
563 RON+ taxe notariale

i

Costuri adiționale mai puțin știute la achiziție: taxe notariale, comisioane etc.

Proprietăți recomandate

Detalii de contact

Jose Gomes

Jose Gomes

Abonează-te la newsletter să fii primul care primește cele mai noi recomandări de proprietăți și sfaturi de la experți.

CONTACT

Creează alertă

Salvează căutarea ca să primești pe email ultimele anunțuri publicate

Apartamente noi cu 2 camere de vânzare în Popești-Leordeni, Județul Ilfov