Biruinței 81 Residence - 2 camere tip studio

83.000 €

Popești-Leordeni, Județul Ilfov

Nr. cam.:
2
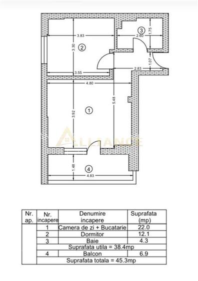
Sup. utilă:
45 mp
Etaj:
7 / 7
An constr.:
2025 (Finalizată)
  • • Locație exactă
  • • Vizionare prin apel video

Descriere apartament

Apartament 2 camere tip studio – 81 Residence, Strada Biruintei Va propun spre vanzare un apartament modern cu 2 camere tip studio, situat in complexul rezidential 81 Residence, pe Strada Biruintei. Etaj 7 7, bloc prevazut cu lift Suprafata utila: 45 mp Bloc nou – 2025 Locuinta este ideala atat pentru locuit, cat si pentru investitie, oferind un spatiu eficient compartimentat, luminos si confortabil. Incalzire in pardoseala Centrala proprie Constructie noua, finisaje moderne Etaj superior – mai multa liniste si intimitate Apartamentul se afla intr-o zona in plina dezvoltare, cu acces facil catre mijloace de transport, magazine si alte puncte de interes. Pret: 83.000 euro Pentru mai multe informatii sau pentru programarea unei vizionari, ma puteti contacta la: – Edi Mutis
Citește mai mult Citește mai puțin
Confort 1 Decomandat 1 Balcon / Terasă / Logie Centrală proprie Încălzire prin pardoseală

Detalii apartament

ID anunț: XCSE00I61 Copiat! 275034525 Copiat!
Actualizat în: 19 Februarie 2026
Suprafață utilă totală: 45 mp
Suprafață construită: 45 mp
Nr. băi: 1
Structură rezistență: Altele
Tip imobil: Bloc de apartamente
Regim înălțime: P+7E

Utilități

Destinație
Rezidențial
Contorizare
Apometre Contor gaz
Facilități imobil
Lift Interfon
Utilități
Apă Curent Gaze Canalizare
Internet
Cablu Fibră optică Wireless Dial-up

Certificat energetic:

Clasa energetică: A

Puncte de interes

Mijloace transport
bus-station
Statia IMGB Poarta 2, linia 125, metrou M2
Stații autobuz aprox. 388 m
metro-station
Berceni (M2)
Stații metrou aprox. 403 m
bus-station
Statia IMGB Poarta 1 linia 125
Stații autobuz aprox. 711 m
metro-station
Dimitrie Leonida (M2)
Stații metrou aprox. 850 m
Școală
school
Colegiul Tehnic Miron Nicolescu
Școli aprox. 1225 m
school
Grupul Industrial "Dacia"
Școli aprox. 1879 m
school
Scoala Gimnaziala Speciala Sfantul Nicolae
Școli aprox. 1978 m
Recreere
supermarket
Nonni
Supermarket aprox. 96 m
park
Parc
Parcuri aprox. 431 m
restaurant
Pizza Italia
Restaurant aprox. 549 m
sports-ground
Teren sportiv
Terenuri sport aprox. 1476 m

Detalii despre preț și costuri

Prețul pe piață

Preț cerut: 83.000 €

Preț min. zonă 61.500 €
Preț max. zonă 120.000 €

72% dintre proprietățile similare ca zonă și nr. camere au prețul cerut mai mic. mai multe...

Bine de știut: prețul unei proprietăți este influențat și de alte caracteristici, cum ar fi: vechime, localizare, vecinătăți, suprafață, compartimentare, amenajări, dotări, etc. mai puțin...

Costuri cu achiziția

Fără credit
5.310 RON
Credit ipotecar
6.720 RON
Noua casă
563 RON+ taxe notariale

i

Costuri adiționale mai puțin știute la achiziție: taxe notariale, comisioane etc.

Proprietăți similare

Apartament cu 2 camere decomandat în Central
80.495 € + TVA
Județul Ilfov, Popești-Leordeni
2 camere
57,3 mp
Etaj 1
Apartament cu 2 camere decomandat în Central
84.500 €
Județul Ilfov, Popești-Leordeni
2 camere
45 mp
Etaj 3 / 4
Apartament cu 2 camere decomandat în Central
84.000 €
Județul Ilfov, Popești-Leordeni
2 camere
47 mp
Etaj 6

Detalii de contact

ALLIANCE REZIDENTIAL IMOBILIARE

Edi Mutis Consilier Imobiliar

2.20(7 review-uri)

ALLIANCE REZIDENTIAL IMOBILIARE
PRO

Abonează-te la newsletter să fii primul care primește cele mai noi recomandări de proprietăți și sfaturi de la experți.

CONTACT

Creează alertă

Salvează căutarea ca să primești pe email ultimele anunțuri publicate

Apartamente noi cu 2 camere de vânzare în Popești-Leordeni, Județul Ilfov