Va propunem spre vanzare un partament cu 2 camere in zona 1 Mai, intr-un bloc tip boutique.
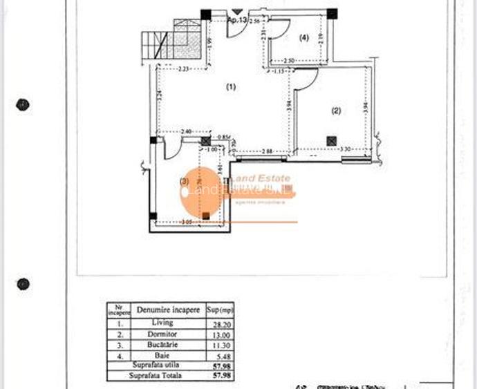
Are o suprafata de 58 mp utili si se afla la etajul 2/3, bloc boutique.
Apartament modern, complet mobilat și utilat premium: electrocasnice Bosch, mobilier Italia, parchet masiv. Costuri de întreținere reduse (~200 lei/lună). Imobil cu lift, construit recent.
Localizare excelentă: 4 min mers pe jos Metrou 1 Mai, 1 min Luxuria Residence, 4 min cu mașina Parcul Herăstrău. Aproape de Arcul de Triumf și Piața Victoriei.
Zona este una foarte bine conectată, cu acces facil la mijloacele de transport în comun (tramvai, autobuz, metrou 1 Mai la câteva minute de mers pe jos), magazine, școli și alte puncte de interes în apropiere.
Datorită amplasării și compartimentării, apartamentul este ideal atât pentru locuit, cât și pentru investiție (închiriere pe termen lung).
94%dintre proprietățile similare ca zonă și nr. camere au prețul cerutmai mic.
mai multe...
Bine de știut: prețul unei proprietăți este influențat și de alte caracteristici, cum ar fi: vechime, localizare, vecinătăți, suprafață, compartimentare, amenajări, dotări, etc.
mai puțin...
Costuri cu achiziția
Fără credit
10.077 RON
Credit ipotecar
12.077 RON
Noua casă
1.205 RON+ taxe notariale
i
Costuri adiționale mai puțin știute la achiziție: taxe notariale, comisioane etc.
Sediul central - Timișoara
Bulevardul Victor Babeș nr. 2, 300230, Timișoara, România
Tel: +40.374.40.44.98 / Fax: +40.256.401.179
Email: suport@imobiliare.ro
Luni - Vineri 08:00 - 20:00
Punct de lucru - București: Iride Business Park, Bld. Dimitrie
Pompeiu 9-9A, Clădirea B2B,
020335, Sector 2, București, România
CONTACT
Sediul central - Timișoara
Bulevardul Victor Babeș nr. 2, 300230, Timișoara, România
Tel: +40.374.40.44.98 / Fax: +40.256.401.179
Email: suport@imobiliare.ro
Luni - Vineri 08:00 - 20:00
Punct de lucru - București: Iride Business Park, Bld. Dimitrie
Pompeiu 9-9A, Clădirea B2B,
020335, Sector 2, București, România
UAUIM -Universitatea de Arhitectura si Urbanism Ion Mincu
aprox.
340 m
Facultatea de Limbi si Literaturi Straine
aprox.
355 m
University of Bucharest - Faculty of Foreign Languages and Literatures (en)
aprox.
366 m
Centrul de Limbi Straine Ariel
aprox.
370 m
Facultatea de litere (en)
aprox.
373 m
Facultatea de Chimie
aprox.
378 m
Rectoratul UMF "Carol Davila"
aprox.
381 m
Palatul Fundației Universitare "Carol I"
aprox.
410 m
Facultatea de Matematica-Informatica
aprox.
426 m
Facultatea de Istorie
aprox.
429 m
Facultatea de Stiinte
aprox.
456 m
Universitatea Nationala de Muzica Conservator
aprox.
929 m
Universitatea Nationala de Muzica Bucuresti
aprox.
929 m
Schiller Institut
aprox.
96 m
Scoala Nr. 19 Tudor Arghezi
aprox.
166 m
Amfiteatrul Sahia
aprox.
197 m
Goethe Institut (en)
aprox.
249 m
SNSPA - Cladirea CIC
aprox.
279 m
Grup Școlar "Dragomir Hurmuzescu"
aprox.
370 m
ASLS (en)
aprox.
376 m
Scoala de muzica nr. 4
aprox.
382 m
Ateneul roman, Bucuresti
aprox.
501 m
GRADINITA DE COPII NR. 8 "LICURICI"
aprox.
510 m
Școala Centrală din Bucuresti
aprox.
583 m
Scoala Centrala
aprox.
590 m
Scoala Ajutatoare nr. 1
aprox.
608 m
Centrul Educational IBSEN
aprox.
656 m
Cursuri Paleologu
aprox.
741 m
Gradinita nr.4 "Lizuca"
aprox.
159 m
Gradinita nr.203 (fosta Clementa)
aprox.
254 m
Gradinita nr. 203 program prelungit
aprox.
275 m
Gradinita numarul 257
aprox.
717 m
Gradinita Ioanid
aprox.
760 m
Ioanid
aprox.
769 m
Gradinita nr. 116
aprox.
826 m
Gradinita numarul 133
aprox.
834 m
Gradinita nr. 85
aprox.
1132 m
Gradinita numarul 8
aprox.
1256 m
Gradinita Magica
aprox.
1352 m
Gradinita nr. 248
aprox.
1361 m
Gradinita Nr. 78 Miguel de Cervantes
aprox.
1363 m
Gradinita
aprox.
1364 m
Gradinita nr. 252 cu program prelungit
aprox.
1380 m
Pravalia Maestrului
aprox.
124 m
Mega Image Rosetti Non-Stop
aprox.
285 m
ilanplant
aprox.
407 m
OK Non-stop Supermarket (en)
aprox.
468 m
OK Non-Stop
aprox.
468 m
Mega Image Magheru
aprox.
612 m
Mega Image - Icoanei
aprox.
618 m
Bacania Coco
aprox.
632 m
Mega Image Paleologu
aprox.
709 m
Nik Non-Stop
aprox.
758 m
Mag.Victoria
aprox.
772 m
Mega Image Brezoianu
aprox.
777 m
Mega Image Amzei Non-Stop
aprox.
779 m
Mega Image Concept Store
aprox.
957 m
Cocor
aprox.
960 m
"METROPLIS CENTER"
aprox.
1568 m
Parcare cu plata
aprox.
139 m
Parcare
aprox.
164 m
Parcare
aprox.
204 m
Parcare cu plata
aprox.
214 m
Parcare
aprox.
287 m
Parcare
aprox.
333 m
Parcare
aprox.
362 m
Parcare
aprox.
366 m
Parcare
aprox.
384 m
Parcare
aprox.
388 m
Parcare
aprox.
404 m
Parcare
aprox.
407 m
Parcare
aprox.
446 m
Parcare subterană Piața Universității
aprox.
457 m
Parcare
aprox.
468 m
Parc
aprox.
146 m
Small park (en)
aprox.
256 m
Parc
aprox.
256 m
Parc
aprox.
366 m
Rond Piața Universității
aprox.
370 m
Parc
aprox.
391 m
Parc
aprox.
396 m
Parcul Colțea
aprox.
398 m
Parc
aprox.
412 m
Parc
aprox.
414 m
Spatiu verde
aprox.
419 m
60 Minutes
aprox.
422 m
Parc
aprox.
437 m
Piata Universitatii
aprox.
451 m
Parc
aprox.
470 m
Piata Universitatii
aprox.
315 m
Piata Revolutiei
aprox.
397 m
Piata Rosetti
aprox.
427 m
Piața Drapelului (Tricolorului)
aprox.
571 m
Piata Roma
aprox.
794 m
Piata Timpului
aprox.
912 m
Piata Latina
aprox.
944 m
Piața Sfântul Anton
aprox.
993 m
Piața Romană
aprox.
1022 m
Piata Natiunilor Unite
aprox.
1125 m
Piata Bibescu
aprox.
1476 m
Piața Constituției
aprox.
1551 m
Piata Emil Cioran (Vergilius) (en)
aprox.
1703 m
Piata Bucur
aprox.
1980 m
Teren sportiv
aprox.
1164 m
Teren sportiv
aprox.
1170 m
Teren sportiv
aprox.
1209 m
Teren sportiv
aprox.
1298 m
Teren sportiv
aprox.
1339 m
Baza sportiva Universitatea Bucuresti
aprox.
1571 m
teren tenis
aprox.
1600 m
Teren sportiv
aprox.
1611 m
Teren sportiv
aprox.
1784 m
Stadionul Dinamo
aprox.
1798 m
Teren sportiv
aprox.
1976 m
Teren sportiv
aprox.
1988 m
Teren sportiv
aprox.
1989 m
Policlinica (en)
aprox.
103 m
Centrul Medical Batistei
aprox.
106 m
Clinica Reumatologie "Dr. Ion Stoia"
aprox.
329 m
Spitalul Colțea
aprox.
502 m
Centrul Medical Academica
aprox.
513 m
Clinica de 10
aprox.
529 m
Centrul Medical Unirea Enescu
aprox.
628 m
Centrul Medical Unirea sediul Enescu
aprox.
643 m
Cabinet stomatologic (en)
aprox.
750 m
INGG Ana Aslan Spatarului nr. 15 (en)
aprox.
787 m
Spitalul de Oftalmologie
aprox.
794 m
Spitalul Clinic de Urgente Oftalmologice
aprox.
798 m
Centru medical MEDSANA
aprox.
836 m
Institutul de Diabet NCPaulescu (en)
aprox.
874 m
WORLD CLINIC - O viata fara alergii ! (en)
aprox.
875 m
belladona
aprox.
152 m
Farmacia Tarsis Impex
aprox.
184 m
Farmacia Artafarm
aprox.
204 m
Sensiblu
aprox.
218 m
Royal Blu Pharmacy
aprox.
253 m
Farmacia Apifarm
aprox.
297 m
Reteta
aprox.
363 m
HelpNet
aprox.
373 m
Farmacia Academia
aprox.
390 m
Farmacia Nr. 1
aprox.
453 m
Farmacia Coltea
aprox.
493 m
Gema Farm Impex
aprox.
553 m
Farmacon CO Impex
aprox.
555 m
Sensiblu
aprox.
570 m
General Smart Farm
aprox.
580 m
Burebista
aprox.
95 m
Modigliani
aprox.
148 m
Corso
aprox.
168 m
Jerry's Pizza - Magheru
aprox.
175 m
Hotel InterContinental Bucuresti***** (77m)(1971)
aprox.
182 m
Jerry's Pizza (en)
aprox.
182 m
Restaurant Cucina Borghese
aprox.
198 m
Beautyfood
aprox.
206 m
Pescarul
aprox.
207 m
Gregory's
aprox.
208 m
Trattoria Bocca
aprox.
213 m
Violeta's Vintage Kitchen (en)
aprox.
214 m
Violeta's vintage kitchen
aprox.
214 m
Super Falafel
aprox.
224 m
Crama Dunarea
aprox.
234 m
Que Pasa
aprox.
135 m
Dianei Patru
aprox.
367 m
Fratelli Espresso Bar
aprox.
431 m
Yellow Bar
aprox.
457 m
Underworld
aprox.
546 m
Epic
aprox.
554 m
Control Club
aprox.
571 m
Macaz Bar Teatru Coop
aprox.
624 m
Piua Book Bar
aprox.
631 m
Trei Betivi
aprox.
635 m
Galliano Club
aprox.
693 m
Beer o'clock
aprox.
699 m
Chat noir
aprox.
705 m
Opium Stage Club
aprox.
707 m
Expat
aprox.
712 m
Lente Praporgescu
aprox.
210 m
Mi-nut
aprox.
250 m
Vesuvio Cafe
aprox.
285 m
Newton Caffe
aprox.
299 m
Hobby Caffe & Shop
aprox.
314 m
Cafeneaua Arhitectilor
aprox.
317 m
Zvon Caffe
aprox.
361 m
T-zero
aprox.
372 m
T-zone
aprox.
372 m
Demmers Teahouse
aprox.
435 m
Bernschutz and Co
aprox.
472 m
Nana
aprox.
475 m
Gradina OAR
aprox.
477 m
Mara Mura
aprox.
482 m
The Living Room
aprox.
497 m
Have a Cigar
aprox.
294 m
Coloseum
aprox.
373 m
Question Mark Social Club
aprox.
421 m
Edgar`s Pub
aprox.
435 m
Clock`s
aprox.
493 m
Charlatans Irish Pub
aprox.
511 m
Club Surubelnita
aprox.
634 m
Club A
aprox.
695 m
Smart's Pub & Bistro
aprox.
704 m
Dharma
aprox.
707 m
OLD NICK PUB
aprox.
712 m
Hanul cu Tei
aprox.
715 m
S.A.L.T.
aprox.
722 m
Iron City
aprox.
723 m
Argentin
aprox.
728 m
Sucursala ING Bank (en)
aprox.
119 m
ING Balcescu
aprox.
119 m
Banca Transilvania - Ag. Magheru
aprox.
148 m
Garanti Bank
aprox.
151 m
Piraeus Bank
aprox.
173 m
BRD (en)
aprox.
178 m
BRD Calderon-Batistei
aprox.
178 m
Sucursala Raiffeisen Bank (en)
aprox.
190 m
Raiffeisen Bank
aprox.
190 m
Credit Europe Bank
aprox.
215 m
Credit Europe Bank
aprox.
237 m
Ion Tiriac Banc (en)
aprox.
270 m
UniCredit Bank - Ag. Rosetti
aprox.
273 m
Bancpost
aprox.
280 m
Banca Romaneasca
aprox.
325 m
Zona 1 Mai dispune nu doar de o poziție privilegiată față de centrul Capitalei, dar este și conectată cu alte cartiere ale orașului prin diverse mijloace de transport în comun. Poți să iei metroul de la stațiile aflate de-a lungul Căii Grivița, mai exact 1 Mai, Grivița și Basarab. Toate acestea se află pe Magistrala M4 care leagă Gara de Nord de zona Străulești. Astfel, vei ajunge de la stația Basarab la Piața Victoriei chiar și în 5 minute. Iar în zona Eroilor în circa 10 minute. Alte mijloace de transport în comun la care ai putea să apelezi dacă te muți în zona 1 Mai sunt tramvaiul 42, care leagă Piața Presei de Gara de Nord și tramvaiul 41, care ajunge în Drumul Taberei și în Ghencea. Consultă harta pentru a vedea care sunt cele mai apropiate stații de locuința de care ești interesat.
Una dintre principalele unități de învățământ din zona 1 Mai este Colegiul Național "Ion Neculce". Acesta este amplasat în apropierea Cimitirului evreiesc Filantropia. Colegiul poate fi potrivit dacă îți dorești ca încă din clasa a V-a copilul tău să învețe intensiv o limbă străină, având în vedere că acesta dispune de clase cu program intensiv în limba germană și italiană. Găsești pe hartă și alte unități de învățământ aflate în zona 1 Mai și în vecinătatea acesteia.
Ești interesat de o locuință în zona 1 Mai și te gândești unde ai putea să-ți faci cumpărăturile odată ce te muți acolo? Vei avea în zonă Piața Ion Mihalache și în apropiere Piața Domenii. Poți să ajungi destul de ușor la magazinele Kaufland sau Penny de pe Bulevardul Bucureștii Noi, iar cu mașina ajungi în câteva minute la complexul comercial Colosseum Retail Park de pe Șoseaua Chitilei. Cele mai apropiate mall-uri vor fi AFI Cotroceni, Băneasa Shopping City sau Promenada. Distanța pe care va trebui să o parcurgi pentru a ajunge la acestea va fi destul de mare, motiv pentru care vei merge la ele doar cu mașina. Află unde îți vei putea face cumpărăturile dacă te muți în zona 1 Mai consultând harta.
Dacă ai mașină sau te gândești să îți iei carnetul în curând și să nu mai circuli cu mijloacele de transport în comun, atunci trebuie să știi că traficul rutier în zona 1 Mai este concentrat pe marile artere de circulație, precum bulevardele Ion Mihalache și Banu Manta, Calea Grivița și Șoseaua Nicolae Titulescu. La marginea acestei zone se află, totodată, Pasajul Basarab care unește Sectorul 1 de Sectorul 6 și face parte din inelul interior de circulație al Bucureștiului, dar și Podul Grant care leagă Bulevardul Ion Mihalache de cartierul Crângași. La orele de vârf, traficul este de multe ori îngreunat. Îți recomandăm, totodată, să verifici dacă poți închiria un loc de parcare pentru mașina ta în apropierea locuinței de care ești interesat. Pentru a face acest lucru trebuie să te adresezi Serviciului Parcaje din cadrul ADP Sector 1. Consultă harta și află unde sunt localizate principalele parcări din zonă.
Dacă alegi să te muți în zona 1 Mai vei avea relativ aproape Parcul Regele Mihai I al României (fostul Herăstrău). Aici te vei putea plimba alături de familie în weekend-uri sau vei putea petrece câteva ore la terasă cu prietenii. Un alt parc aflat în vecinătatea acestei zone este Kiseleff, iar lângă el găsești trei muzee importante din Capitală - Antipa, Muzeul Țăranului Român și Muzeul de Geologie. Poți face aici o vizită educativă alături de copilul tău. Și Parcul Bazilescu se află în apropiere. Poți să ajungi rapid la el cu troleibuzul 97. Nici Centrul Expozițional Romexpo, unde sunt organizate periodic diferite concerte, expoziții și târguri, nu se va afla departe de noua ta locuință. O plimbare cu bicicleta în zona Parcului Regele Mihai I al României poate fi o altă variantă bună de relaxare în timpul liber. Ajungi destul de repede și pe Calea Victoriei. Și aici ai o pistă specială pentru bicicliști, dar poți să faci un popas și la una dintre cafenelele din zonă. Dacă preferi să-ți petreci ziua la cumpărături, atunci vei ajunge cu mașina în câteva minute la mall-ul Băneasa Shopping City. Consultă harta și află ce alte opțiuni de petrecere a timpului liber vei avea la dispoziție, dacă te muți în zona 1 Mai.
În zona 1 Mai și în apropierea acesteia ai la dispoziție mai multe unități sanitare la care poți apela. Amintim în acest sens Spitalul Clinic Sfânta Maria, de pe Bulevardul Ion Mihalache, spitalele Elias și CF 2 din zona Domenii și MedLife Life Memorial Hospital de pe Calea Griviței. Găsești pe hartă și alte clinici private la care ai acces în împrejurimi.
Găsești câteva restaurante pe Bulevardul Ion Mihalache și în apropierea Parcului Regele Mihai I, în special în Piața Charles de Gaulle. Ajungi destul de repede și în Piața Victoriei unde ai la dispoziție câteva restaurante de tip fast food - McDonald"™s, Subway, Springtime - și două cafenele Starbucks. Dacă pornești apoi pe Calea Victoriei ai la dispoziție numeroase localuri, inclusiv terase. Cu mașina poți să ajungi rapid și la mall-ul Băneasa Shopping CIty unde ai la dispoziție numeroase restaurante, fast food-uri, cafenele și cofetării. Aruncă o privire pe hartă și vezi unde poți lua masa în oraș, dacă te muți în zona 1 Mai.
În zona intersecției dintre Bulevardul Ion Mihalache și Calea Griviței găsești mai multe bancomate - OTP Ban, BRD, BCR. Alte sucursale bancare și ATM-uri sunt disponibile pe Bulevardul Ion Mihalache și în zona Piața Victoriei. Consultă harta. Află ce alte opțiuni ai în apropierea casei.
Înainte să pleci...
Ești sigur că ai văzut și aceste proprietăți?
200.000 €
București, 1 Mai
3 camere
63 mp
Etaj 8 / 8
199.999 €
București, 1 Mai
4 camere
121 mp
Etaj 2 / 2
220.000 €
București, 1 Mai
4 camere
138 mp
Etaj 2 / 2
Creează alertă
Salvează căutarea ca să primești pe email ultimele anunțuri publicate
Apartamente cu 2 camere de vânzare în zona 1 Mai, Sector 1
Cere detalii prin email
*
*
*
*
Detaliile tale de contact vor fi partajate cu Land Estate Srl
Statistici proprietate
Apartamente 2 camere de vânzare
- București
- Zona 1 Mai
Asigurare de viață/lună Costul este variabil. În funcție de banca aleasă, procentul variază între 0.0259% și 0.035% din soldul creditului.
Costuri cu achiziția12.077 RON
Comision agenție Întreabă agenţia
Onorariu notarial8.480 RON
Taxă întabulare OCPI1.597 RON
Autentificare contract credit2.000 RON
Preț de achiziție1.064.917 RON
Preț locuință1.064.917 RON
TVA 0%Inclus în prețul cerut
Preț de achiziție1.064.917 RON
Preț locuință1.064.917 RON
TVA 0%
Inclus în prețul cerut
Avans minim458.577 RON
Credit pe 30 de ani606.341 RON
Cost achitat în prima lună
Taxa evaluare imobil(până la)
575 RON
Rata lunară (variabilă)4.260 RON
Depozit colateral12.780 RON
Comision de garantare FNGCIMM89 RON
Asigurare anuală imobil1.065 RON
Poliță PAD130 RON
Tarif arhivă electronică102 RON
Costuri adiționale1.205 RON + taxe notariale
Asigurare viață și complexă (opțională)Costul este variabil. În funcție de banca aleasă, procentul variază între 0.0259% și 0.035% din soldul creditului
Onorariu notarialconform tarif notarial
Taxă întabulare OCPI1.205 RON
i
Toate valorile de mai sus sunt estimative și nu reprezintă în mod obligatoriu costurile exacte pe care le veți primi de la companiile/instituțiile prin care veți încheia tranzacția.