9

[REZERVAT]-Ion Mihalache-Domenii-Agronomie, bloc 2014-Comision 0

215.000 €

Agronomie, București

Nr. cam.:
2
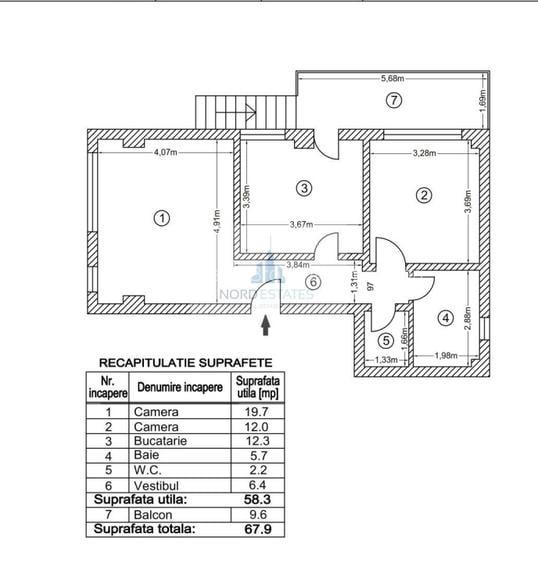
Sup. utilă:
68 mp
An constr.:
2014
Tip prop.:
Bloc de apartamente
  • • Comision 0%
  • • Exclusivitate
  • • Locație exactă

Descriere apartament

[REZERVAT] Apartament de vanzare deosebit, situat în apropierea Universitatii Agronomice, la cateva minute de metrou 1 Mai si piata Domenii, ideal pentru cei care doresc confort și acces rapid la punctele importante ale orașului. Acest apartament decomandat cu 2 camere, situat la parterul înalt al unui bloc mixt construit în 2014, oferă o suprafață total utila de 68 mp, inclusiv o terasă generoasă de 10 mp, perfectă pentru relaxare și petrecerea timpului liber. Locuința este complet mobilată și utilată lux, cu mobilier masiv și finisaje de calitate superioară. Bucătăria închisă, mobilată și utilată cu lemn masiv în tonuri armonioase, dispune de mașină de spălat vase, fiind ideală pentru prepararea meselor în confort. Apartamentul include un dressing separat, baie cu geam pentru ventilație și geamuri termopan cu rulouri exterioare electrice, parchet de calitate și centrală termică proprie nouă, asigurând costuri reduse de întreținere. Situat într-o zonă excelentă, aproape de Piața Domenii, Universitatea Agronomică și transportul în comun, la doar 100 metri de stația Aviator Popisteanu, veți avea acces rapid la magazine, școli, grădiniță și parcuri. Contorul de gaze și izolatia termica contribuie la siguranța și eficiența energetică. Deși nu dispune de parcare proprie, există posibilitatea închirierii acesteia. Flexibilitatea apartamentului permite, la nevoie, transformarea legala într-un apartament cu 3 camere si bucătărie open-space, două dormitoare și două băi, fără necesitatea obținerii unei autorizații. Proprietatea acceptă credit și este disponibilă pentru vizionări doar cu programare în prealabil și contract, incepand cu data de 10 februarie 2026. Listele pentru programari snt deschise in acest moment. Vă reamintim că toate proprietățile din portofoliul Agenției noastre sunt anunțuri unice, exclusive și pot fi regăsite doar la Agentia Imobiliară Nord Estates. Pentru un răspuns rapid, vă invităm să ne contactați telefonic sau pe WhatsApp, fiind mult mai eficient decât mesajele de pe site. Comision 0 la cumparare. Nu se aplica TVA.
Citește mai mult Citește mai puțin
Mobilat Lux Curte Centrală proprie Renovat

Detalii apartament

ID anunț: X81C10EPU Copiat! 273836668 Copiat!
Actualizat în: 17 Februarie 2026
Suprafață construită: 68 mp
Nr. băi: 2
Regim înălțime: D+P+2E+M

Utilități

Destinație
Rezidențial
Pereți
Tapet
Podele
Gresie
Rulouri/Obloane
PVC Aluminiu
Ușă intrare
Metal
Contorizare
Apometre
Bucătărie
Utilată Mobilată
Electrocasnice
Aragaz Hotă TV
Alte spații utile
WC Serviciu
Facilități imobil
Interfon
Utilități
CATV Curent Apă Canalizare
Amenajare străzi
Iluminat stradal Asfaltate
Comision
0%

Vecinătăți:

Piata Domenii, Universitatea Agronomica, Metrou

Disponibilitate proprietate:

Apartament liber

Puncte de interes

Mijloace transport
bus-station
Sandu Aldea
Stații autobuz aprox. 321 m
tram-station
Grivita
Stații tramvai aprox. 450 m
metro-station
Metrorex Statia 1 Mai M4
Stații metrou aprox. 555 m
train-station
Halta CFR Bucuresti Basarab h
Stații tren aprox. 1010 m
Școală
school
Clubul Sportiv Scolar nr.1 Pajura
Școli aprox. 218 m
school
Colegiul Tehnic Mircea cel Batran
Școli aprox. 312 m
university
Facultatea de Biotehnologii
Universități aprox. 340 m
kindergarten
Gradinita nr. 43
Gradinițe aprox. 343 m
Recreere
park
Parc
Parcuri aprox. 98 m
supermarket
Magazin Alimentar
Supermarket aprox. 381 m
sports-ground
Teren sportiv
Terenuri sport aprox. 405 m
public-square
Piata Montreal
Piețe publice aprox. 1204 m

Detalii despre preț și costuri

Prețul pe piață

Preț cerut: 215.000 €

Preț min. zonă 59.900 €
Preț max. zonă 175.000 €

i

Proprietate cu prețul cerut în afara intervalului mai multe...

Posibile explicații pentru faptul că prețul proprietății este peste cel maxim: imobil nou cu suprafață mare, are dotări și finisaje de lux.
Bine de știut: prețul unei proprietăți este influențat și de alte caracteristici, cum ar fi: vechime, localizare, vecinătăți, suprafață, compartimentare, amenajări, dotări, etc.

Costuri cu achiziția

Fără credit
10.283 RON
Credit ipotecar
12.308 RON
Noua casă
1.235 RON+ taxe notariale

i

Costuri adiționale mai puțin știute la achiziție: taxe notariale, comisioane etc.

Proprietăți recomandate

Detalii de contact

ABI - Asociatia Brokerilor Imobiliari

Consilier Nord Estates Senior Broker

3.67(4 review-uri)

ABI - Asociatia Brokerilor Imobiliari
PRO

Abonează-te la newsletter să fii primul care primește cele mai noi recomandări de proprietăți și sfaturi de la experți.

CONTACT

Creează alertă

Salvează căutarea ca să primești pe email ultimele anunțuri publicate

Apartamente cu 2 camere de vânzare în zona Agronomie, Sector 1