3

REA1026238 Apartamente 3 camere Aviatiei

243.900 € + TVA

Aviației, București

Nr. cam.:
3
Sup. utilă:
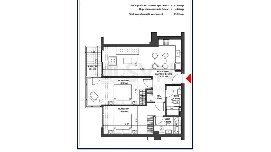
71 mp
Etaj:
2
An constr.:
2025
  • • Locație aproximativă
  • • Vizionare prin apel video

Descriere apartament

SVN Romania va ofera spre vanzare un apartament cu 3 camere, situat in cartierul Aviatiei, la doar 10 minute de mers pe jos de statia de metrou Aurel Vlaicu. Locuinta are o suprafata utila de 71 mp, la care se adauga terasa de 5 mp, si este situata la etajul 2/4 al unui imobil finalizat in 2025, amplasat pe o strada linistita, ferita de zgomotul urban. Apartamentul este format dintr-un living spatios cu bucatarie open space, 2 dormitoare si 2 bai. Imobilul beneficiaza de finisaje premium, precum: sistem racire VRF controlat individual pe fiecare unitate; incalzire in pardoseala cu centrala termica pe gaz, unitara; sistem termoizolatie cu vata bazaltica, polistiren extrudat pe terase, tamplarie aluminium, sistem Reynaers (import Belgia), geam dublu cu bagheta Warm Edge securizat la exterior, laminat la interior, furnizor Saint Gobain; instalatii sanitare si obiecte sanitare Ideal Standard. Proiectul ofera apartamente spatioase si luminoase, cu inaltimi si suprafete mai mari decat media zonei. Fiecare apartament este conceput pentru a oferi o experienta de locuit confortabila, cu spatii vitrate, balcoane si terase generoase. Designul modern, usor neconformist, face ca acest imobil sa fie unic in peisajul urban, aducand un strop de prospetime si originalitate. Parterul imobilului nu numai ca ofera acces la zona de fitness, astfel incat sa te poti bucura de o viata activa si sanatoasa, ci si la un lobby elegant, ceea ce face din acest imobil un punct de atractie si interes pentru intreaga comunitate locala. Sunt disponibile unitati cu 2, 3 si 4 camere. Separat, se poate achizitiona un loc de parcare subteran standard la pretul de 29.000 euro + TVA sau loc de parcare Klaus (pentru 2 masini) la pretul de 36.000 euro + TVA. La pretul afisat se adauga TVA. Imobilul beneficiaza de acces la mijloace de transport in comun iar in apropiere se afla unitati de invatamant, gradinite, Lidl, Mall Promenada si numeroase restaurante si cafenele. Contactati SVN Residentialist pentru mai multe detalii si pentru a programa o vizionare.
Citește mai mult Citește mai puțin
Confort 1 Semidecomandat Acceptă animale de companie Aer condiționat Alte metode electrice Calorifere Centrală proprie Încălzire prin pardoseală

Detalii apartament

ID anunț: X6580061J Copiat! 274946043 Copiat!
Actualizat în: 13 Februarie 2026
Suprafață utilă totală: 76 mp
Suprafață construită: 87 mp
Nr. bucătării: 1
Nr. băi: 2
Structură rezistență: Beton
Tip imobil: Bloc de apartamente
Regim înălțime: P+4E

Utilități

Destinație
Rezidențial
Pereți
Faianță
Podele
Gresie Parchet
Ferestre cu geam termopan
PVC
Contorizare
Contor căldură Apometre
Alte spații utile
WC Serviciu
Dotări imobil
Interfon Lift
Utilități
Gaze CATV Curent
Servicii imobil
Supraveghere video
Comision
Standard

Vicii:

Fără vicii.

Disponibilitate proprietate:

Disponibil din 03/02/2026.

Puncte de interes

Mijloace transport
tram-station
Maguricea
Stații tramvai aprox. 201 m
bus-station
Maguricea statie 605, 5
Stații autobuz aprox. 206 m
metro-station
Metrorex. Stația Aurel Vlaicu (M2)(1987)
Stații metrou aprox. 638 m
airport
Aeroportul Internațional Băneasa (Aurel Vlaicu) - LRBS (BBU)
Aeroporturi aprox. 1956 m
Școală
school
Scoala cu clasele I-VIII nr.12 "Herastrau"
Școli aprox. 397 m
school
Scoala Generala Nr. 12
Școli aprox. 419 m
kindergarten
Gradinita Miniterra
Gradinițe aprox. 440 m
university
Școala Superioară de Aviație Civilă - S.S.Av.C.
Universități aprox. 1798 m
Recreere
park
Parc
Parcuri aprox. 69 m
bar
Simbi's
Bar aprox. 282 m
supermarket
Lidl
Supermarket aprox. 543 m
sports-ground
Teren sportiv
Terenuri sport aprox. 547 m

Detalii despre preț și costuri

Prețul pe piață

Preț cerut: 243.900 €

Preț min. zonă 179.500 €
Preț max. zonă 425.000 €

63% dintre proprietățile similare ca zonă și nr. camere au prețul cerut mai mic. mai multe...

Bine de știut: prețul unei proprietăți este influențat și de alte caracteristici, cum ar fi: vechime, localizare, vecinătăți, suprafață, compartimentare, amenajări, dotări, etc. mai puțin...

Costuri cu achiziția

Fără credit
13.031 RON
Credit ipotecar
15.396 RON
Noua casă
1.643 RON+ taxe notariale

i

Costuri adiționale mai puțin știute la achiziție: taxe notariale, comisioane etc.

Proprietăți recomandate

Detalii de contact

SVN Romania | Residentialist | Victoriei

Andreea Vartolomei Associated Advisor

SVN Romania | Residentialist | Victoriei
PRO

Abonează-te la newsletter să fii primul care primește cele mai noi recomandări de proprietăți și sfaturi de la experți.

CONTACT

Creează alertă

Salvează căutarea ca să primești pe email ultimele anunțuri publicate

Apartamente noi cu 3 camere de vânzare în zona Aviației, Sector 1