3

Apartament 2 camere / Bucurestii Noi/ Metrou Jiului

85.000 €

Bucureștii Noi, București

Nr. cam.:
2
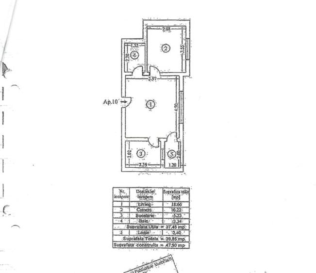
Sup. utilă:
37 mp
Etaj:
3
An constr.:
2013
  • • Locație aproximativă

Descriere apartament

Descoperă oportunitatea de achiziție a unui apartament cu 2 camere în zona Bucureștii Noi, la o distanță de 8 minute de mers pe jos de stația de metrou Jiului si 10 minute de stația de metrou Parc Bazilescu. Detalii despre proprietate: - Tipul: apartament cu 2 camere, nedecomandat, oferind un mediu plăcut și modern. - Etajul: 3 din 3, mansardă, cu vedere și lumină naturală sporită. - Anul de construcție: 2013. - Suprafața utilă totală: 40 mp, ideal pentru confort și funcționalitate - Interior recent renovat, gata de mutare și personalizare. Contactați-ne pentru detalii suplimentare și programarea vizionării! Echipa noastră vă stă la dispoziție pentru a vă ajuta să găsiți locuința perfectă în București!
Citește mai mult Citește mai puțin
Calorifere Centrală proprie Renovat

Detalii apartament

ID anunț: X81C10EVB Copiat! 274815300 Copiat!
Actualizat în: 12 Februarie 2026
Nr. băi: 1
Tip imobil: Bloc de apartamente
Regim înălțime: P+3E

Utilități

Rulouri/Obloane
PVC
Contorizare
Apometre
Utilități
CATV Telefon Telefon internațional Curent Apă Canalizare
Amenajare străzi
Iluminat stradal Asfaltate

Vecinătăți:

metrou, transport in comun, parc, magazine, piata, unitate sanitara, scoala, gradinita

Disponibilitate proprietate:

Imediat

Puncte de interes

Mijloace transport
tram-station
Crinului
Stații tramvai aprox. 136 m
bus-station
Statia Crinului, linia N118, 45
Stații autobuz aprox. 142 m
metro-station
Metrorex. Stația Jiului (M4)(2011)
Stații metrou aprox. 514 m
train-station
Gara - Halta Pajura - zisa si Triaj
Stații tren aprox. 962 m
Școală
school
Scoala ajutatoare
Școli aprox. 363 m
school
Scoala Generala Nr. 192
Școli aprox. 423 m
kindergarten
Gradinita 97
Gradinițe aprox. 624 m
kindergarten
Gradinita Ursuletu
Gradinițe aprox. 954 m
Recreere
supermarket
Supermarket NIC
Supermarket aprox. 414 m
sports-ground
Teren sportiv
Terenuri sport aprox. 552 m
park
Parc
Parcuri aprox. 576 m
restaurant
"La linie", drink&gossip
Restaurant aprox. 890 m

Detalii despre preț și costuri

Prețul pe piață

Preț cerut: 85.000 €

Preț min. zonă 76.500 €
Preț max. zonă 175.000 €

53% dintre proprietățile similare ca zonă și nr. camere au prețul cerut mai mic. mai multe...

Bine de știut: prețul unei proprietăți este influențat și de alte caracteristici, cum ar fi: vechime, localizare, vecinătăți, suprafață, compartimentare, amenajări, dotări, etc. mai puțin...

Costuri cu achiziția

Fără credit
5.404 RON
Credit ipotecar
6.830 RON
Noua casă
573 RON+ taxe notariale

i

Costuri adiționale mai puțin știute la achiziție: taxe notariale, comisioane etc.

Proprietăți recomandate

Detalii de contact

ABI - Asociatia Brokerilor Imobiliari

Mihaela Matei Imob Broker acreditat ABI

ABI - Asociatia Brokerilor Imobiliari
PRO

Abonează-te la newsletter să fii primul care primește cele mai noi recomandări de proprietăți și sfaturi de la experți.

CONTACT

Creează alertă

Salvează căutarea ca să primești pe email ultimele anunțuri publicate

Apartamente cu 2 camere de vânzare în zona Bucureștii Noi, Sector 1