REA1027871 Apartament 3 Camere I De Vanzare I Chibrit I Domeni

285.000 €

Chibrit, București

Nr. cam.:
3
Sup. utilă:
71 mp
Etaj:
2 / 2
An constr.:
2026 (Finalizată)
  • • Locație aproximativă
  • • Vizionare prin apel video

Descriere apartament

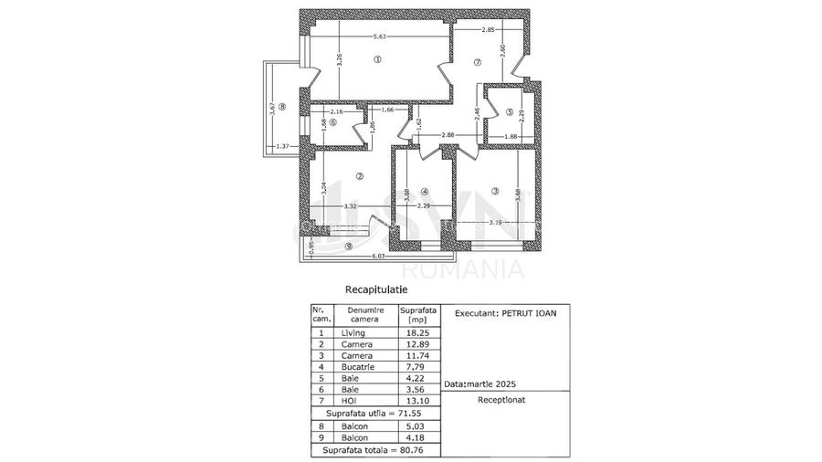
SVN Residentialist va propune spre vanzare un apartament cu 3 camere, cu o suprafata utila de 71 mp, conceput pentru a oferi confort, functionalitate si dotari moderne, intr-un imobil nou, realizat la standarde actuale de siguranta si eficienta. Locuinta beneficiaza de o compartimentare eficienta si de doua balcoane, care completeaza armonios spatiul interior si aduc un plus de lumina naturala. Apartamentul este dotat cu centrala termica proprie si incalzire in pardoseala, asigurand un confort termic superior si costuri optimizate pe tot parcursul anului. Finisajele pot fi alese de catre viitorul proprietar, oferind posibilitatea personalizarii locuintei in functie de preferinte si stil. Imobilul este echipat cu sistem de video interfon si dispune de adapost ALA, oferind un plus de siguranta. In pret sunt incluse doua locuri de parcare la subteran, in sistem Klaus, un avantaj important intr-o zona urbana aglomerata. Aceasta proprietate reprezinta o oportunitate excelenta pentru cei care isi doresc un apartament modern, cu dotari premium si posibilitatea de personalizare. Va invitam sa ne contactati pentru mai multe detalii si pentru a programa o vizionare.
Citește mai mult Citește mai puțin
Confort 1 Decomandat Acceptă animale de companie 2 Balcoane / Terase / Logii Centrală proprie Încălzire prin pardoseală 2 Parcări

Detalii apartament

ID anunț: X658006DO Copiat! 275133364 Copiat!
Actualizat în: 27 Februarie 2026
Suprafață utilă totală: 80 mp
Suprafață construită: 98 mp
Nr. bucătării: 1
Nr. băi: 2
Structură rezistență: Beton
Tip imobil: Bloc de apartamente
Regim înălțime: P+2E

Utilități

Destinație
Rezidențial
Pereți
Faianță
Podele
Gresie Parchet
Ferestre cu geam termopan
PVC
Facilități imobil
Interfon
Utilități
Gaze Curent
Internet
Fibră optică
Comision
Standard

Vicii:

Fără vicii.

Disponibilitate proprietate:

Disponibil din 26/02/2026.

Puncte de interes

Mijloace transport
bus-station
Statie Clabucet 780, N117, 105, 65, 97, 86
Stații autobuz aprox. 335 m
metro-station
Metrorex. Stația 1 Mai (M4)(2000)
Stații metrou aprox. 362 m
tram-station
Carpati
Stații tramvai aprox. 403 m
train-station
Halta CFR Bucuresti Basarab h
Stații tren aprox. 1029 m
Școală
school
cantina Lic.12
Școli aprox. 447 m
school
Colegiul Tehnic Feroviar "Mihai I"
Școli aprox. 504 m
kindergarten
Gradinita nr. 281
Gradinițe aprox. 987 m
university
Facultatea de Biotehnologii
Universități aprox. 1279 m
Recreere
supermarket
Mega Image
Supermarket aprox. 362 m
restaurant
La Hussein
Restaurant aprox. 389 m
sports-ground
Teren fotbal acoperit
Terenuri sport aprox. 426 m
park
Parc
Parcuri aprox. 476 m

Detalii despre preț și costuri

Prețul pe piață

Preț cerut: 285.000 €

Preț min. zonă 105.000 €
Preț max. zonă 412.000 €

90% dintre proprietățile similare ca zonă și nr. camere au prețul cerut mai mic. mai multe...

Bine de știut: prețul unei proprietăți este influențat și de alte caracteristici, cum ar fi: vechime, localizare, vecinătăți, suprafață, compartimentare, amenajări, dotări, etc. mai puțin...

Costuri cu achiziția

Fără credit
12.685 RON
Credit ipotecar
15.007 RON
Noua casă
1.592 RON+ taxe notariale

i

Costuri adiționale mai puțin știute la achiziție: taxe notariale, comisioane etc.

Proprietăți similare

Apartament cu 3 camere decomandat în Chibrit
284.900 €
București, Chibrit
3 camere
75 mp
Etaj 2 / 2
Apartament cu 2 camere semidecomandat în Pipera
268.004 € + TVA
București, Pipera
2 camere
75 mp
Etaj 2
Apartament cu 3 camere semidecomandat, mobilat în Aviației
295.000 € + TVA
București, Aviației
3 camere
70,31 mp
Etaj 8 / 20

Detalii de contact

SVN Romania | Residentialist | Victoriei

Dan Ghita Associated Advisor

4.00(3 review-uri)

SVN Romania | Residentialist | Victoriei
PRO

Abonează-te la newsletter să fii primul care primește cele mai noi recomandări de proprietăți și sfaturi de la experți.

CONTACT

Creează alertă

Salvează căutarea ca să primești pe email ultimele anunțuri publicate

Apartamente noi cu 3 camere de vânzare în zona Chibrit, Sector 1