2

4 camere Dorobanti decomandat, et. 3, an 1980, metrou, 97 mp

299.990 €

Dorobanți, București

Nr. cam.:
3
Sup. utilă:
97 mp
Etaj:
3 / 10
An constr.:
1980 (Finalizată)
  • • Locație aproximativă

Descriere apartament

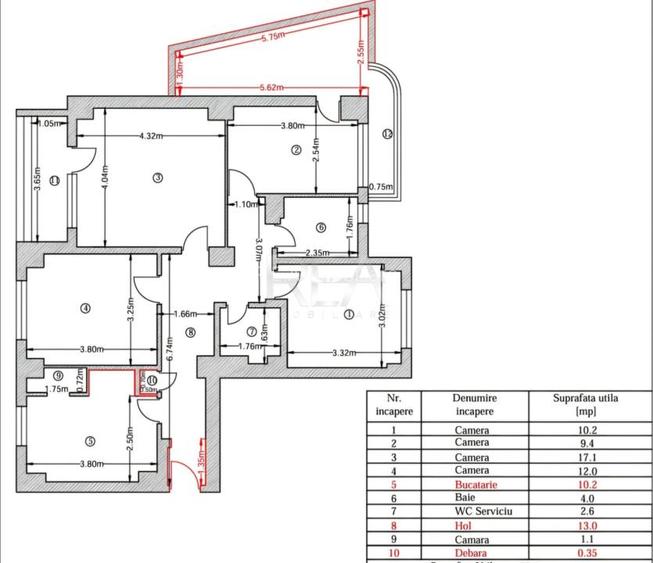
R.E.A. Imobiliare va ofera spre vanzare un apartament cu 4 camere decomandat in zona Dorobanti, situat intr-un bloc reabilitat termic, din caramida, construit in 1980, care nu este incadrat in nicio categorie de risc seismic, nefiind expertizat. Orientare nord-sud. Curte interioara cu spatiu verde si locuri de parcare pentru fiecare apartament. Se afla la etajul 3 al unui bloc cu 10 etaje si are o suprafata utila totala de 97 mp. Compartimentare: living, doua dormitoare, bucatarie, doua bai, doua balcoane si o terasa. Confortul termic este asigurat prin reteaua edilitara de termoficare. Zona pet-friendly, cu acces facil la mijloacele de transport in comun: 4-5 minute pana la metrou. In imediata apropiere se afla puncte comerciale, bancare, farmacii, unitati medicale, scoli si zone de divertisment. Se accepta toate modalitatile de plata. Informatiile tehnice au caracter orientativ, fiind preluate de la proprietar. Comision standard, valabil doar la cumparare. Daca sunteti in cautarea unui apartament cu 4 camere decomandat in zona Dorobanti, aceasta proprietate reprezinta o oportunitate excelenta! Pentru mai multe detalii si vizionari, nu ezitati sa ne contactati, specificand codul P10144.
Citește mai mult Citește mai puțin
Confort 1 Decomandat Nemobilat 2 Balcoane Calorifere Termoficare 1 Parcare Necesită renovare

Detalii apartament

ID anunț: XDKS108IQ Copiat! 274921224 Copiat!
Actualizat în: 15 Februarie 2026
Suprafață construită: 116 mp
Nr. bucătării: 1
Nr. băi: 2
Structură rezistență: Cărămidă
Tip imobil: Bloc de apartamente
Regim înălțime: P+10E

Utilități

Destinație
Rezidențial
Pereți
Vopsea lavabilă Faianță
Podele
Parchet Gresie
Ușă intrare
Metal
Uși interior
Lemn
Izolații termice
Bloc izolat termic
Contorizare
Apometre
Dotări imobil
Interfon Lift
Utilități
Curent Apă Canalizare Gaze
Amenajare străzi
Asfaltate Iluminat stradal Mijloace de transport în comun
Comision
standard

Disponibilitate proprietate:

imediat

Puncte de interes

Mijloace transport
bus-station
Statia Nicolae Balcescu; Liniile:168, 300, 368, 226, 126
Stații autobuz aprox. 389 m
metro-station
Statia Metrou Piata Romana(M2)Metrorex
Stații metrou aprox. 443 m
trolleybus-station
Statia Piata Romana linii : 79,86
Stații troleibuz aprox. 643 m
tram-station
Statia Batistei; Linia: 5, 16
Stații tramvai aprox. 1018 m
Școală
school
Ateneul roman, Bucuresti
Școli aprox. 107 m
school
Scoala Generala Nr. 5 Corneliu M. Popescu
Școli aprox. 211 m
university
Palatul Fundației Universitare "Carol I"
Universități aprox. 212 m
kindergarten
Gradinita nr. 116
Gradinițe aprox. 383 m
Recreere
park
Park (en)
Parcuri aprox. 65 m
supermarket
Mega Image Magheru
Supermarket aprox. 251 m
public-square
Piata Revolutiei
Piețe publice aprox. 280 m
mall
"METROPLIS CENTER"
Mall aprox. 1231 m

Detalii despre preț și costuri

Prețul pe piață

Preț cerut: 299.990 €

Preț min. zonă 142.000 €
Preț max. zonă 530.000 €

70% dintre proprietățile similare ca zonă și nr. camere au prețul cerut mai mare. mai multe...

Bine de știut: prețul unei proprietăți este influențat și de alte caracteristici, cum ar fi: vechime, localizare, vecinătăți, suprafață, compartimentare, amenajări, dotări, etc. mai puțin...

Costuri cu achiziția

Fără credit
13.197 RON
Credit ipotecar
15.583 RON
Noua casă
1.668 RON+ taxe notariale

i

Costuri adiționale mai puțin știute la achiziție: taxe notariale, comisioane etc.

Proprietăți recomandate

Detalii de contact

R.E.A. Imobiliare

Valentin Ghitiu Broker

4.86(7 review-uri)

R.E.A. Imobiliare
PRO

Abonează-te la newsletter să fii primul care primește cele mai noi recomandări de proprietăți și sfaturi de la experți.

CONTACT

Creează alertă

Salvează căutarea ca să primești pe email ultimele anunțuri publicate

Apartamente cu 3 camere de vânzare în zona Dorobanți, Sector 1