De vânzare: ap. 2 cam UP-site Floreasca - îți spun și ce nu-i bun

335.000 €

Floreasca, București

Nr. cam.:
2
Sup. utilă:
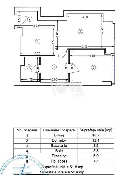
52 mp
Etaj:
16 / 25
An constr.:
2025 (Finalizată)
  • • Locație exactă

Descriere apartament

Știi acel moment când intri într-un spațiu și simți că "da, ăsta e"? Aici e exact așa. Proporțiile, lumina și calitatea construcției vorbesc de la sine. SPAȚIU CARE RESPIRĂ 51,4 mp utili + balcon de 6,6 mp Tavane de 2,70 m –schimbă total percepția spațiului. TEHNOLOGIE CARE FUNCȚIONEAZĂ Ferestre de la podea la tavan – fațadă cortină completă, nu găuri în perete. Lumină naturală fără curent iarna sau căldură sufocantă vara. Brise-soleil cu clapete de aluminiu – umbră inteligentă. Vara blochează soarele, iarna îl lasă să intre. Încălzire în pardoseală + ventilație cu aer filtrat – temperatură uniformă, fără calorifere pe pereți, fără zone reci. Structură antisismică cu disipatori Poziționare fără haosul din trafic - Calea Floreasca 167B - 6 min pe jos → metrou Aurel Vlaicu - Promenada Mall vizavi - 38% spații verzi în ansamblu - Parcare cu stații de încărcare FACILITĂȚI REALE Piscină & SPA privat | Concierge | Sală sport | Smart Home | Finisaje premium: Porcelanosa, Cerim, Duravit, Grohe CE E IMPORTANT SĂ ȘTII • Dezvoltator: ATENOR – belgienii care au făcut proiecte mari în Brussels, Luxembourg, Paris. Prima lor dezvoltare de lux în România • Finisaje: Porcelanosa, Cerim, Duravit, Grohe – branduri pe care le recomandă arhitecții • Lift Kone/Schindler – 13 persoane, 2,5 m/s (nu-ți petreci viața așteptând liftul) • Gata construit – te muți când vrei, nu peste doi ani "poate" Pentru că nu-ți vând un apartament, ci te ajut să înțelegi dacă e potrivit pentru tine. Ca arhitect, intru în detalii pe care alți agenți nici nu le observă: • Îți explic cum funcționează spațiul cu planurile tale de mobilare • Îți traduc specificațiile tehnice în viață reală P.S. – Ca arhitect, pot să-ți explic fiecare detaliu tehnic și de ce contează. Ca om care înțelege cum se trăiește într-un apartament, pot să-ți spun dacă e potrivit pentru tine. P.P.S - comisionul este de 2% Hai să vorbim.
Citește mai mult Citește mai puțin
Semidecomandat Nemobilat 1 Balcon Piscină Aer condiționat Centrală imobil Încălzire prin pardoseală 1 Parcare

Detalii apartament

ID anunț: XG8700013 Copiat! 274925572 Copiat!
Actualizat în: 12 Februarie 2026
Suprafață construită: 60 mp
Nr. bucătării: 1
Nr. băi: 1
Structură rezistență: Beton
Tip imobil: Bloc de apartamente
Regim înălțime: P+25E

Utilități

Pereți
Faianță Vopsea lavabilă
Podele
Gresie Parchet
Rulouri/Obloane
Aluminiu
Ușă intrare
Metal
Izolații termice
Exterior
Ferestre cu geam termopan
Aluminiu
Dotări imobil
Interfon Lift SPA
Utilități
Curent Apă Canalizare CATV Gaze Telefon
Acces internet
Cablu
Servicii imobil
Pază
Amenajare străzi
Iluminat stradal Mijloace de transport în comun Asfaltate

Disponibilitate proprietate:

Imediat

Puncte de interes

Mijloace transport
bus-station
Statia Soseaua Fabrica de Glucoza, linia 135, N119
Stații autobuz aprox. 232 m
metro-station
Aurel Vlaicu (M2)
Stații metrou aprox. 295 m
bus-station
Statia Barbu Vacarescu / Soseaua Pipera, linia 5,112
Stații autobuz aprox. 379 m
tram-station
Soseaua Pipera
Stații tramvai aprox. 381 m
Școală
kindergarten
Gradinita SOS Satul Copiilor
Gradinițe aprox. 234 m
school
Grupul Scolar Industrial Constantin Brancusi (en)
Școli aprox. 504 m
kindergarten
Gradinita Miniterra
Gradinițe aprox. 783 m
university
Universitatea Atenaeum
Universități aprox. 1713 m
Recreere
restaurant
VegUp
Restaurant aprox. 155 m
supermarket
Promenada
Supermarket aprox. 225 m
sports-ground
Teren sportiv
Terenuri sport aprox. 349 m
park
Cimitirul Eroilor Rusi
Parcuri aprox. 401 m

Detalii despre preț și costuri

Prețul pe piață

Preț cerut: 335.000 €

Preț min. zonă 106.900 €
Preț max. zonă 280.000 €

i

Proprietate cu prețul cerut în afara intervalului mai multe...

Posibile explicații pentru faptul că prețul proprietății este peste cel maxim: imobil nou cu suprafață mare, are dotări și finisaje de lux.
Bine de știut: prețul unei proprietăți este influențat și de alte caracteristici, cum ar fi: vechime, localizare, vecinătăți, suprafață, compartimentare, amenajări, dotări, etc.

Costuri cu achiziția

Fără credit
14.399 RON
Credit ipotecar
16.933 RON
Noua casă
1.847 RON+ taxe notariale

i

Costuri adiționale mai puțin știute la achiziție: taxe notariale, comisioane etc.

Proprietăți recomandate

Detalii de contact

Iova Estate

Simona Ionescu Manager

Iova Estate

Abonează-te la newsletter să fii primul care primește cele mai noi recomandări de proprietăți și sfaturi de la experți.

CONTACT

Creează alertă

Salvează căutarea ca să primești pe email ultimele anunțuri publicate

Apartamente noi cu 2 camere de vânzare în zona Floreasca, Sector 1