29

Calea Grivitei 3 Camere Apartament Luminos

79.900 €

Grivița, București

Nr. cam.:
3
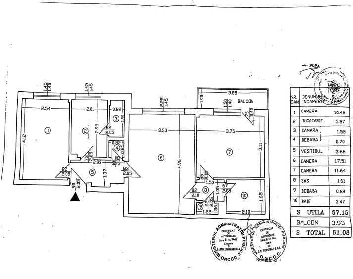
Sup. utilă:
61,5 mp
Etaj:
7
An constr.:
1960
  • • Exclusivitate
  • • Locație exactă
  • • Proprietate nelocuită

Descriere apartament

Apartament 3 camere situat intr-un imobil reabilitat, in imediata vecinatate a statiei de metrou 1 Mai , avand o expunere in totalitate catre sud, vedere libera catre cartierul de vile, renovat in urma cu 10ani cand au fost schimbate , usile, parchetul , gresia , faianta , precum si tamplaria. Apartamentul este liber iar actele sunt pregatite pentru vanzare. Imobilul in care se afla apartamentul este incadrat la urgenta 1
Citește mai mult Citește mai puțin
Confort 1 Semidecomandat 1 Balcon / Terasă / Logie Bine întreținut (Bună)

Detalii apartament

ID anunț: X7QF000HC Copiat! 273931720 Copiat!
Actualizat în: 21 Ianuarie 2026
Suprafață utilă totală: 72 mp
Tip imobil: Bloc de apartamente
Regim înălțime: P+8E

Utilități

Pereți
Faianță Vopsea lavabilă
Podele
Gresie Parchet
Ușă intrare
Metal
Uși interior
Celulare
Ferestre cu geam termopan
PVC
Contorizare
Contor căldură Apometre
Comision
2%

Vecinătăți:

Metrou 1 Mai, Piata Clabucet, Pod Constanta

Puncte de interes

Mijloace transport
tram-station
Carpati
Stații tramvai aprox. 38 m
bus-station
Maxi-Taxi Chibrit - Mogosoaia - Buftea
Stații autobuz aprox. 202 m
metro-station
Metrorex. Stația 1 Mai (M4)(2000)
Stații metrou aprox. 256 m
train-station
Halta CFR Bucuresti Basarab h
Stații tren aprox. 1312 m
Școală
school
Scoala Nr. 180
Școli aprox. 341 m
school
Liceul Greco-Catolic "Timotei Cipariu"
Școli aprox. 341 m
kindergarten
Gradinita Ciupercuta
Gradinițe aprox. 913 m
university
Facultatea de Biotehnologii
Universități aprox. 1125 m
Recreere
supermarket
Mega Image
Supermarket aprox. 90 m
park
Parc
Parcuri aprox. 188 m
sports-ground
Teren sportiv
Terenuri sport aprox. 341 m
public-square
Piata Montreal
Piețe publice aprox. 1722 m

Detalii despre preț și costuri

Prețul pe piață

Preț cerut: 79.900 €

Preț min. zonă 85.000 €
Preț max. zonă 164.989 €

i

Proprietate cu prețul cerut în afara intervalului mai multe...

Posibile explicații pentru faptul că prețul proprietății este sub cel minim: imobil cu risc seismic, imobil cu probleme structurale, imobil demolabil, poziționare în altă zonă
Bine de știut: prețul unei proprietăți este influențat și de alte caracteristici, cum ar fi: vechime, localizare, vecinătăți, suprafață, compartimentare, amenajări, dotări, etc.

Costuri cu achiziția

Fără credit
13.306 RON
Credit ipotecar
14.691 RON
Noua casă
547 RON+ taxe notariale

i

Costuri adiționale mai puțin știute la achiziție: taxe notariale, comisioane etc.

Proprietăți recomandate

Detalii de contact

DeLuxe Real Estate

Liliana Neagoe Broker Imobiliar

DeLuxe Real Estate

Abonează-te la newsletter să fii primul care primește cele mai noi recomandări de proprietăți și sfaturi de la experți.

CONTACT

Creează alertă

Salvează căutarea ca să primești pe email ultimele anunțuri publicate

Apartamente cu 3 camere de vânzare în zona Grivița, Sector 1