1

Apartament 4 Camere | HERASTRAU | 155 MP UTILI | LUX |

620.675 € + TVA

Herăstrău, București

Nr. cam.:
4
Sup. utilă:
155 mp
Etaj:
1 / 5
An constr.:
2025 (Finalizată)
  • • Comision 0%
  • • Locație aproximativă

Descriere apartament

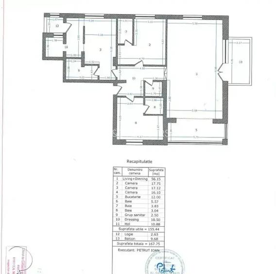
R&D Advisers are plăcerea să vă prezinte un apartament spectaculos cu 4 camere, poziționat la etajul 1 al unui imobil elegant cu 5 niveluri, ce va fi finalizat complet în decembrie 2025. Un concept modern, dedicat celor care caută mai mult decât o locuință — un stil de viață. Cu o suprafață utilă de 155 mp, completată de o logie de 3 mp și un balcon de 10 mp, acest apartament impresionează prin spațiu, lumină și echilibru arhitectural. Zona de zi — living și dining de 56 mp — este inima casei, cu bucătăria open-space de 12 mp ce poate fi separat discret, oferind flexibilitate totală între deschis și intim. Cele 3 dormitoare de 17 mp fiecare oferă intimitate deplină, fiecare beneficiind de baie proprie, iar dormitorul matrimonial adaugă un dressing generos de 10 mp, un veritabil sanctuar personal. Fiecare apartament din acest proiect este conceput pentru un confort de nivel premium, integrând soluții moderne și durabile: Încălzire prin pardoseală – uniformă și eficientă energetic. Răcire prin tavane cu ventiloconvectoare – confort termic constant, fără compromisuri estetice. Pompe de căldură – sustenabilitate și costuri reduse. Izolație cu vată bazaltică și fațadă ventilată – performanță termică, fonică și durabilitate în timp. Balcoane finisate cu covor de piatră și balustrade de sticlă – o estetică modernă, rafinată. Locuri de parcare disponibile – 30.000 € Boxe de depozitare – 2.000 €/mp Predarea este programată pentru decembrie 2025, iar calitatea construcției și a finisajelor reflectă un standard înalt, specific proiectelor reprezentate de R&D Advisers. Dacă îți dorești un spațiu care îmbină designul, funcționalitatea și tehnologia modernă într-un mod desăvârșit, acesta este locul tău. Pentru mai multe detalii si vizionari nu ezitati sa ne contactati. Pitrop Dumitru VAUNT ID: 103612
Citește mai mult Citește mai puțin
Confort lux Decomandat Nemobilat 2 Balcoane / Terase / Logii Ventiloconvectoare Încălzire prin pardoseală

Detalii apartament

ID anunț: X7QH10UKQ Copiat! 271263338 Copiat!
Actualizat în: 22 Ianuarie 2026
Suprafață utilă totală: 155 mp
Suprafață construită: 180 mp
Nr. bucătării: 1
Nr. băi: 4
Structură rezistență: Beton
Tip imobil: Bloc de apartamente
Regim înălțime: P+5E

Utilități

Ușă intrare
Parchet Metal
Contorizare
Apometre Contor gaz
Facilități imobil
Interfon Lift
Utilități
Gaze Curent Apă Canalizare
Servicii imobil
Administrare
Amenajare străzi
Iluminat stradal Mijloace de transport în comun Asfaltate

Certificat energetic:

Clasa energetică: A

Disponibilitate proprietate:

Disponibil

Puncte de interes

Mijloace transport
bus-station
Carutasilor / Pasajul Aviatiei statie 301, 112
Stații autobuz aprox. 236 m
bus-station
Pasaj Baneasa statie 605, 5
Stații autobuz aprox. 496 m
tram-station
Maguricea
Stații tramvai aprox. 498 m
metro-station
Metrorex. Stația Aurel Vlaicu (M2)(1987)
Stații metrou aprox. 776 m
Școală
kindergarten
Grădinița Pentru Hipoacuzici NR. 65
Gradinițe aprox. 265 m
kindergarten
Grădinița Mary Poppins
Gradinițe aprox. 323 m
school
Scoala generala nr.12
Școli aprox. 470 m
university
Școala Superioară de Aviație Civilă - S.S.Av.C.
Universități aprox. 1637 m
Recreere
supermarket
ART Business Center 5
Supermarket aprox. 39 m
park
Parcul Scoala Herastrau
Parcuri aprox. 112 m
sports-ground
Teren de Tenis
Terenuri sport aprox. 545 m
public-square
Piata Montreal
Piețe publice aprox. 1805 m

Detalii despre preț și costuri

Prețul pe piață

Preț cerut: 620.675 €

Preț min. zonă 169.000 €
Preț max. zonă 779.990 €

84% dintre proprietățile similare ca zonă și nr. camere au prețul cerut mai mic. mai multe...

Bine de știut: prețul unei proprietăți este influențat și de alte caracteristici, cum ar fi: vechime, localizare, vecinătăți, suprafață, compartimentare, amenajări, dotări, etc. mai puțin...

Costuri cu achiziția

Fără credit
28.681 RON
Credit ipotecar
32.981 RON
Noua casă
3.967 RON+ taxe notariale

i

Costuri adiționale mai puțin știute la achiziție: taxe notariale, comisioane etc.

Proprietăți recomandate

Detalii de contact

Abonează-te la newsletter să fii primul care primește cele mai noi recomandări de proprietăți și sfaturi de la experți.

CONTACT

Creează alertă

Salvează căutarea ca să primești pe email ultimele anunțuri publicate

Apartamente noi cu 4+ camere de vânzare în zona Herăstrău, Sector 1