1

Apartament multi-functional cu 4 camere, 2 bai | 66mp terase | inchiriat

537.740 €

Herăstrău, București

Nr. cam.:
4
Sup. utilă:
119 mp
Etaj:
Parter / 6
An constr.:
2010 (Finalizată)
  • • Locație aproximativă

Descriere apartament

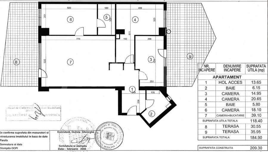
Amplasat chiar in fata Parcului Herastrau, acest apartament cu 4 camere se afla la parterul unui imobil S+P+6 finalizat in 2010. Are o suprafata construita de 209mp din care 119mp utili plus 66.5mp terase. Este compus din living spatios cu bucatarie deschisa de 40mp, dormitor matrimonial cu baie proprie si 2 dormitoare secundare care impart cea de-a 2-a baie. Imobilul are paza 24/7 si supraveghere video. Este inchiriat pentru activitate comerciala pana in 2029.
Citește mai mult Citește mai puțin
Confort lux Decomandat Nemobilat Aer condiționat Calorifere Centrală imobil 1 Garaj Renovat

Detalii apartament

ID anunț: X1UR102MJ Copiat! 274875332 Copiat!
Actualizat în: 09 Februarie 2026
Suprafață construită: 209 mp
Nr. bucătării: 1
Nr. băi: 2
Structură rezistență: Beton
Tip imobil: Bloc de apartamente
Regim înălțime: S+P+6E
Nr. terase: 1

Utilități

Destinație
Rezidențial
Pereți
Faianță Vopsea lavabilă
Podele
Gresie Parchet
Ușă intrare
Metal
Uși interior
Lemn
Izolații termice
Exterior
Ferestre cu geam termopan
PVC
Contorizare
Apometre
Bucătărie
Mobilată Utilată
Electrocasnice
Aragaz Frigider Hotă Mașină de spălat vase
Alte spații utile
Terasă
Dotări imobil
Interfon Lift
Utilități
Curent Apă Canalizare CATV Gaze Telefon
Acces internet
Cablu
Servicii imobil
Pază Supraveghere video
Amenajare străzi
Iluminat stradal Mijloace de transport în comun Asfaltate

Disponibilitate proprietate:

Imediat

Puncte de interes

Mijloace transport
bus-station
Carutasilor / Pasajul Aviatiei statie 301, 112
Stații autobuz aprox. 375 m
bus-station
statie Bd. Ficusului 205, 261, 335, N113
Stații autobuz aprox. 462 m
tram-station
Maguricea
Stații tramvai aprox. 664 m
metro-station
Metrorex. Stația Aurel Vlaicu (M2)(1987)
Stații metrou aprox. 1188 m
Școală
kindergarten
Grădinița Mary Poppins
Gradinițe aprox. 157 m
school
Grupul Scolar "Viaceslav Harnaj"
Școli aprox. 588 m
kindergarten
Gradinita Miniterra
Gradinițe aprox. 703 m
university
Școala Superioară de Aviație Civilă - S.S.Av.C.
Universități aprox. 1171 m
Recreere
park
Parc
Parcuri aprox. 137 m
supermarket
Mega Image
Supermarket aprox. 438 m
sports-ground
Teren sportiv
Terenuri sport aprox. 526 m
public-square
Piata Montreal
Piețe publice aprox. 1826 m

Detalii despre preț și costuri

Prețul pe piață

Preț cerut: 537.740 €

Preț min. zonă 106.998 €
Preț max. zonă 449.000 €

i

Proprietate cu prețul cerut în afara intervalului mai multe...

Posibile explicații pentru faptul că prețul proprietății este peste cel maxim: imobil nou cu suprafață mare, are dotări și finisaje de lux.
Bine de știut: prețul unei proprietăți este influențat și de alte caracteristici, cum ar fi: vechime, localizare, vecinătăți, suprafață, compartimentare, amenajări, dotări, etc.

Costuri cu achiziția

Fără credit
21.356 RON
Credit ipotecar
24.751 RON
Noua casă
2.879 RON+ taxe notariale

i

Costuri adiționale mai puțin știute la achiziție: taxe notariale, comisioane etc.

Proprietăți similare

Apartament cu 4 camere decomandat în Herăstrău
515.000 €
București, Herăstrău
4 camere
134 mp
Etaj 5
Apartament cu 3 camere, mobilat în Herăstrău
500.000 €
București, Herăstrău
3 camere
114 mp
Etaj 2
Apartament cu 4 camere decomandat în Herăstrău
580.500 €
București, Herăstrău
4 camere
123 mp
Parter

Detalii de contact

Abonează-te la newsletter să fii primul care primește cele mai noi recomandări de proprietăți și sfaturi de la experți.

CONTACT

Creează alertă

Salvează căutarea ca să primești pe email ultimele anunțuri publicate

Apartamente cu 4+ camere de vânzare în zona Herăstrău, Sector 1