1

Apartament 5 camere Duplex Herastrau

1.100.000 €

Herăstrău, București

Nr. cam.:
5
Sup. utilă:
200 mp
Etaj:
5
An constr.:
2009
  • • Locație aproximativă
  • • Vizionare prin apel video

Descriere apartament

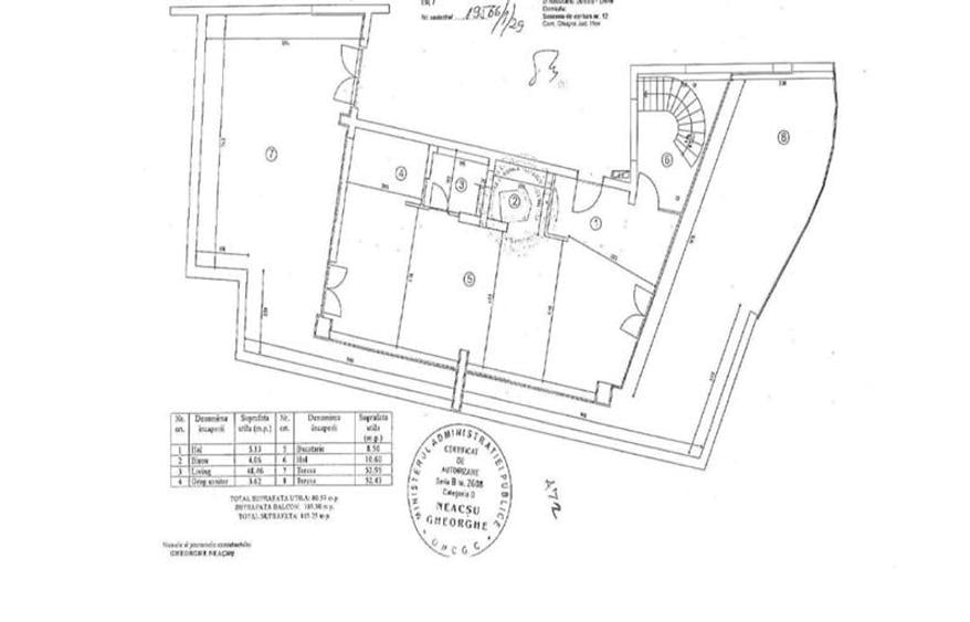
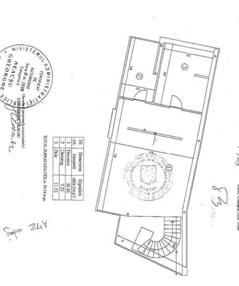
ID intern: 364668 Va propunem spre vanzare un apartament cu 5 camere, penthouse, confort 1 sporit, situat in zona Herastrau, reper Herastrau, intr-un imobil construit in anul 2009, disponibil la etajul 5 din 6, cu o suprafata de 276 mp, baie, balcon, bucatarie. Imobilul este situat in apropiere de piata, statie STB, scoli, gradinita. Vizionarea acestui imobil se face doar în baza semnării unui acord de vizionare conform codului civil, art 2.096-2.102 . Acordam indrumare in vederea acordarii unui credit bancar (BRD, FIRST BANK, ALPHA BANK, PATRIA BANK, BANCA TRANSILVANIA) Se percepe comision 3%. Politica agentiei este de a optimiza negocierea pretului in raport cu comisionul.
Citește mai mult Citește mai puțin
Confort 1 Decomandat 2 Balcoane Centrală proprie 1 Parcare

Detalii apartament

ID anunț: X9I620071 Copiat! 274834789 Copiat!
Actualizat în: 08 Februarie 2026
Suprafață utilă totală: 200 mp
Suprafață construită: 275 mp
Nr. bucătării: 1
Nr. băi: 3
Structură rezistență: Altele
Tip imobil: Bloc de apartamente
Regim înălțime: P+6E

Utilități

Destinație
Rezidențial
Pereți
Faianță Vopsea lavabilă
Podele
Parchet Gresie
Ușă intrare
Metal
Izolații termice
Exterior Interior
Ferestre cu geam termopan
PVC
Bucătărie
Utilată Mobilată
Electrocasnice
Aragaz Frigider
Dotări imobil
Lift
Comision
3%

Vecinătăți:

Scoala/gradinita, Restaurant/pub, Mall, Parc, Hotel, Piata, Benzinarie, Trafic Pietonal, Fastfood, Supermarket, Zona comerciala, Metrou

Puncte de interes

Mijloace transport
bus-station
Statia Bd. Maresal Averescu / Bd. Ion Mihalache, linia 205, 300, 282, N118
Stații autobuz aprox. 237 m
tram-station
Statie Tramvai 20, 24, 41, 42, 45 - Bd. Mihalache
Stații tramvai aprox. 251 m
metro-station
Piata Aviatorilor (M2)
Stații metrou aprox. 916 m
trolleybus-station
Statie Cimitirul Sf. Vineri 65, 97, 86
Stații troleibuz aprox. 1323 m
Școală
school
Scoala Generala Nr. 17 "Pia Bratianu"
Școli aprox. 261 m
school
Scoala Generala nr. 17
Școli aprox. 274 m
kindergarten
Gradinita de Copii Nr. 52
Gradinițe aprox. 520 m
university
Universitatea De Stiinte Agronomice Si Medical Veterinare
Universități aprox. 956 m
Recreere
park
Parc
Parcuri aprox. 185 m
supermarket
CARREFOUR Express Mihalache
Supermarket aprox. 201 m
sports-ground
Teren sportiv
Terenuri sport aprox. 218 m
public-square
Piața Aviatorilor
Piețe publice aprox. 909 m

Proprietăți recomandate

Detalii de contact

CR Imobiliare

Daniela Rogoz Broker imobiliar

4.67(8 review-uri)

CR Imobiliare
PRO

Abonează-te la newsletter să fii primul care primește cele mai noi recomandări de proprietăți și sfaturi de la experți.

CONTACT

Creează alertă

Salvează căutarea ca să primești pe email ultimele anunțuri publicate

Apartamente cu 4+ camere de vânzare în zona Herăstrău, Sector 1