Apartament cu 4 camere si vedere spre parc | 78mp terasa

990.000 €

Herăstrău, București

Nr. cam.:
4
Sup. utilă:
158 mp
Etaj:
5 / 6
An constr.:
2010 (Finalizată)
  • • Locație aproximativă

Descriere apartament

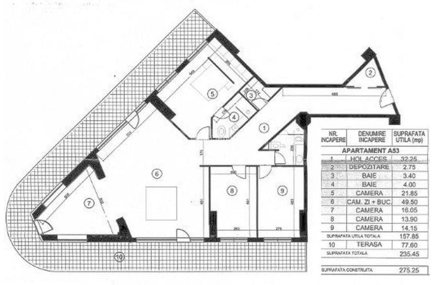
Situat in zona Herastrau, cu o vedere frumoasa asupra parcului, acest apartament cu 4 camere se afla la etajul 5 al unui imobil S+P+6 finalizat in 2010. Are o suprafata construita de 275mp, 158mp utili si 78mp terasa. Este compus din living insorit cu zona de dining si iesire pe terasa, bucatarie deschisa si echipata, grup sanitar, dormitor matrimonial cu baie proprie si 2 dormitoare secundare care impart o singura baie. Dispune de 1 loc de parcare si o boxa in garajul subteran. Avand in vedere locatia si facilitatile oferite, este ideal pentru rezidenta.
Citește mai mult Citește mai puțin
Confort lux Decomandat Mobilat Complet Parțial Aer condiționat Calorifere Centrală imobil 1 Garaj

Detalii apartament

ID anunț: X1UR102M8 Copiat! 274874176 Copiat!
Actualizat în: 09 Februarie 2026
Suprafață construită: 275 mp
Nr. bucătării: 1
Nr. băi: 3
Structură rezistență: Beton
Tip imobil: Bloc de apartamente
Regim înălțime: S+P+6E
Nr. terase: 1

Utilități

Destinație
Rezidențial
Pereți
Faianță Vopsea lavabilă
Podele
Gresie Parchet
Rulouri/Obloane
PVC
Ușă intrare
Metal
Uși interior
Lemn
Izolații termice
Exterior
Ferestre cu geam termopan
PVC
Contorizare
Apometre Contor gaz
Bucătărie
Mobilată Utilată
Electrocasnice
Aragaz Frigider Hotă Mașină de spălat rufe Mașină de spălat vase
Alte spații utile
WC Serviciu Terasă
Dotări imobil
Acoperiș Interfon Lift Videointerfon
Utilități
Curent Apă Canalizare CATV Gaze Telefon
Acces internet
Cablu Wireless
Servicii imobil
Pază Supraveghere video
Amenajare străzi
Iluminat stradal Mijloace de transport în comun Asfaltate

Disponibilitate proprietate:

Imediat

Puncte de interes

Mijloace transport
bus-station
statie Horia Macelariu 205, 261, 335, N113
Stații autobuz aprox. 188 m
tram-station
Apicola
Stații tramvai aprox. 343 m
metro-station
Metrorex. Stația Aurel Vlaicu (M2)(1987)
Stații metrou aprox. 1552 m
airport
Aeroportul Internațional Băneasa (Aurel Vlaicu) - LRBS (BBU)
Aeroporturi aprox. 1951 m
Școală
school
Grupul Scolar "Viaceslav Harnaj"
Școli aprox. 167 m
kindergarten
Gradinita
Gradinițe aprox. 344 m
school
Gradinita nr.283
Școli aprox. 455 m
university
Școala Superioară de Aviație Civilă - S.S.Av.C.
Universități aprox. 753 m
Recreere
restaurant
EL BACHA Lebanese Restaurant
Restaurant aprox. 222 m
park
Parc
Parcuri aprox. 307 m
supermarket
Mega Image
Supermarket aprox. 488 m
sports-ground
Teren sportiv
Terenuri sport aprox. 671 m

Detalii despre preț și costuri

Prețul pe piață

Preț cerut: 990.000 €

Preț min. zonă 106.998 €
Preț max. zonă 449.000 €

i

Proprietate cu prețul cerut în afara intervalului mai multe...

Posibile explicații pentru faptul că prețul proprietății este peste cel maxim: imobil nou cu suprafață mare, are dotări și finisaje de lux.
Bine de știut: prețul unei proprietăți este influențat și de alte caracteristici, cum ar fi: vechime, localizare, vecinătăți, suprafață, compartimentare, amenajări, dotări, etc.

Costuri cu achiziția

Fără credit
36.876 RON
Credit ipotecar
42.190 RON
Noua casă
5.183 RON+ taxe notariale

i

Costuri adiționale mai puțin știute la achiziție: taxe notariale, comisioane etc.

Proprietăți recomandate

Detalii de contact

Abonează-te la newsletter să fii primul care primește cele mai noi recomandări de proprietăți și sfaturi de la experți.

CONTACT

Creează alertă

Salvează căutarea ca să primești pe email ultimele anunțuri publicate

Apartamente cu 4+ camere de vânzare în zona Herăstrău, Sector 1