APARTAMENT DE VÂNZARE CU DOUĂ CAMERE IN ZONA PAJURA SEC.1

75.000 €

Pajura, București

Nr. cam.:
2
Sup. utilă:
52 mp
Etaj:
1 / 4
Tip prop.:
Bloc de apartamente
  • • Locație exactă

Descriere apartament

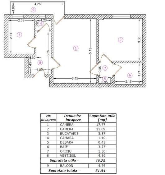
AGENȚIEIMOBILIARĂ vă oferim spre Vânzare un Apartament 2 camere semidecomandat – zona Pajura, Strada Dridu – Etaj 1 – Bloc 1964 – 75.000 € Adresă: Strada Dridu, zona Pajura, Sector 1 Etaj: 1 / 4 Bloc construit în 1964, anvelopat termic Suprafață utilă: 51,54 mp Apartament cu compartimentare eficientă, situat la etaj intermediar, într-un bloc reabilitat termic, amplasat într-o zonă liniștită și verde din cartierul Pajura. Balconul este închis cu termopane. Compartimentare: - Living - Dormitor - Bucătărie separată - Baie - Vestibul - Debara / spații de depozitare - Balcon 4.76 mp Stare apartament: Semifinisat – pereți la glet, oferind posibilitatea amenajării după propriile preferințe. Instalația electrică nu a fost refăcută, aspect ce permite o modernizare completă conform standardelor actuale. Avantaje: - Bloc anvelopat termic - Construcție 1964 - Etaj 1 / 4 Zonă aerisită, cu multă verdeață. Acces facil (sub 1 minut pe jos) către: magazin (Mega Image), farmacie, fast food, transport în comun, scoala. Vecinătate liniștită, blocuri joase Sector 1 Preț: 75.000 € - COMISION AGENȚIE 3% ACTE LA ZI, DISPONIBIL PENTRU VANZARE IMEDIATA tel.
Citește mai mult Citește mai puțin
Confort 1 Aer condiționat Calorifere Termoficare

Detalii apartament

ID anunț: XCDS000DP Copiat! 274999209 Copiat!
Actualizat în: 17 Februarie 2026
Regim înălțime: P+4E

Utilități

Destinație
Rezidențial
Podele
Parchet
Ușă intrare
Lemn
Izolații termice
Exterior
Ferestre cu geam termopan
PVC
Alte spații utile
Debara
Dotări imobil
Interfon
Utilități
Gaze Curent Canalizare Apă
Amenajare străzi
Asfaltate Iluminat stradal Mijloace de transport în comun
Comision
3%

Puncte de interes

Mijloace transport
bus-station
statie Dridu 331, 112
Stații autobuz aprox. 63 m
bus-station
Statie RATB : Dridu - Linii: 112,331
Stații autobuz aprox. 92 m
tram-station
Cartier Damaroaia
Stații tramvai aprox. 537 m
metro-station
Stație metrou "Jiului"
Stații metrou aprox. 1142 m
Școală
school
School no. 178
Școli aprox. 47 m
school
Scoala Generala Nr. 178
Școli aprox. 61 m
kindergarten
Gradinita cu program prelungit Winnie
Gradinițe aprox. 585 m
university
Universitatea Romano-Americana
Universități aprox. 1487 m
Recreere
supermarket
Crystal System S.R.L.
Supermarket aprox. 129 m
park
Loc de joaca
Parcuri aprox. 280 m
sports-ground
Teren sportiv
Terenuri sport aprox. 432 m
public-square
Piata Montreal
Piețe publice aprox. 1577 m

Detalii despre preț și costuri

Prețul pe piață

Preț cerut: 75.000 €

Preț min. zonă 76.500 €
Preț max. zonă 175.000 €

i

Proprietate cu prețul cerut în afara intervalului mai multe...

Posibile explicații pentru faptul că prețul proprietății este sub cel minim: imobil cu risc seismic, imobil cu probleme structurale, imobil demolabil, poziționare în altă zonă
Bine de știut: prețul unei proprietăți este influențat și de alte caracteristici, cum ar fi: vechime, localizare, vecinătăți, suprafață, compartimentare, amenajări, dotări, etc.

Costuri cu achiziția

Fără credit
16.401 RON
Credit ipotecar
17.748 RON
Noua casă
522 RON+ taxe notariale

i

Costuri adiționale mai puțin știute la achiziție: taxe notariale, comisioane etc.

Proprietăți similare

Apartament cu 2 camere semidecomandat, mobilat în Pajura
82.000 €
București, Pajura
2 camere
50 mp
Etaj 8 / 9
Apartament cu 2 camere decomandat în Floreasca
80.000 €
București, Floreasca
2 camere
46 mp
Demisol / 3
Apartament cu 2 camere semidecomandat în Chitila
79.500 €
București, Chitila
2 camere
40 mp
Etaj 3 / 3

Detalii de contact

Abonează-te la newsletter să fii primul care primește cele mai noi recomandări de proprietăți și sfaturi de la experți.

CONTACT

Creează alertă

Salvează căutarea ca să primești pe email ultimele anunțuri publicate

Apartamente cu 2 camere de vânzare în zona Pajura, Sector 1