2 camere luminos, etaj 1/3, Bloc boutique, lift – Emil Racovita

125.000 € + TVA

Pipera, București

Nr. cam.:
2
Sup. utilă:
59 mp
Etaj:
1 / 3
An constr.:
2025 (Finalizată)
  • • Comision 0%
  • • Exclusivitate
  • • Locație aproximativă

Descriere apartament

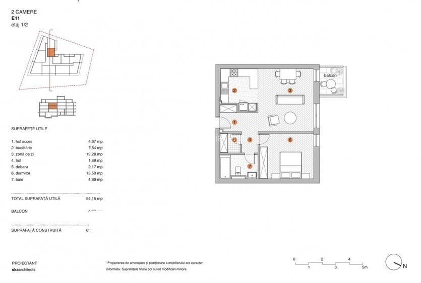
125.000 € + TVA | Apartament 2 camere | Pipera – Emil Racovita Un apartament luminos, intr-un bloc boutique cu doar 3 etaje, gandit pentru un stil de viata linistit si echilibrat, aproape de tot ce conteaza in nordul Bucurestiului. Situat la etajul 1/3, cu lift, apartamentul are 53,8 mp utili si un balcon generos de 6,83 mp. Livingul este aerisit, cu zona de dining si acces direct in balcon, bucataria este open-space (cu posibilitate de inchidere), dormitorul este bine proportionat, iar baia functionala. Incalzirea in pardoseala completeaza confortul zilnic. Face parte din Grandia Living Residence, un ansamblu modern, cu densitate redusa, spatii comerciale in incinta si o atmosfera calma, dar bine conectata la Pipera si zonele de interes din nord. Apartamentul se preda la stadiul de alb, oferindu-ti libertatea sa-l amenajezi exact asa cum iti doresti. Locuri de parcare disponibile: – exterior: 12.000 € + TVA – interior: 15.000 € + TVA Vizionarea acestui imobil se face doar in baza semnarii unui acord de vizionare conform codului civil, art 2.096-2.102 #apartament3camerepipera, #apartament3camerepiperarondomv, #apartamentdecomandatpipera, #apartamentmobilatpipera, #apartamentcubalconpipera, #apartamentcuparcarepipera, #apartamentculiftpipera, #apartamentcucurtepipera, #apartamentcuterenpipera, #apartamentpiperaplaza, #apartamentcuvederelaparcuripiperarondomv, #apartamentmetrou, #apartament3camerepipera, , #rateladezvoltator, #apartament3camerepiperarondomv, #apartament3camerepiperaplaza, #ConfortNordTower, #Directdezvoltator, #Rateladezvoltator,
Citește mai mult Citește mai puțin
Confort lux Decomandat 1 Balcon / Terasă / Logie Centrală imobil

Detalii apartament

ID anunț: XDK8000CA Copiat! 275087645 Copiat!
Actualizat în: 25 Februarie 2026
Suprafață construită: 69 mp
Nr. bucătării: 1
Nr. băi: 1
Structură rezistență: Beton
Tip imobil: Bloc de apartamente
Regim înălțime: S+P+3E

Utilități

Destinație
Rezidențial
Utilități
Curent Apă Canalizare Gaze
Ușă intrare
Metal
Uși interior
Celulare
Alte spații utile
Terasă
Facilități imobil
Lift
Amenajare străzi
Asfaltate

Certificat energetic:

Clasa energetică: A

Vecinătăți:

Iancu NicolaieAviatieiAurel VlaicuPiperaBaneasa

Disponibilitate proprietate:

imediat

Puncte de interes

Mijloace transport
tram-station
Statia Gelcap, linia 16, 36
Stații tramvai aprox. 657 m
tram-station
Gelcap
Stații tramvai aprox. 720 m
bus-station
Rocin
Stații autobuz aprox. 943 m
metro-station
Pipera (M2)
Stații metrou aprox. 1373 m
Școală
kindergarten
Echilibria 1
Gradinițe aprox. 1099 m
school
Gradinita Happy Univers
Școli aprox. 1250 m
school
Scoala Nr.3 Voluntari
Școli aprox. 1433 m
kindergarten
Gradinita Zece
Gradinițe aprox. 1640 m
Recreere
restaurant
Q's inn
Restaurant aprox. 519 m
supermarket
Kaufland
Supermarket aprox. 520 m
park
spatiu verde
Parcuri aprox. 827 m
sports-ground
Teren sportiv
Terenuri sport aprox. 1716 m

Detalii despre preț și costuri

Prețul pe piață

Preț cerut: 125.000 €

Preț min. zonă 112.000 €
Preț max. zonă 250.000 €

83% dintre proprietățile similare ca zonă și nr. camere au prețul cerut mai mare. mai multe...

Bine de știut: prețul unei proprietăți este influențat și de alte caracteristici, cum ar fi: vechime, localizare, vecinătăți, suprafață, compartimentare, amenajări, dotări, etc. mai puțin...

Costuri cu achiziția

Fără credit
8.095 RON
Credit ipotecar
9.850 RON
Noua casă
911 RON+ taxe notariale

i

Costuri adiționale mai puțin știute la achiziție: taxe notariale, comisioane etc.

Proprietăți recomandate

Detalii de contact

Abonează-te la newsletter să fii primul care primește cele mai noi recomandări de proprietăți și sfaturi de la experți.

CONTACT

Creează alertă

Salvează căutarea ca să primești pe email ultimele anunțuri publicate

Apartamente noi cu 2 camere de vânzare în zona Pipera, Sector 1