REA1024633 Apartament de vanzare I 4 camere I Lacul Tei - Petricani

355.000 €

Pipera, București

Nr. cam.:
4
Sup. utilă:
93 mp
Etaj:
2 / 3
An constr.:
2018 (Finalizată)
  • • Locație aproximativă
  • • Vizionare prin apel video

Descriere apartament

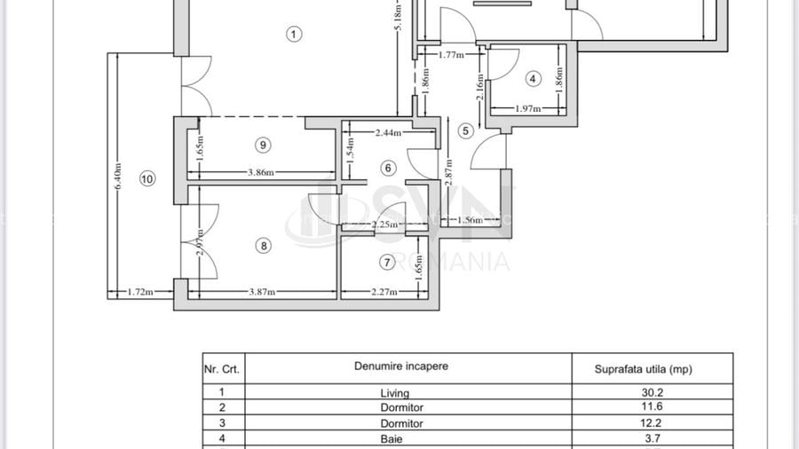
SVN Residentialist Victoriei propune spre vanzare un apartament cu 4 camere, situat in zona Lacul Tei - Petricani - Pipera, cu vedere directa catre Lacul Tei. Locuinta se afla la etajul 2 al unui imobil tip boutique cu regim de inaltime S+P+3, construit in anul 2018. Apartamentul este decomandat, are o suprafata utila de 93 mp si beneficiaza de un balcon de 11 mp. Se vinde complet mobilat si utilat, conform prezentarii din fotografii, si dispune de: incalzire proprie prin centrala termica, incalzire in pardoseala si calorifere, 4 unitati de aer conditionat, masina de spalat vase, masina de spalat rufe, masina de uscat rufe, tamplarie din aluminiu si multiple spatii de depozitare. Compartimentarea este practica si include: hol cu spatii de depozitare, zona de bucatarie, living si dining in regim open space, dormitor matrimonial cu dressing si baie proprie, doua dormitoare secundare, o baie completa si un balcon generos cu acces din living si dormitorul matrimonial, ce poate fi inchis pe timpul iernii. Optional, se poate achizitiona un loc de parcare suprateran la pretul de 10.000 euro. Imobilul gazduieste o comunitate restransa, formata din doar 10 apartamente (3 pe etaj), si este administrat de o asociatie de proprietari. Optional, pentru cei care isi doresc un spatiu suplimentar sau doresc sa aiba membrii ai familiei in apropiere, in acelasi imobil este disponibil spre vanzare si un studio dublu, cu suprafata utila de 46 mp. Pentru detalii suplimentare sau pentru programarea unei vizionari, va stau cu drag la dispozitie.
Citește mai mult Citește mai puțin
Confort 1 Decomandat Acceptă animale de companie Mobilat Complet 1 Balcon Aer condiționat Calorifere Centrală proprie Încălzire prin pardoseală 1 Parcare

Detalii apartament

ID anunț: X658005TM Copiat! 274945748 Copiat!
Actualizat în: 13 Februarie 2026
Suprafață utilă totală: 104 mp
Suprafață construită: 119 mp
Nr. bucătării: 1
Nr. băi: 2
Structură rezistență: Beton
Tip imobil: Bloc de apartamente
Regim înălțime: P+3E

Utilități

Destinație
Rezidențial
Pereți
Faianță
Podele
Gresie Parchet
Ferestre cu geam termopan
PVC
Contorizare
Apometre
Bucătărie
Mobilată
Diverse
Sistem de alarmă
Alte spații utile
WC Serviciu
Dotări imobil
Interfon
Utilități
Gaze Curent
Servicii imobil
Supraveghere video
Comision
Standard

Certificat energetic:

Clasa energetică: A

Vicii:

Fără vicii.

Disponibilitate proprietate:

Disponibil din 21/11/2025.

Puncte de interes

Mijloace transport
tram-station
Strandul Tei
Stații tramvai aprox. 21 m
bus-station
Soseaua Fabrica de Glucoza statie 16, 36
Stații autobuz aprox. 773 m
metro-station
Metrorex. Stația Pipera (M2)(1987)
Stații metrou aprox. 1148 m
trolleybus-station
Statia Doamna Ghica, linia 66
Stații troleibuz aprox. 1220 m
Școală
kindergarten
Gradinita nr. 7
Gradinițe aprox. 841 m
university
Facultatea de Cai Ferate Drumuri si Poduri, Facultate de Geodezie
Universități aprox. 890 m
school
Scoala Nr. 30 Grigore Ghica Voievod
Școli aprox. 945 m
kindergarten
Gradinita numarul 137
Gradinițe aprox. 986 m
Recreere
park
Parcul Petricani
Parcuri aprox. 39 m
restaurant
Zexe Evenimente
Restaurant aprox. 689 m
sports-ground
Teren sportiv
Terenuri sport aprox. 698 m
supermarket
Mega Image
Supermarket aprox. 852 m

Detalii despre preț și costuri

Prețul pe piață

Preț cerut: 355.000 €

Preț min. zonă 106.998 €
Preț max. zonă 449.000 €

97% dintre proprietățile similare ca zonă și nr. camere au prețul cerut mai mic. mai multe...

Bine de știut: prețul unei proprietăți este influențat și de alte caracteristici, cum ar fi: vechime, localizare, vecinătăți, suprafață, compartimentare, amenajări, dotări, etc. mai puțin...

Costuri cu achiziția

Fără credit
15.086 RON
Credit ipotecar
17.705 RON
Noua casă
1.948 RON+ taxe notariale

i

Costuri adiționale mai puțin știute la achiziție: taxe notariale, comisioane etc.

Proprietăți recomandate

Detalii de contact

SVN Romania | Residentialist | Victoriei

Cristian Vasile Associated Advisor

4.71(7 review-uri)

SVN Romania | Residentialist | Victoriei
PRO

Abonează-te la newsletter să fii primul care primește cele mai noi recomandări de proprietăți și sfaturi de la experți.

CONTACT

Creează alertă

Salvează căutarea ca să primești pe email ultimele anunțuri publicate

Apartamente cu 4+ camere de vânzare în zona Pipera, Sector 1