BLOC NOU 2025 - S.M.E Residence SISEȘTI - 2 Camere - Tip PENTHOUSE

185.000 €

Sisești, București

Nr. cam.:
2
Sup. utilă:
89 mp
Etaj:
3 / 3
An constr.:
2025 (Finalizată)
  • • Comision 0%
  • • Locație exactă

Descriere apartament

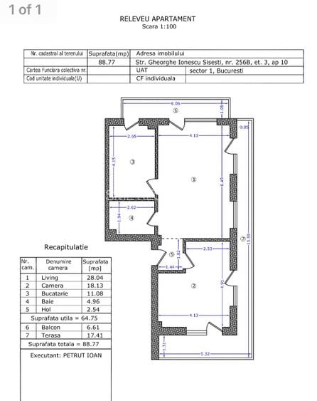
!!! SME RESIDENCE / DIRECT DEZVOLTATOR !!! !!! IMOBIL NOU FINALIZAT !!! BOUTIQUE LUXURY !!! - ZONA : SISEȘTI BĂNEASA / MULTIMODAL - • S + P + 1E + 2Er+ 3Er • “ AP.2 CAMERE SPLENDID / TIP PENTHOUSE “ PRIVELIȘTE MINUNATĂ + LUMINĂ NATURALĂ !!! FINISAJE PREMIUM ! MUTARE IMEDIATĂ ! Suprafața Utilă Ap : 65 mp ! Suprafața Balcoane : 24 mp ! Bucătărie Închisă Foarte Spațioasă ! PREȚ AP : 185.000€ + TVA !!! OPȚIONAL CONTRACOST AVEM DISPONIBILE : LOCURI PARCARE : SUBTERAN / SUPRATERAN Imobilul este situat pe una din cele mai frumoase străzi într-un cartier privat ! Fiind retras față de șosea cu o lungime foarte mare beneficiază de tendința de liniște și siguranța ! Adresa : Șos.Gheorghe Ionescu Sisești NR : 256 B Situat doar la mai puțin de 2 min de mers pe jos fața de TERMINALUL MULTIMODAL (METROU) Structură Realizată Din : Stâlpi,Planșee BETON Zidăria Realizată Din : Cărămida POROTHERM inclusiv pereții despărțitori interiori la apartamente sunt din cărămida de 11,5 cm (tencuială clasica + glet) !!! IMOBILUL ESTE DOTAT CU FINISAJE DE CEA MAI ÎNALTĂ CLASĂ ȘI CALITATE !!! -LIFT : SCHINDLER -ÎNCĂLZIRE PRIN PARDOSEALA T.E.C.E -Tâmplarie : REHAU GENEO RAU FIPRO-X -Sticlă TRIPAN 52’ - 4 Anotimpuri -Izolație Polistiren 10 / EPS 80 AUSTROTHERM -Instalații : ROMSTAL & GEWISS & TECE -Vată Bazaltică / HidroIzolații -Video Interfon -Uși Metalice MACCO -Decorativă CAPAROL -Centrală Proprie VIESSMAN 33KW -BALUSTRADA STICLA SECURIZATĂ 8/2/8 -Profil Aluminiu CORTIZO -Contorizare Individuală Utilități ! -Degivrare Rampă Acces Garaj -Ușa Garaj HORMANN GERMANIA ROG ȘI OFER MAXIMĂ SERIOZITATE !!!
Citește mai mult Citește mai puțin
Confort lux Decomandat

Detalii apartament

ID anunț: XV10004HG Copiat! 273996834 Copiat!
Actualizat în: 17 Ianuarie 2026
Nr. băi: 1
Tip imobil: Bloc de apartamente
Regim înălțime: P+3E

Utilități

Comision
0%

Puncte de interes

Mijloace transport
bus-station
Statia Doi Cocosi linia 304
Stații autobuz aprox. 248 m
metro-station
Străulești (M4)
Stații metrou aprox. 536 m
bus-station
Straulesti
Stații autobuz aprox. 577 m
tram-station
Laromet
Stații tramvai aprox. 1347 m
Școală
school
Scoala Generala Nr. 13
Școli aprox. 1086 m
school
Scoala 13
Școli aprox. 1093 m
kindergarten
Gradinita de copii nr.47
Gradinițe aprox. 1710 m
kindergarten
Gradinita Nr. 47
Gradinițe aprox. 1721 m
Recreere
restaurant
La Doi Cocoși - Restaurant, Club
Restaurant aprox. 198 m
sports-ground
Popicarie
Terenuri sport aprox. 456 m
park
Parc
Parcuri aprox. 496 m
supermarket
Mega Image
Supermarket aprox. 827 m

Detalii despre preț și costuri

Prețul pe piață

Preț cerut: 185.000 €

Preț min. zonă 105.000 €
Preț max. zonă 225.000 €

85% dintre proprietățile similare ca zonă și nr. camere au prețul cerut mai mare. mai multe...

Bine de știut: prețul unei proprietăți este influențat și de alte caracteristici, cum ar fi: vechime, localizare, vecinătăți, suprafață, compartimentare, amenajări, dotări, etc. mai puțin...

Costuri cu achiziția

Fără credit
9.253 RON
Credit ipotecar
11.151 RON
Noua casă
1.083 RON+ taxe notariale

i

Costuri adiționale mai puțin știute la achiziție: taxe notariale, comisioane etc.

Proprietăți recomandate

Detalii de contact

SME RESIDENCE

SME RESIDENCE

Abonează-te la newsletter să fii primul care primește cele mai noi recomandări de proprietăți și sfaturi de la experți.

CONTACT

Creează alertă

Salvează căutarea ca să primești pe email ultimele anunțuri publicate

Apartamente noi cu 2 camere de vânzare în zona Sisești, Sector 1