Apartament 4 camere cu 2 balcoane • Liniște și lac, zona Sisești

369.879 € + TVA

Sisești, București

Nr. cam.:
4
Sup. utilă:
110,29 mp
Etaj:
3 / 3
Tip prop.:
Bloc de apartamente
  • • Locație exactă

Descriere apartament

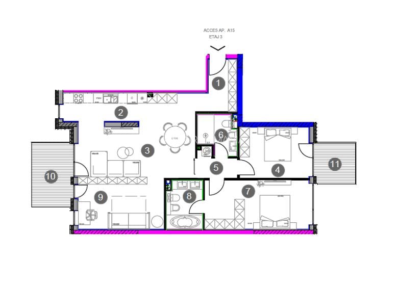
Un apartament cu adevărat spațios, într-o zonă liniștită, verde și bine conectată la oraș. Situat în apropiere de Șoseaua Sisești, într-o comunitate privată cu acces securizat, acest apartament de 4 camere se remarcă prin compartimentare echilibrată, lumină naturală și legătură directă cu natura. Locuința este amplasată la etajul 3, are două balcoane și o suprafață construită de 127,27 m², oferind spațiu real pentru o familie care caută confort, intimitate și acces rapid către zonele-cheie din nordul Bucureștiului. Compartimentare: Zonă open space pentru living, dining și bucătărie Dormitor matrimonial cu dressing și baie proprie Două dormitoare secundare + baie separată Primul balcon are acces din living și bucătărie Al doilea balcon este conectat la unul dintre dormitoare Holuri bine definite, care separă zona de zi de cea de noapte Facilități ale comunității: Acces securizat și monitorizat permanent Spații verzi generoase și alei pietonale Promenadă pe malul lacului – loc ideal pentru relaxare sau activități în aer liber Piscină exterioară, locuri de joacă, grădiniță, școală privată Cafenea, zone comune amenajate Locuri de parcare subterane disponibile Apartamentul se predă nemobilat și neutillat, cu finisaje moderne, încălzire prin pardoseală și instalații de calitate, pregătit pentru personalizare. ? Contactează-ne pentru mai multe detalii sau pentru a programa o vizionare. Disponibil acum – una dintre puținele unități de acest tip în zonă.
Citește mai mult Citește mai puțin
Confort lux Decomandat Nemobilat 2 Balcoane / Terase / Logii Piscină Încălzire prin pardoseală

Detalii apartament

ID anunț: XF2A0000T Copiat! 261306290 Copiat!
Actualizat în: 04 August 2025
Suprafață utilă totală: 110.29 mp
Suprafață construită: 127.27 mp
Nr. bucătării: 1
Nr. băi: 2
Regim înălțime: P+3E

Utilități

Pereți
Faianță Vopsea lavabilă
Podele
Gresie Parchet
Ușă intrare
Metal
Uși interior
Lemn
Ferestre cu geam termopan
Aluminiu
Contorizare
Contor căldură Contor gaz Apometre
Diverse
Telecomandă poartă acces auto
Alte spații utile
Terasă WC Serviciu
Facilități imobil
Spații agrement Lift Interfon Videointerfon
Amenajare străzi
Asfaltate Iluminat stradal Mijloace de transport în comun
Servicii imobil
Administrare Pază Supraveghere video
Comision
Standard

Vecinătăți:

Kaufland
Lidl
Regina Maria
Carrefour
Sel Gros

Puncte de interes

Mijloace transport
bus-station
Statia Oaspetilor, linia 261
Stații autobuz aprox. 502 m
bus-station
Statia Darmanesti, linia 205
Stații autobuz aprox. 504 m
tram-station
Statie Cartier Damaroaia Tv24
Stații tramvai aprox. 1140 m
metro-station
Acces stația Parc Bazilescu (M4)
Stații metrou aprox. 1915 m
Școală
school
International School for Primary Education, Bucharest (en)
Școli aprox. 117 m
school
International School for Primary Education
Școli aprox. 189 m
university
Universitatea Biotera
Universități aprox. 527 m
kindergarten
Gradinita Ursuletu
Gradinițe aprox. 1687 m
Recreere
restaurant
Vatra Noua
Restaurant aprox. 496 m
park
Parc
Parcuri aprox. 1022 m
sports-ground
Teren sportiv
Terenuri sport aprox. 1067 m
supermarket
Crystal System S.R.L.
Supermarket aprox. 1428 m

Detalii despre preț și costuri

Prețul pe piață

Preț cerut: 369.879 €

Preț min. zonă 171.000 €
Preț max. zonă 560.000 €

76% dintre proprietățile similare ca zonă și nr. camere au prețul cerut mai mic. mai multe...

Bine de știut: prețul unei proprietăți este influențat și de alte caracteristici, cum ar fi: vechime, localizare, vecinătăți, suprafață, compartimentare, amenajări, dotări, etc. mai puțin...

Costuri cu achiziția

Fără credit
18.266 RON
Credit ipotecar
21.278 RON
Noua casă
2.421 RON+ taxe notariale

i

Costuri adiționale mai puțin știute la achiziție: taxe notariale, comisioane etc.

Proprietăți recomandate

Detalii de contact

AVANDOR ROMANIA

Consultant Vanzari Consultand Vanzari

AVANDOR ROMANIA
PRO

Abonează-te la newsletter să fii primul care primește cele mai noi recomandări de proprietăți și sfaturi de la experți.

CONTACT

Creează alertă

Salvează căutarea ca să primești pe email ultimele anunțuri publicate

Apartamente cu 4+ camere de vânzare în zona Sisești, Sector 1