2

Apartament 2 camere, Straulesti

150.000 €

Străulești, București

Nr. cam.:
2
Sup. utilă:
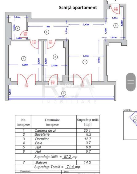
57,2 mp
Etaj:
3 / 6
An constr.:
2022 (Finalizată)
  • • Locație exactă

Descriere apartament

REA Imobiliare Apartament cu 2 camere, semidecomadat, la etajul 3/6, finalizat in 2022. Suprafata totala de 71.4 mp din care suprafata utila de 57.2 mp , terasa 14.2 mp. Configuratie: sufragerie, dormitor, bucatarie, baie si terasa. Sistem de incalzire: centrala proprie. Acces la transportul in comun -> 6 min pana la statiile STB si 15 min pana la statia de metrou Straulesti. Pentru detalii si vizionari, va rugam sa ne contatcati specificand coddul de identificare P9097.
Citește mai mult Citește mai puțin
Confort lux Semidecomandat Mobilat Mobilat 1 Balcon / Terasă / Logie Curte Aer condiționat Centrală proprie

Detalii apartament

ID anunț: XDKS107RG Copiat! 271575955 Copiat!
Actualizat în: 19 Ianuarie 2026
Suprafață construită: 68.64 mp
Nr. bucătării: 1
Nr. băi: 1
Structură rezistență: Beton
Tip imobil: Casă/Vilă
Regim înălțime: P+6E

Utilități

Destinație
Rezidențial
Jaluzele
Verticale
Pereți
Vopsea lavabilă Faianță
Podele
Parchet Gresie
Ușă intrare
Metal
Uși interior
Lemn Panel
Izolații termice
Exterior Interior
Contorizare
Apometre Contor căldură Contor gaz
Bucătărie
Mobilată Utilată
Electrocasnice
Mașină de spălat Frigider Aragaz Mașină spălat vase Cuptor microunde
Diverse
Sistem de alarmă
Alte spații utile
Terasă
Facilități imobil
Interfon Videointerfon Lift
Utilități
Curent Apă Canalizare Gaze CATV Telefon
Amenajare străzi
Asfaltate Iluminat stradal
Comision
standard

Certificat energetic:

Clasa energetică: B

Disponibilitate proprietate:

imediat

Puncte de interes

Mijloace transport
bus-station
Statia Doi Cocosi linia 304
Stații autobuz aprox. 979 m
metro-station
Străulești (M4)
Stații metrou aprox. 1222 m
bus-station
Straulesti
Stații autobuz aprox. 1319 m
bus-station
Statia Cimitirul Straulesti, linia N117, 304,97
Stații autobuz aprox. 1496 m
Școală
school
Scoala 13
Școli aprox. 94 m
school
Scoala Generala Nr. 13
Școli aprox. 102 m
Recreere
supermarket
Mega Image
Supermarket aprox. 389 m
park
Parcul Natural Straulesti
Parcuri aprox. 859 m
restaurant
La Doi Cocoși - Restaurant, Club
Restaurant aprox. 1037 m
sports-ground
Teren sportiv
Terenuri sport aprox. 1048 m

Detalii despre preț și costuri

Prețul pe piață

Preț cerut: 150.000 €

Preț min. zonă 76.500 €
Preț max. zonă 175.000 €

76% dintre proprietățile similare ca zonă și nr. camere au prețul cerut mai mic. mai multe...

Bine de știut: prețul unei proprietăți este influențat și de alte caracteristici, cum ar fi: vechime, localizare, vecinătăți, suprafață, compartimentare, amenajări, dotări, etc. mai puțin...

Costuri cu achiziția

Fără credit
8.053 RON
Credit ipotecar
9.802 RON
Noua casă
904 RON+ taxe notariale

i

Costuri adiționale mai puțin știute la achiziție: taxe notariale, comisioane etc.

Proprietăți recomandate

Detalii de contact

R.E.A. Imobiliare

Cristian Ghica Broker

R.E.A. Imobiliare
PRO

Abonează-te la newsletter să fii primul care primește cele mai noi recomandări de proprietăți și sfaturi de la experți.

CONTACT

Creează alertă

Salvează căutarea ca să primești pe email ultimele anunțuri publicate

Apartamente noi cu 2 camere de vânzare în zona Străulești, Sector 1