3

Apartament 3 camere Banu Manta

172.000 €

Titulescu, București

Nr. cam.:
3
Sup. utilă:
68 mp
Etaj:
1 / 10
An constr.:
1978 (Finalizată)
  • • Locație aproximativă

Descriere apartament

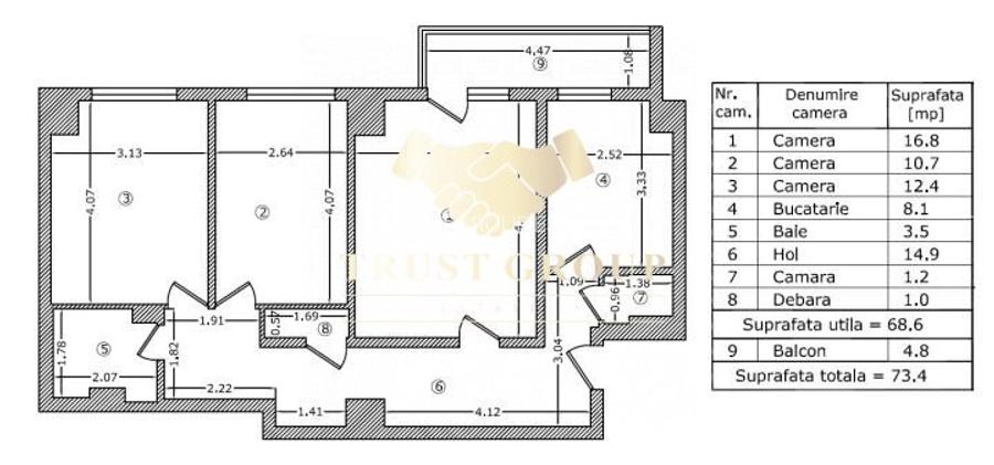
Se ofera spre vanzare apartament de 3 camere, confort 1, decomandat, situat la etajul 1 al unui bloc finalizat in 1978, la intersectia bulevardelor Titulescu si Banul Manta. Suprafata utila este de 71,77 mp, apartamentul fiind nemodificat fata de planurile originale si conform cu schita cadastrala. In anul 2024 au fost inlocuite toate tevile pe coloanele de incalzire, apa rece si calda, precum si robinetii de serviciu. Apartamentul este dotat cu contoare de apa rece si calda cu transmisie radio. Accesul in scara blocului este securizat prin interfon si cod de acces, iar zona comuna este monitorizata video. Apartamentul necesita renovare si finisaje, ceea ce ofera viitorului proprietar posibilitatea de amenajare dupa propriul gust.
Citește mai mult Citește mai puțin
Confort 1 Decomandat 1 Balcon

Detalii apartament

ID anunț: XC45200Q4 Copiat! 274753777 Copiat!
Actualizat în: 03 Februarie 2026
Suprafață construită: 80 mp
Nr. bucătării: 1
Nr. băi: 1
Structură rezistență: Beton
Tip imobil: Bloc de apartamente
Regim înălțime: P+10E

Utilități

Destinație
Rezidențial
Comision
standard

Certificat energetic:

Clasa energetică: A

Disponibilitate proprietate:

imediat

Puncte de interes

Mijloace transport
bus-station
Statia Gara Basarab, linia 105,178,635
Stații autobuz aprox. 148 m
trolleybus-station
Statie Gara Basarab 133, 178, 282, 105, 123, 162, 780
Stații troleibuz aprox. 198 m
metro-station
Basarab m1 m4 station subway
Stații metrou aprox. 232 m
tram-station
Statie Pasaj Basarab Tramvai 1
Stații tramvai aprox. 232 m
Școală
school
Scoala Gimnaziala Uruguay
Școli aprox. 131 m
kindergarten
Gradinita Dreams World
Gradinițe aprox. 254 m
university
Institutul Medico-Militar
Universități aprox. 410 m
school
Institutul Medico-Militar
Școli aprox. 410 m
Recreere
supermarket
Kaufland
Supermarket aprox. 112 m
park
Parculet
Parcuri aprox. 244 m
hypermarket
Intrarea in caminele C si D din grozavesti
Hipermarket aprox. 635 m
sports-ground
Teren sportiv
Terenuri sport aprox. 935 m

Detalii despre preț și costuri

Prețul pe piață

Preț cerut: 172.000 €

Preț min. zonă 105.000 €
Preț max. zonă 412.000 €

64% dintre proprietățile similare ca zonă și nr. camere au prețul cerut mai mare. mai multe...

Bine de știut: prețul unei proprietăți este influențat și de alte caracteristici, cum ar fi: vechime, localizare, vecinătăți, suprafață, compartimentare, amenajări, dotări, etc. mai puțin...

Costuri cu achiziția

Fără credit
8.805 RON
Credit ipotecar
10.648 RON
Noua casă
1.016 RON+ taxe notariale

i

Costuri adiționale mai puțin știute la achiziție: taxe notariale, comisioane etc.

Proprietăți recomandate

Detalii de contact

TRUST GROUP ESTATE

Cristian Belei Founder

3.70(16 review-uri)

TRUST GROUP ESTATE
PRO

Abonează-te la newsletter să fii primul care primește cele mai noi recomandări de proprietăți și sfaturi de la experți.

CONTACT

Creează alertă

Salvează căutarea ca să primești pe email ultimele anunțuri publicate

Apartamente cu 3 camere de vânzare în zona Titulescu, Sector 1