3 camere DECOMANDAT || TURDA

214.000 €

Turda, București

Nr. cam.:
3
Sup. utilă:
67 mp
Etaj:
7
An constr.:
1980
  • • Locație aproximativă

Descriere apartament

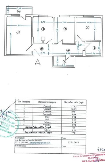
Impact Real Estate Advisors vă propune spre vânzare un apartament modern cu 3 camere, situat la etajul 7 din 10, pe Strada Turda, la colț cu Bulevardul Ion Mihalache, într-un imobil solid, construit în 1980. Proprietatea beneficiază de o amplasare excelentă, într-o zonă extrem de bine conectată și apreciată din nordul Capitalei. Apartamentul se evidențiază printr-o vedere panoramică spectaculoasă, liberă pe partea din spate, către zona Piața Victoriei, oferind liniște, lumină naturală din plin și o atmosferă caldă și primitoare. A fost renovat integral în urmă cu doi ani (instalații electrice și sanitare înlocuite, pereți refăcuți, parchet schimbat), fiind pregătit pentru mutare imediată. Apartamentul este decomandat și oferă o organizare eficientă a spațiului, ideală pentru confortul unei familii: - Living generos (17,63 mp), cu acces direct către balcon închis, perfect pentru relaxare - Două dormitoare luminoase și bine proporționate - Bucătărie complet mobilată și utilată - Două băi moderne, ambele prevăzute cu geam pentru aerisire naturală - Hol spațios, ce asigură o circulație fluidă între încăperi Avantaje și localizare: - Situat într-o zonă liniștită și bine conectată, la doar 15 minute de mers pe jos de: Parcul Herăstrău, Arcul de Triumf și Bd. Kiseleff, Piața Domenii și Piața Mihalache. Unități școlare și medicale de prestigiu. Acces rapid către Piața Victoriei și centrul orașului În proximitate se regăsesc unități de învățământ și centre medicale de prestigiu, iar accesul către Piața Victoriei și centrul orașului este rapid și facil. Certificatul energetic va fi disponibil la momentul vânzării. Pentru informații suplimentare sau pentru programarea unei vizionări, vă stăm la dispoziție.
Citește mai mult Citește mai puțin
Confort 1 Decomandat Mobilat Complet 1 Balcon Aer condiționat Calorifere Termoficare

Detalii apartament

ID anunț: XC7L101T1 Copiat! 274980219 Copiat!
Actualizat în: 16 Februarie 2026
Suprafață construită: 80 mp
Nr. bucătării: 1
Nr. băi: 1
Structură rezistență: Beton
Tip imobil: Bloc de apartamente
Regim înălțime: P+8E

Utilități

Pereți
Faianță Vopsea lavabilă
Podele
Parchet
Ușă intrare
Metal
Ferestre cu geam termopan
PVC
Contorizare
Apometre Contor căldură
Bucătărie
Mobilată Utilată
Electrocasnice
Aragaz Frigider Hotă Mașină de spălat rufe Mașină de spălat vase TV
Dotări imobil
Interfon Lift
Utilități
Curent Apă Canalizare CATV
Servicii imobil
Supraveghere video
Amenajare străzi
Iluminat stradal Mijloace de transport în comun Asfaltate

Vecinătăți:

Strada Turda, Scoala Gimnaziala Petre Ispirescu, Parcul regina Maria, Bulevardul Ion Mihalache, Parcul Herastrau, Baneasa, Downtown Fitness, Arcul de Triumv, Piata Victoriei, 1 Mai, Aviatorilor

Disponibilitate proprietate:

Imediat

Puncte de interes

Mijloace transport
tram-station
Pasaj Grant
Stații tramvai aprox. 349 m
bus-station
Bd. Maresal Averescu
Stații autobuz aprox. 385 m
trolleybus-station
Statie Pasaj Grant 65, 97, 86
Stații troleibuz aprox. 704 m
metro-station
Statie Grivita M4
Stații metrou aprox. 939 m
Școală
school
Gradinita de copii Nr.42
Școli aprox. 222 m
school
Gradinita Cami
Școli aprox. 274 m
kindergarten
Gradinita 97
Gradinițe aprox. 327 m
university
Facultatea de Biotehnologii
Universități aprox. 1213 m
Recreere
park
Parc
Parcuri aprox. 38 m
supermarket
CARREFOUR Express Mihalache
Supermarket aprox. 436 m
sports-ground
Teren sportiv
Terenuri sport aprox. 646 m
hypermarket
Intrarea in caminele C si D din grozavesti
Hipermarket aprox. 1806 m

Detalii despre preț și costuri

Prețul pe piață

Preț cerut: 214.000 €

Preț min. zonă 105.000 €
Preț max. zonă 412.000 €

64% dintre proprietățile similare ca zonă și nr. camere au prețul cerut mai mic. mai multe...

Bine de știut: prețul unei proprietăți este influențat și de alte caracteristici, cum ar fi: vechime, localizare, vecinătăți, suprafață, compartimentare, amenajări, dotări, etc. mai puțin...

Costuri cu achiziția

Fără credit
10.247 RON
Credit ipotecar
12.268 RON
Noua casă
1.230 RON+ taxe notariale

i

Costuri adiționale mai puțin știute la achiziție: taxe notariale, comisioane etc.

Proprietăți recomandate

Detalii de contact

IMPACT REAL ESTATE ADVISORS

Alexandra Smarandoiu Broker

3.25(4 review-uri)

IMPACT REAL ESTATE ADVISORS
PRO

Abonează-te la newsletter să fii primul care primește cele mai noi recomandări de proprietăți și sfaturi de la experți.

CONTACT

Creează alertă

Salvează căutarea ca să primești pe email ultimele anunțuri publicate

Apartamente cu 3 camere de vânzare în zona Turda, Sector 1