3 CAMERE - TURDA ION MIHALACHE - VEDERE SPATE - 7/8 - BLOC 1980

213.999 €

Turda, București

Nr. cam.:
3
Sup. utilă:
67 mp
Etaj:
7 / 8
An constr.:
1980 (Finalizată)
  • • Locație exactă
  • • Vizionare prin apel video

Descriere apartament

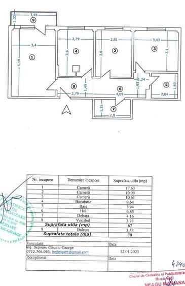
Va propunem spre vanzare un apartament de 3 camere, complet decomandat, situat pe Strada Turda, la colt cu Bd. Ion Mihalache, intr-una dintre cele mai bine conectate si cautate zone din Bucuresti. Apartamentul are o suprafata utila de 70 mp si este amplasat la etajul 7 din 8 al unui bloc construit dupa anii 80 si reabilitat termic. Beneficiaza de vedere libera pe spate, catre zona Piata Victoriei, ceea ce inseamna liniste, lipsa traficului direct si multa lumina naturala pe tot parcursul zilei. Important: fotografiile au fost realizate intr-o zi foarte innorata – in realitate, apartamentul este mult mai luminos. Blocul este linistit, bine administrat, fara datornici, cu vecini civilizati. Compartimentare practica si generoasa: 1. Trei camere complet decomandate 2. Sufragerie spatioasa si luminoasa 3. Bucatarie mare, ideala pentru familie 4. Doua bai, ambele cu geam (ventilatie naturala – avantaj rar) 5. Hol generos si spatii bine proportionate 6. Partial mobilat Apartamentul a fost renovat in urma cu aproximativ 2 ani: 1. Instalatie electrica refacuta 2. Instalatie sanitara schimbata 3. Pereti refacuti 4. Parchet nou 5. Finisaje modernizate Se poate muta imediat, fara interventii majore. Localizare – un avantaj major 1. La doar 2 statii de autobuz sau tramvai de Piata Victoriei 2. La doar 15 minute de mers pe jos pana in Parcul Herastrau sau Kiseleff 3. Aproape de scoli foarte bune 4. Magazine, supermarketuri si farmacii la cativa pasi 5. Acces rapid catre centru si nordul orasului Zona Turda – Ion Mihalache este extrem de apreciata atat pentru locuire, cat si pentru investitie, datorita conexiunii rapide cu zona de business si cu centrul Capitalei. Informatii suplimentare Acte pregatite pentru vanzare Se accepta credit bancar Comision agentie: 2% TVA inclus din valoarea tranzactiei. Vizionarile se realizeaza doar in baza semnarii fisei de vizionare, conform art. 2096 Cod Civil.
Citește mai mult Citește mai puțin
Confort 1 Semidecomandat Mobilat Mobilat 1 Balcon / Terasă / Logie Aer condiționat Termoficare Renovat

Detalii apartament

ID anunț: XG1V10094 Copiat! 275142852 Copiat!
Actualizat în: 27 Februarie 2026
Suprafață utilă totală: 67 mp
Suprafață construită: 70 mp
Nr. bucătării: 1
Nr. băi: 2
Structură rezistență: Altele
Tip imobil: Bloc de apartamente
Regim înălțime: P+8E

Utilități

Destinație
Rezidențial
Pereți
Faianță Vopsea lavabilă
Podele
Parchet Gresie
Ușă intrare
Metal
Uși interior
Lemn
Izolații termice
Exterior
Ferestre cu geam termopan
PVC
Contorizare
Apometre Contor gaz
Bucătărie
Utilată Mobilată
Facilități imobil
Lift Interfon
Utilități
Apă Curent Canalizare
Internet
Fibră optică Wireless
Amenajare străzi
Asfaltate
Comision
2%

Certificat energetic:

Clasa energetică: A

Vecinătăți:

Supermarket, Banca, Zona comerciala, Autobuz, Metrou

Puncte de interes

Mijloace transport
tram-station
Bd. Mihalache
Stații tramvai aprox. 146 m
bus-station
Bd. Maresal Averescu
Stații autobuz aprox. 153 m
trolleybus-station
Statie Pasaj Grant 65, 97, 86
Stații troleibuz aprox. 933 m
metro-station
Statie Grivita M4
Stații metrou aprox. 1085 m
Școală
school
Gradinita Cami
Școli aprox. 349 m
school
Gradinita de copii Nr.42
Școli aprox. 390 m
kindergarten
Gradinita nr. 222
Gradinițe aprox. 456 m
university
Universitatea De Stiinte Agronomice Si Medical Veterinare
Universități aprox. 1140 m
Recreere
supermarket
CARREFOUR Express Mihalache
Supermarket aprox. 205 m
park
Parc
Parcuri aprox. 221 m
sports-ground
Teren sportiv
Terenuri sport aprox. 429 m
public-square
Piața Aviatorilor
Piețe publice aprox. 1150 m

Detalii despre preț și costuri

Prețul pe piață

Preț cerut: 213.999 €

Preț min. zonă 105.000 €
Preț max. zonă 412.000 €

64% dintre proprietățile similare ca zonă și nr. camere au prețul cerut mai mic. mai multe...

Bine de știut: prețul unei proprietăți este influențat și de alte caracteristici, cum ar fi: vechime, localizare, vecinătăți, suprafață, compartimentare, amenajări, dotări, etc. mai puțin...

Costuri cu achiziția

Fără credit
32.057 RON
Credit ipotecar
34.078 RON
Noua casă
1.230 RON+ taxe notariale

i

Costuri adiționale mai puțin știute la achiziție: taxe notariale, comisioane etc.

Proprietăți similare

Apartament cu 4 camere decomandat, mobilat în Turda
220.000 €
București, Turda
4 camere
77 mp
Etaj 7 / 10
Apartament cu 3 camere decomandat, mobilat în Turda
214.000 €
București, Turda
3 camere
67 mp
Etaj 7
Apartament cu 4 camere decomandat, mobilat în Turda
220.000 €
București, Turda
4 camere
77 mp
Etaj 7

Detalii de contact

TOP CHOICE IMOBILIARE

Florin Stefan Consultant imobiliar

4.96(10 review-uri)

TOP CHOICE IMOBILIARE
PRO

Abonează-te la newsletter să fii primul care primește cele mai noi recomandări de proprietăți și sfaturi de la experți.

CONTACT

Creează alertă

Salvează căutarea ca să primești pe email ultimele anunțuri publicate

Apartamente cu 3 camere de vânzare în zona Turda, Sector 1