Apartament 2 camere -60 mp UTILI - GranVia Lake View

180.000 €

Doamna Ghica, București

Nr. cam.:
2
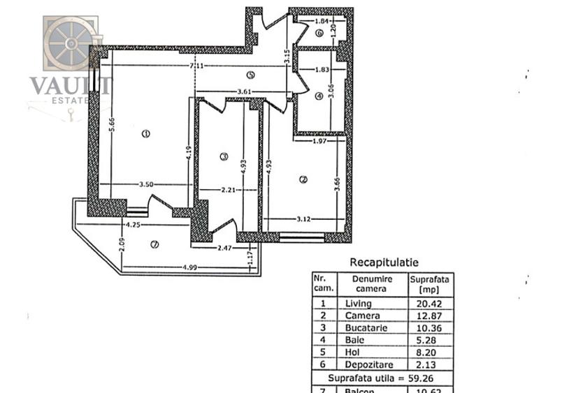
Sup. utilă:
60 mp
Etaj:
2 / 11
An constr.:
2024 (Finalizată)
  • • Locație aproximativă

Descriere apartament

COD PROPRIETATE: P38340 Agentia VAULT ESTATE va prezinta un apartament cu 2 camere, de vanzare, tip compartimentare decomandat, situat in zona Doamna Ghica din Bucuresti. Proprietatea este amplasata intr-un imobil de tip bloc, construit in anul 2024, la etajul 2/11. Dispune de o suprafata totala de 70 mp. Utilitati generale: curent electric, apa, canalizare, gaz, catv Sistem de incalzire: centrala proprie, incalzire pardoseala Daca zona si caracteristicile acestui apartament se aliniaza nevoilor dumneavoastra, va invitam sa ne contactati pentru mai multe detalii si pentru a programa o vizionare. Beneficiile colaborarii cu Vault Estate: • Succesul incepe cu alegerile inteligente. Doar pentru ca ne-ati contactat, aveti acces GRATUIT la sprijinul unui expert financiar, indiferent daca achizitionati prin noi, prin alta agentie sau pe cont propriu. • Va oferim acces la cele mai bune solutii de credite ipotecare si credite de nevoi personale, pentru ca timpul, banii si linistea dumneavoastra sa fie protejate. • Suntem alaturi de dumneavoastra la fiecare pas, pentru ca visele sa devina realitate. Clarificari aditionale: • Informatiile tehnice au caracter orientativ, ele fiind preluate de la proprietari. • Se percepe comision.
Citește mai mult Citește mai puțin
Confort 1 Decomandat Mobilat Mobilat 1 Balcon / Terasă / Logie Aer condiționat Centrală proprie Încălzire prin pardoseală

Detalii apartament

ID anunț: XDTA10SNP Copiat! 275095407 Copiat!
Actualizat în: 24 Februarie 2026
Suprafață construită: 70 mp
Nr. bucătării: 1
Nr. băi: 1
Structură rezistență: Beton
Tip imobil: Bloc de apartamente
Regim înălțime: P+11E

Utilități

Destinație
Rezidențial
Pereți
Vopsea lavabilă Faianță
Podele
Parchet Gresie
Ușă intrare
Metal
Uși interior
Celulare
Ferestre cu geam termopan
PVC
Contorizare
Apometre Contor căldură Contor gaz
Bucătărie
Mobilată Utilată
Facilități imobil
Interfon Lift
Utilități
Curent Apă Canalizare Gaze CATV
Amenajare străzi
Asfaltate Betonate Iluminat stradal Mijloace de transport în comun
Comision
2.5%+TVA

Vecinătăți:

Pacul Plumbuita, Parcul Plumbuita

Disponibilitate proprietate:

imediat

Puncte de interes

Mijloace transport
bus-station
Statie RATB (en)
Stații autobuz aprox. 27 m
trolleybus-station
Statia Doamna Ghica, linia 66
Stații troleibuz aprox. 50 m
tram-station
Doamna Ghica
Stații tramvai aprox. 133 m
metro-station
Statia Metrou Piata Obor(M1)Metrorex
Stații metrou aprox. 1335 m
Școală
kindergarten
Gradinita nr. 233
Gradinițe aprox. 227 m
kindergarten
Coccinelle
Gradinițe aprox. 268 m
school
Gradinita particulara
Școli aprox. 274 m
university
UTCB - Facultatea de Geodezie
Universități aprox. 620 m
Recreere
supermarket
ED&SA
Supermarket aprox. 179 m
park
Parc
Parcuri aprox. 285 m
sports-ground
Teren sportiv
Terenuri sport aprox. 301 m
public-square
Piata Bucur Obor
Piețe publice aprox. 1342 m

Detalii despre preț și costuri

Prețul pe piață

Preț cerut: 180.000 €

Preț min. zonă 64.000 €
Preț max. zonă 169.000 €

i

Proprietate cu prețul cerut în afara intervalului mai multe...

Posibile explicații pentru faptul că prețul proprietății este peste cel maxim: imobil nou cu suprafață mare, are dotări și finisaje de lux.
Bine de știut: prețul unei proprietăți este influențat și de alte caracteristici, cum ar fi: vechime, localizare, vecinătăți, suprafață, compartimentare, amenajări, dotări, etc.

Costuri cu achiziția

Fără credit
9.082 RON
Credit ipotecar
10.959 RON
Noua casă
1.057 RON+ taxe notariale

i

Costuri adiționale mai puțin știute la achiziție: taxe notariale, comisioane etc.

Proprietăți similare

Apartament cu 2 camere decomandat în Doamna Ghica
165.000 €
București, Doamna Ghica
2 camere
50 mp
Etaj 2
Apartament cu 3 camere decomandat, mobilat în Doamna Ghica
169.000 €
București, Doamna Ghica
3 camere
81 mp
Etaj 7
Apartament cu 3 camere decomandat în Doamna Ghica
178.690 €
București, Doamna Ghica
3 camere
61 mp
Parter

Detalii de contact

VAULT ESTATE

Marius Constantin

4.11(6 review-uri)

VAULT ESTATE
PRO

Abonează-te la newsletter să fii primul care primește cele mai noi recomandări de proprietăți și sfaturi de la experți.

CONTACT

Creează alertă

Salvează căutarea ca să primești pe email ultimele anunțuri publicate

Apartamente noi cu 2 camere de vânzare în zona Doamna Ghica, Sector 2